Elmcrest Plan
Ready to build
State College PA 16803
Home by S&A Homes

Last updated 24 hours ago
The Price Range displayed reflects the base price of the homes built in this community.
You get to select from the many different types of homes built by this Builder and personalize your New Home with options and upgrades.
3 BR
2 BA
2 GR
1,385 SQ FT

Elmcrest 1/41
Overview
1 Story
1385 Sq Ft
2 Bathrooms
2 Car Garage
3 Bedrooms
Basement
Dining Room
Family Room
Green Construction
Mud Room
Primary Bed Downstairs
Single Family
Walk-In Closets
Elmcrest Plan Info
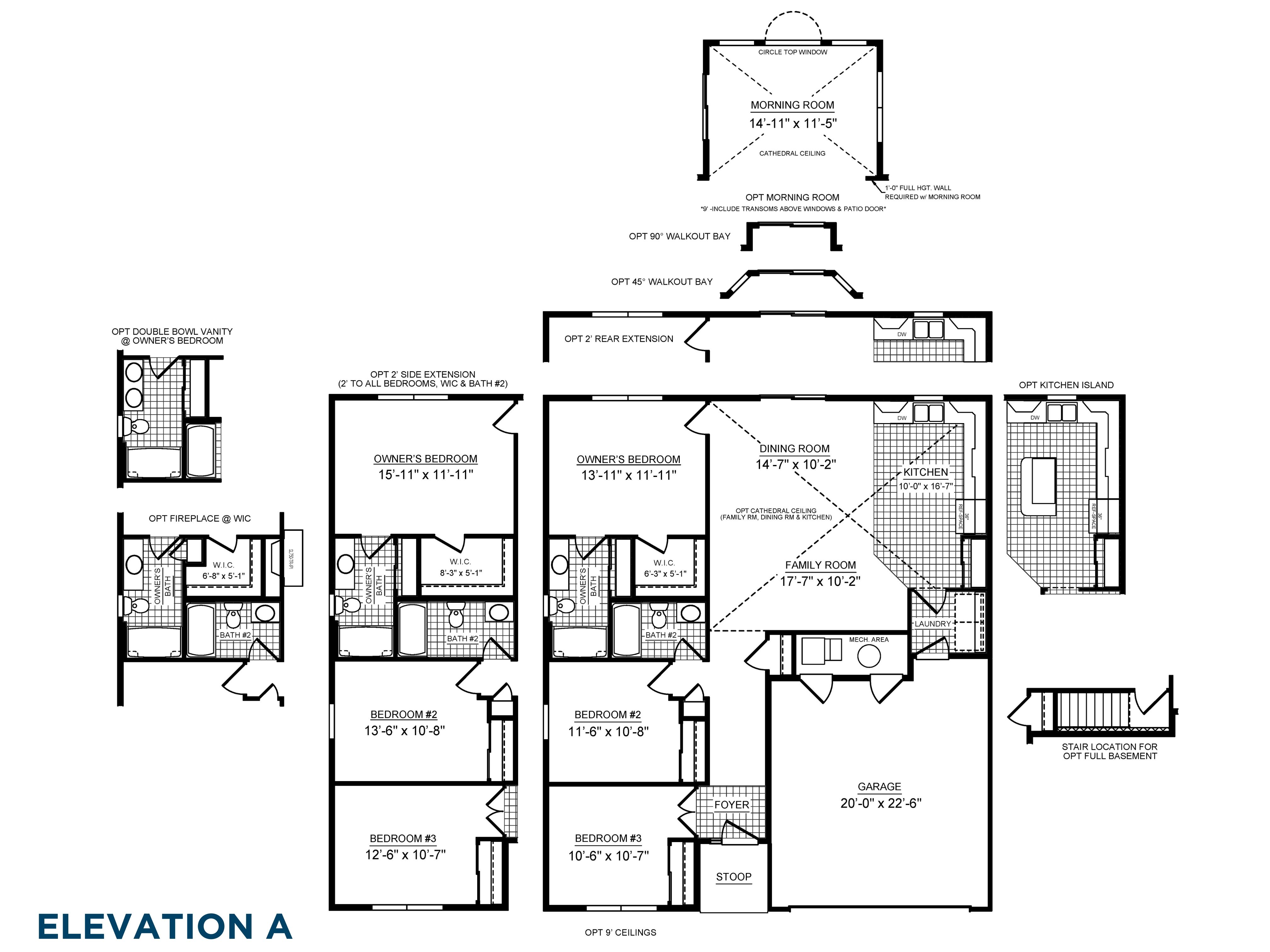
The Elmcrest is proof that you do not have to give up luxury or modern living to have a ranch home. This popular floor plan offers 1,385 square feet of living space with three bedrooms, two baths, a two-car, front-entry garage and full basement.The center of the home serves as the perfect entertaining area with an open-concept kitchen, dining room, and family room layout. Two secondary bedrooms are located toward the front of the home with ample closet space and a shared hallway bath.The owners suite, located at the rear of the home for added privacy, features an L-shaped walk-in closet and ensuite bath. The laundry room/drop zone is located between the kitchen and garage.The Elmcrest offers a variety of personalization options such as a morning room extension, walkout bay off the dining room for an added touch of elegance, and an eat-in kitchen island. For additional space, buyers can opt to finish the basement into a rec room with additional bath.
Floor plan center
View floor plan details for this property.
- Floor Plans
- Exterior Images
- Interior Images
- Other Media
Explore custom options for this floor plan.
- Choose Option
- Include Features
Neighborhood
Community location
00 Phoebe Road
Port Matilda, PA 16870
800 Science Park Road
State College, PA 16803
888-325-6150
From I-99: Take the Grays Woods Exit (exit 68) and merge onto Grays Woods Boulevard. Follow for about 2.1 miles - community is straight ahead.
Nearby schools
State College Area School District
Elementary school. Grades KG to 5.
- Public school
- Teacher - student ratio: 1:14
- Students enrolled: 369
160 Brackenbourne Dr, Port Matilda, PA, 16870
814-235-6100
Middle school. Grades 6 to 8.
- Public school
- Teacher - student ratio: 1:13
- Students enrolled: 815
2180 School Dr, State College, PA, 16803
814-237-5301
High school. Grades 9 to 12.
- Public school
- Teacher - student ratio: 1:11
- Students enrolled: 2410
650 Westerly Pkwy, State College, PA, 16801
814-231-1111
Actual schools may vary. We recommend verifying with the local school district, the school assignment and enrollment process.
Amenities
Home details
Ready to build
Build the home of your dreams with the Elmcrest plan by selecting your favorite options. For the best selection, pick your lot in Grays Pointe - Single Family Homes today!
Community & neighborhood
Community services & perks
- HOA Fees: $19/month
Neighborhood amenities
Wegmans
3.27 miles away
345 Colonnade Blvd
Trader Joe's
3.54 miles away
243 Patriot Ln
ALDI
3.56 miles away
1798 N Atherton St
Walmart Supercenter
3.78 miles away
1665 N Atherton St
Weis Markets
4.10 miles away
1471 Martin St
Wegmans Bakery
3.27 miles away
345 Colonnade Blvd
Walmart Bakery
3.78 miles away
1665 N Atherton St
GNC
3.91 miles away
1643 N Atherton St
sweetFrog
4.25 miles away
281 Northland Ctr
Brother's Pizza
1.76 miles away
101 W Plank Rd
Brothers Pizza
2.45 miles away
1950 Halfmoon Valley Rd
Keewaydin Cider Mill
3.05 miles away
2235 N Atherton St
Otto's Pub & Brewery
3.05 miles away
2235 N Atherton St
Papa Johns
3.09 miles away
2110 N Atherton St
Starbucks
3.25 miles away
2030 N Atherton St
Starbucks
3.37 miles away
315 Colonnade Blvd
Webster's Cafe on Aaron
3.85 miles away
434 W Aaron Dr
Teafe
3.91 miles away
1633 N Atherton St
Dunkin'
4.20 miles away
1430 N Atherton St
Family Clothes Line
1.23 miles away
5788 W Buffalo Run Rd
Chico's
3.35 miles away
19 Colonnade Way
LOFT Stores
3.35 miles away
19 Colonnade Way
Target
3.37 miles away
315 Colonnade Blvd
Kohl's
3.52 miles away
275 Colonnade Blvd
Otto's Pub & Brewery
3.05 miles away
2235 N Atherton St
Qdoba Mexican Eats
3.36 miles away
1908 N Atherton St
Applebee's Grill + Bar
3.42 miles away
12 Colonnade Way
Outback Steakhouse
3.85 miles away
1905 Waddle Rd
Champs Sports Grill
3.99 miles away
1611 N Atherton St
Please note this information may vary. If you come across anything inaccurate, please contact us.
After building more than 15,000 homes, Bob Poole, CEO of S&A Homes, is the first to acknowledge that his down-to-earth approach hasn’t shifted since day one. Since taking ownership of the company in 1980, Bob has instilled the belief that we build each home as if it’s the only home we are building. Our customer focus is the backbone behind S&A’s transformation from a local, custom home-builder started in 1968 to the award-winning regional builder we are today.
Take the next steps toward your new home
Elmcrest Plan by S&A Homes
saved to favorites!
To see all the homes you’ve saved, visit the My Favorites section of your account.
Discover More Great Communities
Select additional listings for more information
We're preparing your brochure
You're now connected with S&A Homes. We'll send you more info soon.
The brochure will download automatically when ready.
Brochure downloaded successfully
Your brochure has been saved. You're now connected with S&A Homes, and we've emailed you a copy for your convenience.
The brochure will download automatically when ready.
Way to Go!
You’re connected with S&A Homes.
The best way to find out more is to visit the community yourself!