Skip main navigation
Floor Plan A home design you can choose to customize and build in this community, on your choice of homesite. Ready to build

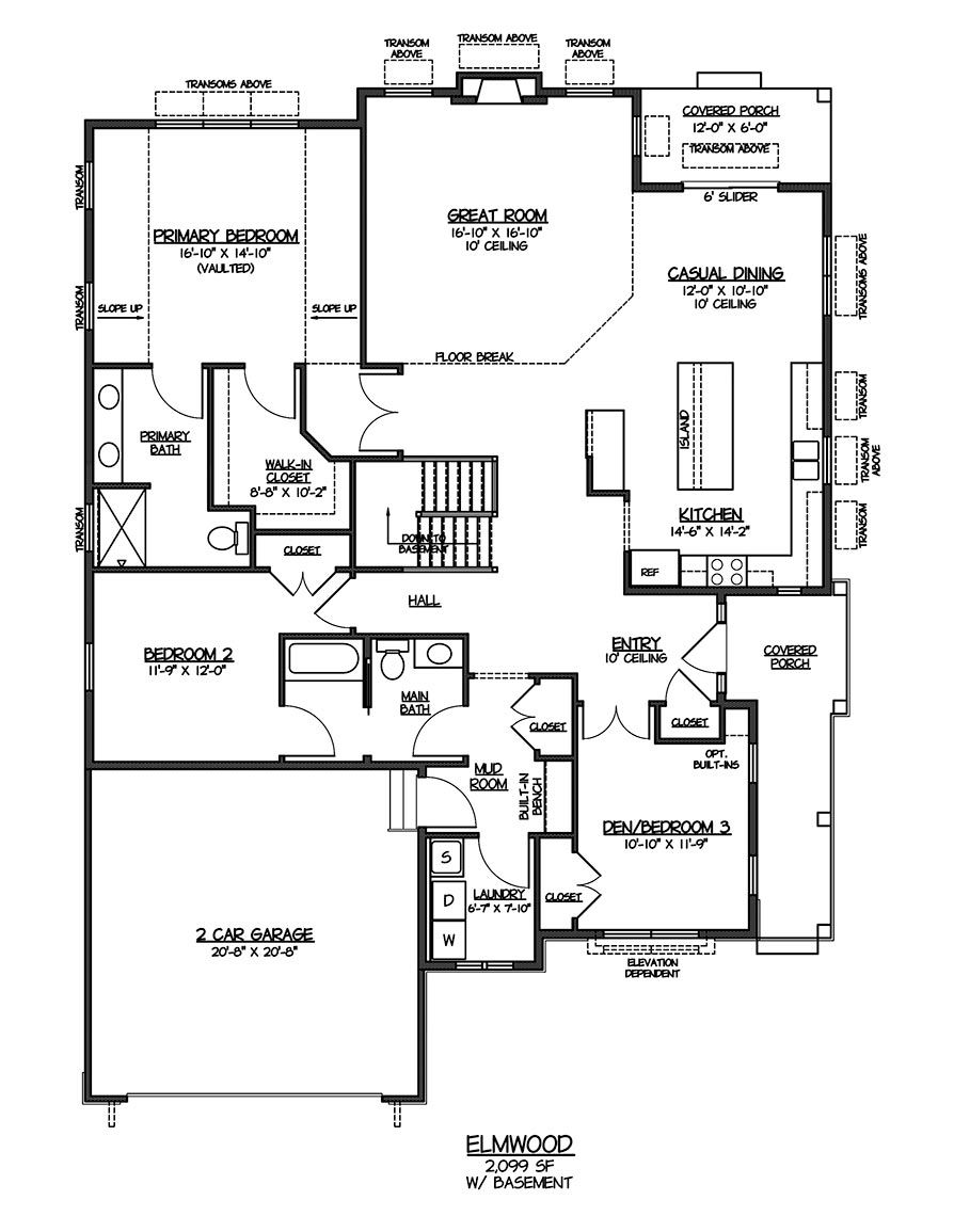
Elmwood

6705 Brecksville Rd, Independence, OH, 44131

by Petros Homes

From $798,900 This is the starting price for this plan and is subject to change.

  • 3 Beds
  • 2 Baths
  • 2 Car garage
  • 2,099 Sq Ft

    Overview

    Floor plan features

    • 1 Story
    • Basement
    • Covered Patio
    • Dining Room
    • Mud Room
    • Porch
    • Primary Bed Downstairs
    • Single Family
    • Walk-In Closets

    Explore this home

    Explore custom options for this floor plan.


    Community highlights

    Community amenities

    • Trails

    • Views

    About Concordia Oaks

    Concordia Oaks, nestled in the heart of the well-loved city of Independence, offers a variety of ranch and 1st-floor primary suite designs for those looking to right-size in a premier location. Winding cul-de-sacs, sidewalks on both sides of the street, and streetlamps throughout create a welcoming neighborhood, while home plans feature functional and flexible spaces in a variety of layouts. Available slab, basement, daylight and walk-out foundation types provide home buyers the option to choose what best suits their lifestyle, and the weekly lawn-care and snow removal support simplified living. More info about Concordia Oaks

    Have questions about the amenities?

    Get more details

    Your free brochure has been sent via email

    Request a tour

    Community location & sales center
    Elmwood

    Concordia Oaks
    Petros Homes
    6705 Brecksville Rd, Independence, OH 44131

    440-823-1911

    Contact Builder

    Sales Agent

    Donna Rondini

    Hours

    By Appointment. Contact Donna Rondini to arrange your visit.


    Neighborhood

    Community map

    Community location & sales center

    440-823-1911

    Contact Builder

    Please enter a valid location or select an item from the list.
    Driving directions to sales center

    Nearby schools

    Independence Local Schools

    Independence Primary School

    GreatSchools
    rating
    GreatSchools rating: 9 out of 10

    Elementary school. Grades PK to 4.

    Public school

    Teacher - student ratio: 1:16

    Students enrolled: 447

    216-642-5870

    7600 Hillside Rd, Independence, OH, 44131

    Independence Middle School

    GreatSchools
    rating
    GreatSchools rating: 8 out of 10

    Elementary-Middle school. Grades 5 to 8.

    Public school

    Teacher - student ratio: 1:13

    Students enrolled: 320

    216-642-5865

    6111 Archwood Rd, Independence, OH, 44131

    Independence High School

    GreatSchools
    rating
    GreatSchools rating: 8 out of 10

    High school. Grades 9 to 12.

    Public school

    Teacher - student ratio: 1:13

    Students enrolled: 334

    216-642-5860

    6001 Archwood Rd, Independence, OH, 44131

    GreatSchools ratings are provided by GreatSchools.org and are for reference only. Ratings may not be available for all schools. Please verify school assignments and details with the local school district.


    Amenities

    Community & neighborhood

    Local points of interest

    • Views

    Utilities

    • Electric Cleveland Electric Illuminating Company
    • Gas Dominion East Ohio Gas
    • Water/wastewater Cleveland Water

    Health and fitness

    • Trails

    Builder details

    Petros Homes

    Petros Homes Logo

    Petros Homes has built and maintained a successful company based upon strong work ethic and commitment for over three decades in the Northeast Ohio area. Sam Petros and partner Gary Naim have grown the company to a top volume producing new home building company that has built quality neighborhoods in seven counties across the state.

    Their dedication and commitment to integrity has earned them a reputation as the premiere local leading industry homebuilder. Petros Homes unique brand has been established by focusing on building innovative designs in highly sought after neighborhoods.

    Every employee at Petros Homes shares a passion for being the best and guides their daily work of building new homes and new client relationships by following uncompromised core values and providing ultimate customer satisfaction.

    In addition, the stellar business relationships that Petros Homes holds with their trade contractors, suppliers, preferred lender and title partners enables the company to sustain their reputation as a leading local home builder. Potential clients wishing to build a new home can be guaranteed the delivery of a finished product of undeniable quality and value.



    This listing's information was verified with the builder for accuracy 2 days ago