Emily Plan
Ready to build
16797 Ebony Street NW, Ramsey MN 55303
Home by Lennar

Last updated 3 days ago
The Price Range displayed reflects the base price of the homes built in this community.
You get to select from the many different types of homes built by this Builder and personalize your New Home with options and upgrades.
$15,000
2 BR
1 BA
3 GR
986 SQ FT

Elevation A3 - Emily Exterior Rendering A3 1/31
Overview
1 Bathroom
2 Bedrooms
2 Stories
3 Car Garage
986 Sq Ft
Primary Bed Downstairs
Single Family
Emily Plan Info
This split-level single-family home makes fantastic use of available space with an open concept layout featuring a modern kitchen with high-end appliances, dining room and spacious Great Room ideal for entertaining. There are two bedrooms on the primary floor, including the luxurious owner’s suite with a spacious bedroom, en-suite bathroom and walk-in closet.
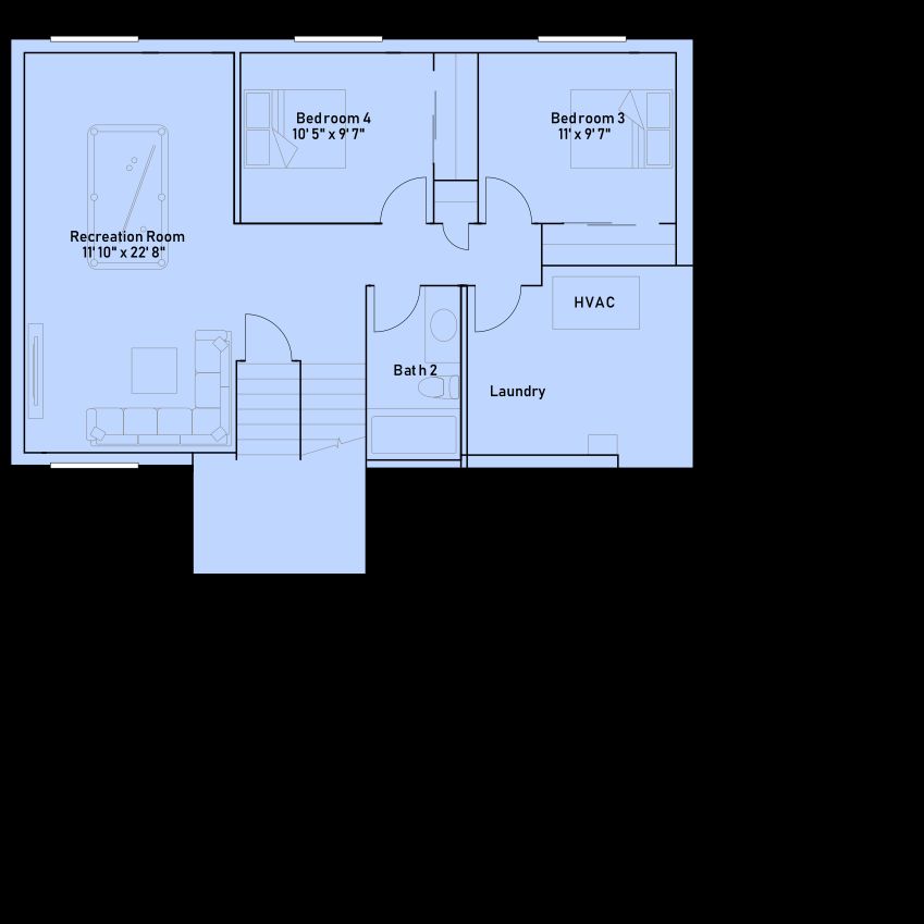
Floor plan center
View floor plan details for this property.
- Floor Plans
- Exterior Images
- Interior Images
- Other Media
Neighborhood
Community location & sales center
16797 Ebony Street NW
Ramsey, MN 55303
16797 Ebony Street NW
Ramsey, MN 55303
888-986-4161
Nearby schools
Anoka-hennepin Public School District
Elementary school. Grades KG to 5.
- Public school
- Teacher - student ratio: 1:16
- Students enrolled: 764
17003 Nowthen Blvd Nw, Ramsey, MN, 55303
763-433-5200
Middle school. Grades 6 to 8.
- Public school
- Teacher - student ratio: 1:16
- Students enrolled: 1678
1523 5th Ave, Anoka, MN, 55303
763-506-5000
High school. Grades 9 to 12.
- Public school
- Teacher - student ratio: 1:18
- Students enrolled: 2322
3939 7th Ave, Anoka, MN, 55303
763-506-6200
Actual schools may vary. We recommend verifying with the local school district, the school assignment and enrollment process.
Amenities
Home details
Ready to build
Build the home of your dreams with the Emily plan by selecting your favorite options. For the best selection, pick your lot in Harmony Farms today!
Community & neighborhood
Utilities
- Telephone CenturyLink (833) 250-6306
Community services & perks
- HOA fees: Unknown, please contact the builder
Neighborhood amenities
Coborn's Grocery Store Ramsey
3.24 miles away
7900 Sunwood Dr NW
Smak
4.86 miles away
3710 7th Ave
Rademacher Companies, Inc
5.31 miles away
14021 Round Lake Blvd NW
BILL'S Superette
5.31 miles away
3271 Viking Blvd NW
Andover County Market
5.54 miles away
13735 Round Lake Blvd NW
Wellnessone World LLC
3.62 miles away
14000 Sunfish Lake Blvd NW
Allison's Petite Pastries
4.02 miles away
14037 Saint Francis Blvd
Swedish Crown Bakery
5.32 miles away
530 W Main St
Walmart Bakery
5.68 miles away
18185 Zane St NW
Blue Egg Bakery
5.99 miles away
101 6th St NW
Domino's
0.91 mile away
6014 167th Ave NW
McDuffs Eatery & Pub
1.15 miles away
16659 Saint Francis Blvd
China Dragon
3.14 miles away
7962 Sunwood Dr NW
Acapulco Restaurante Mexicano
3.16 miles away
7988 Sunwood Dr NW
Caribou Coffee
3.16 miles away
7988 Sunwood Dr NW
Caribou Coffee
3.16 miles away
7988 Sunwood Dr NW
Caribou Coffee
4.00 miles away
14050 Saint Francis Blvd
Bridge Street Coffee
5.43 miles away
3122 Viking Blvd NW
Caribou Coffee
5.63 miles away
3507 Round Lake Blvd NW
Caribou Coffee
5.75 miles away
101 W Main St
J R Wrestling Products
1.57 miles away
15850 Potassium St NW
Fantasys
4.02 miles away
6139 Highway 10 NW
Claire's Inside Walmart
5.67 miles away
18185 Zane St NW
Walmart Supercenter
5.68 miles away
18185 Zane St NW
Xandy's Bridal House
5.84 miles away
2371 7th Ave
McDuffs Eatery & Pub
1.15 miles away
16659 Saint Francis Blvd
Aurelio's Pizza
3.81 miles away
6415 Highway 10 NW
Willy McCoys-Ramsey
3.81 miles away
6415 Highway 10 NW
Northwoods Bar & Grill
3.99 miles away
8167 Viking Blvd NW
Riversbend Bar & Grill
4.01 miles away
14077 Saint Francis Blvd
Please note this information may vary. If you come across anything inaccurate, please contact us.
Founded in 1954, Lennar is one of the nation's leading builders of quality homes for all generations, with more than one million new homes built for families across America. We build in some of the nation’s most popular cities, and our communities cater to all lifestyles and family dynamics, whether you are a first-time or move-up buyer, multigenerational family, or Active Adult. Lennar has reimagined the homebuying experience by including the most desired home features at no extra cost to you, from smart home technology to energy-conscious features. Our simplified homebuying experience offers Everything’s Included® at the best value, a myLennar homeownership account, and our family companies handle mortgage, title and insurance needs to ensure a smooth closing. Lennar’s Next Gen® - The home within a home® - offers a private suite that provides all the essentials multigenerational families need to work, learn, create or have a sense of independence. Whether you need a space for family, wellness, work or learning, you’ll have all the essentials you need with this suite of possibilities. We hold the highest level of integrity for our customers, associates, shareholders, trade partners, community, and environment. We are committed to doing the right thing for the right reason, being an innovator, and constantly focused on improving the quality of our homes.
TrustBuilder reviews
Take the next steps toward your new home
Emily Plan by Lennar
saved to favorites!
To see all the homes you’ve saved, visit the My Favorites section of your account.
Discover More Great Communities
Select additional listings for more information
We're preparing your brochure
You're now connected with Lennar. We'll send you more info soon.
The brochure will download automatically when ready.
Brochure downloaded successfully
Your brochure has been saved. You're now connected with Lennar, and we've emailed you a copy for your convenience.
The brochure will download automatically when ready.
Way to Go!
You’re connected with Lennar.
The best way to find out more is to visit the community yourself!