Essex Plan
Ready to build
26341 W Sablewood Circle, Plainfield IL 60585
Home by M/I Homes

Last updated 1 day ago
The Price Range displayed reflects the base price of the homes built in this community.
You get to select from the many different types of homes built by this Builder and personalize your New Home with options and upgrades.
4 BR
2.5 BA
3 GR
2,888 SQ FT

Essex Elevation Leightonpointe 1/20
Special offers
Explore the latest promotions at Leighton Pointe. Contact M/I Homes to learn more!
Take Advantage of Our Exclusive Home-to-Sell Program
New Rate: Lower Payments With 2/1 Buydown
Overview
1 Half Bathroom
2 Bathrooms
2 Stories
2888 Sq Ft
3 Car Garage
4 Bedrooms
Primary Bed Upstairs
Single Family
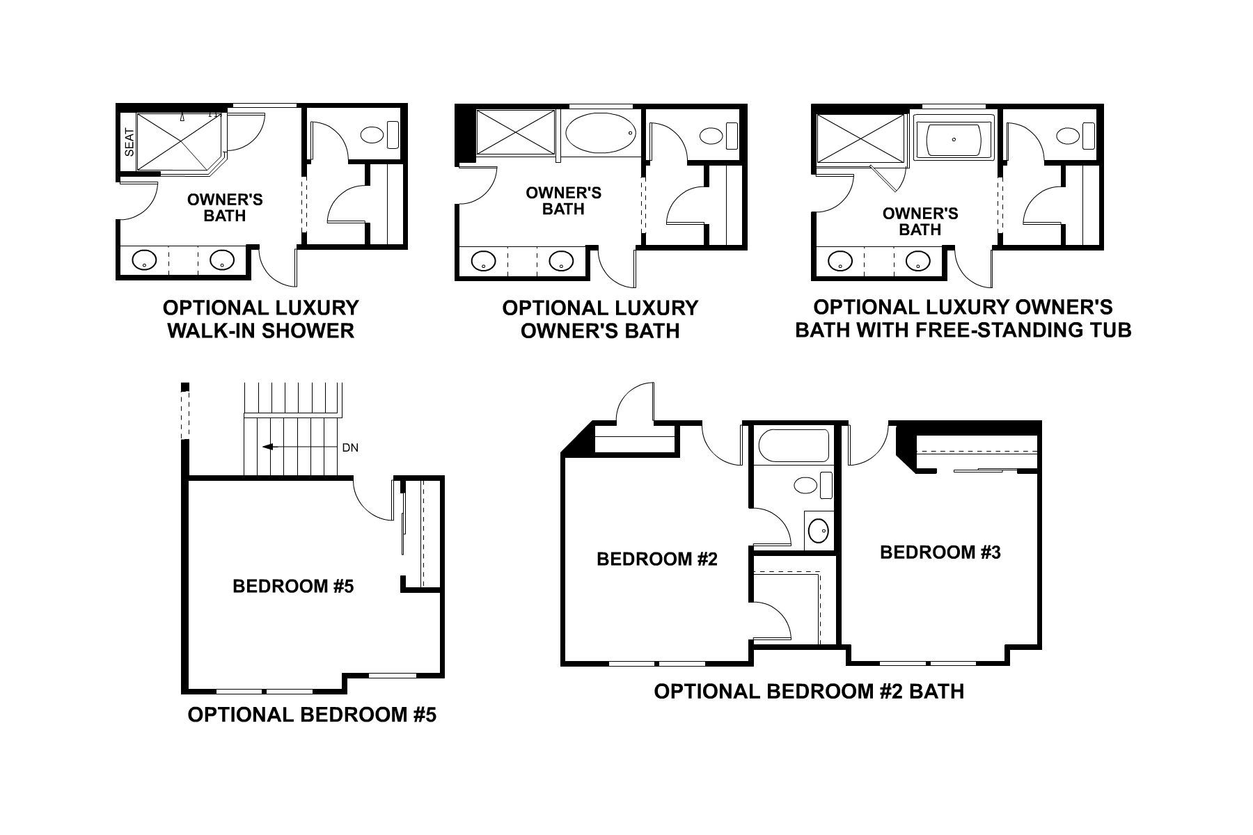
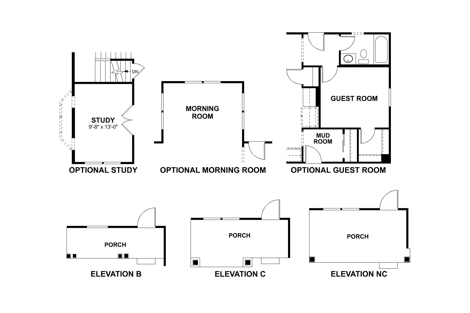
Essex Plan Info
The Essex, available at Leighton Pointe, is a thoughtfully designed floorplan offering over 3,000 square feet of functional living space.
Floor plan center
View floor plan details for this property.
- Floor Plans
- Exterior Images
- Interior Images
- Other Media
Explore custom options for this floor plan.
- Choose Option
- Include Features
Neighborhood
Community location & sales center
26341 W Sablewood Circle
Plainfield, IL 60585
26341 W Sablewood Circle
Plainfield, IL 60585
630-984-6391
From the North: Take Route 59 south. Turn right (west) on 135th Street. Turn right (north) onto Heggs Rd. and the community entrance will be on your left. From the South: Take Route 59 north. Turn left (west) on 135th Street. Turn right (north) onto Heggs Rd. and the community entrance will be on your left. If using Google Maps, please type in M/I Homes Leighton Pointe.
Nearby schools
Plainfield School District 202
Elementary school. Grades PK to 5.
- Public school
- Teacher - student ratio: 1:16
- Students enrolled: 626
24810 W 135th St, Plainfield, IL, 60544
815-439-2885
Middle school. Grades 6 to 8.
- Public school
- Teacher - student ratio: 1:15
- Students enrolled: 866
12425 S Van Dyke Rd, Plainfield, IL, 60585
815-439-4810
High school. Grades 9 to 12.
- Public school
- Teacher - student ratio: 1:17
- Students enrolled: 2377
12005 S 248th Ave, Plainfield, IL, 60585
815-609-8506
Actual schools may vary. We recommend verifying with the local school district, the school assignment and enrollment process.
Amenities
Home details
Ready to build
Build the home of your dreams with the Essex plan by selecting your favorite options. For the best selection, pick your lot in Leighton Pointe today!
Community & neighborhood
Local points of interest
- Settlers Park
- Plainfield Public Library
- CW Avery Family YMCA
- Lake Renwick Heron Rookery Nature Preserve
- Commissioners Park
- Keller's Farmstand
- Sable Creek Winery
- DuPage Childrens Hospital
- Backroads Burgers and Bar
- Plainfield Park District
Community services & perks
- HOA fees: Unknown, please contact the builder
- Park
Neighborhood amenities
Jewel-Osco
2.63 miles away
13460 S Route 59
ALDI
2.67 miles away
13550 S Route 59
Meijer
2.94 miles away
13521 S Route 59
Sanctuary
3.15 miles away
24216 W Lockport St
Meijer Bakery
2.94 miles away
13521 S Route 59
20/30 Fast Track
3.18 miles away
24210 W Lockport St
Milette's Cakes
3.30 miles away
24042 W Lockport St
Cakeface Cupcakes
3.99 miles away
24014 W Renwick Rd
MS Jazzy Crab
1.10 miles away
26204 W Milestone Dr
Backroads Burger & Bar
1.84 miles away
13717 S Route 30
Fat Ricky's Old World Pizza
1.84 miles away
13717 S Route 30
Tortilla Flatz Mexican Grill
1.84 miles away
13717 S Route 30
Steve Buresh's Cheesecake Store & Sandwich Shop
1.94 miles away
14210 S Route 30
Dunkin'
2.82 miles away
13313 S Route 59
Starbucks
2.92 miles away
12640 S Route 59
Starbucks
3.29 miles away
23915 W Main St
Krema Coffee House
3.31 miles away
24038 W Lockport St
Dunkin'
3.32 miles away
11904 S Route 59
S K Fashions
1.13 miles away
26209 W Chatham Dr
Target
2.76 miles away
12800 S Route 59
Ross Dress For Less
2.79 miles away
12700 S Route 59
Wear Your Purpose LLC
3.08 miles away
24034 Nightingale Ct
DNA Athletics
3.18 miles away
24210 W Lockport St
Chili's
2.88 miles away
12740 S Route 59
Sovereign
3.15 miles away
24216 W Lockport St
Buffalo Wild Wings
3.16 miles away
11820 Illinois Route 59
NWB Next Whiskey Bar Plainfield
3.20 miles away
24205 W Lockport St
Freedom Brothers Pizzeria & Alehouse
3.29 miles away
11914 S Route 59
Please note this information may vary. If you come across anything inaccurate, please contact us.
M/I Homes has been building new homes of outstanding quality and superior design for more than 40 years. Founded in 1976 by Irving and Melvin Schottenstein, and guided by Irving’s drive to always “treat the customer right,” we’ve fulfilled the dreams of more than 150,000 homeowners, and grown to become one of the nation’s leading homebuilders.
Take the next steps toward your new home
Essex Plan by M/I Homes
saved to favorites!
To see all the homes you’ve saved, visit the My Favorites section of your account.
Discover More Great Communities
Select additional listings for more information
We're preparing your brochure
You're now connected with M/I Homes. We'll send you more info soon.
The brochure will download automatically when ready.
Brochure downloaded successfully
Your brochure has been saved. You're now connected with M/I Homes, and we've emailed you a copy for your convenience.
The brochure will download automatically when ready.
Way to Go!
You’re connected with M/I Homes.
The best way to find out more is to visit the community yourself!