Fiji Plan
Ready to build
687 Sunforest Lane, New Braunfels TX 78130
Home by DRB Homes

Last updated 20 hours ago
The Price Range displayed reflects the base price of the homes built in this community.
You get to select from the many different types of homes built by this Builder and personalize your New Home with options and upgrades.
3 BR
2 BA
2 GR
2,010 SQ FT

Elevation M.jpg 1/4
Overview
1 Story
2 Bathrooms
2 Car Garage
2010 Sq Ft
3 Bedrooms
Primary Bed Downstairs
Single Family
Fiji Plan Info
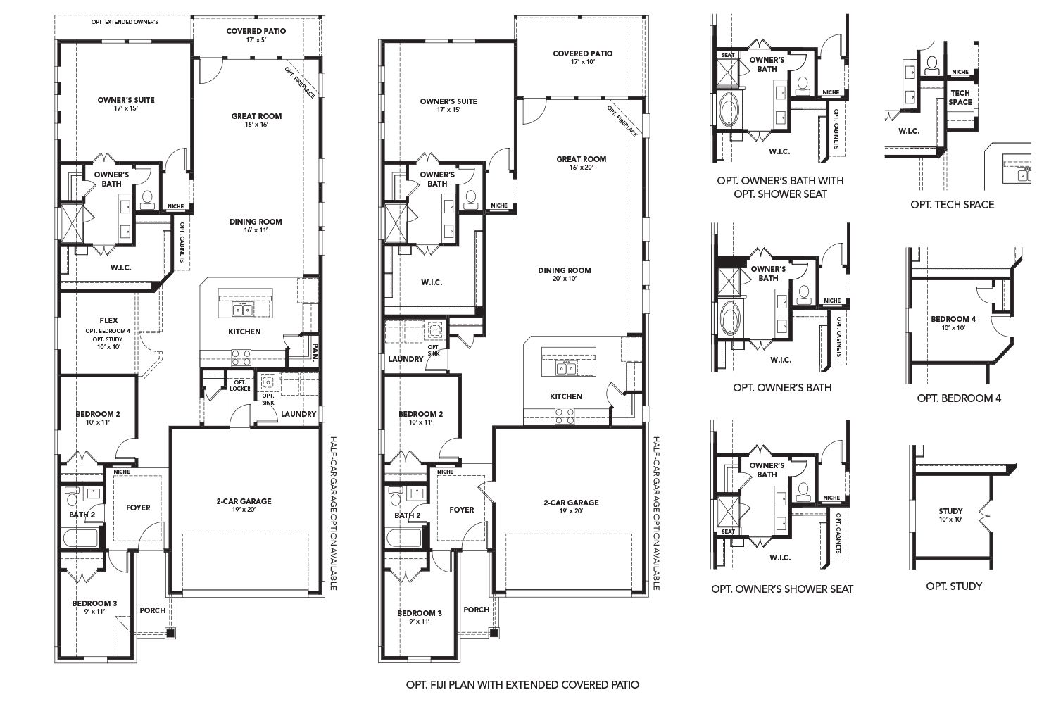
The Fiji floor plan offers the perfect blend of modern design, everyday functionality, and relaxing comfort, all in a single-story layout that feels open, welcoming, and effortlessly livable. From the moment you enter, you’re greeted by a sense of space and light that invites you to breathe deep and feel at home. At the heart of the home, the kitchen, dining area, and great room flow together in a spacious open-concept design. Whether you’re preparing meals, spending time with family, or entertaining guests, this central hub keeps everything and everyone connected. A large kitchen island and nearby pantry provide plenty of prep and storage space, while oversized windows brighten the entire living area with natural light. The owner’s suite is tucked at the back of the home for maximum privacy and features a large bedroom, a beautifully designed bath, and a generous closet. Two additional bedrooms are positioned in a separate wing, creating space for guests or family and a flex space can serve as a fourth bedroom, home office or private study. The Fiji also includes thoughtful storage throughout, making everyday routines feel organized and easy. A covered patio extends your living space outdoors, offering a perfect place for morning coffee, evening relaxation, or casual gatherings under the open sky. With its graceful flow, functional spaces, and warm, welcoming style, the Fiji makes everyday living feel effortless and inspired, a place where comfort and connection naturally come together.
Floor plan center
View floor plan details for this property.
- Floor Plans
- Exterior Images
- Interior Images
- Other Media
Neighborhood
Community location & sales center
687 Sunforest Lane
New Braunfels, TX 78130
687 Sunforest Lane
New Braunfels, TX 78130
888-861-8665
Take Exit 191 from I-35 N and left on FM 306. Go 2 miles, turn right on Goodwin Lane. Continue for 2 miles and turn left on Orion Drive. Go half a mile, turn right on Maximilian Lane, then left to the model home at 687 Sunforest Lane.
Schools near Sunflower Ridge
- Comal Independent School District
- New Braunfels Independent School District
Actual schools may vary. Contact the builder for more information.
Amenities
Home details
Ready to build
Build the home of your dreams with the Fiji plan by selecting your favorite options. For the best selection, pick your lot in Sunflower Ridge today!
Community & neighborhood
Health and fitness
- Trails
Community services & perks
- HOA fees: Unknown, please contact the builder
Let DRB Homes put decades of industry experience to work for you. We understand that building a new home is not a one-size-fits-all process or journey; get ready to personalize your home to meet your unique needs. You can start by exploring the full portfolio of our most popular floor plans, all available in our new home communities across the region.
Our award-winning team is backed by the DRB Group, a growing, dynamic organization that includes two residential builder brands, a title company, and a residential development services branch providing entitlement, development and construction services. DRB Group's complete spectrum of services operates in 14 states and 35 markets -East Coast to Arizona, Colorado, Texas, and beyond.
Our DRB team will work with you every step of the way. From the on-site salespeople you meet with to the construction crew laying the foundation for your home — we're all working toward the same goal. The same is true for the members of our leadership team, who oversee the entire operation and ensure a seamless process.
TrustBuilder reviews
Take the next steps toward your new home
Fiji Plan by DRB Homes
saved to favorites!
To see all the homes you’ve saved, visit the My Favorites section of your account.
Discover More Great Communities
Select additional listings for more information
We're preparing your brochure
You're now connected with DRB Homes. We'll send you more info soon.
The brochure will download automatically when ready.
Brochure downloaded successfully
Your brochure has been saved. You're now connected with DRB Homes, and we've emailed you a copy for your convenience.
The brochure will download automatically when ready.
Way to Go!
You’re connected with DRB Homes.
The best way to find out more is to visit the community yourself!