Franklin Plan
Ready to build
27114 Talora Lake Drive, Katy TX 77493
Home by D.R. Horton
at Sunterra

Last updated 2 days ago
The Price Range displayed reflects the base price of the homes built in this community.
You get to select from the many different types of homes built by this Builder and personalize your New Home with options and upgrades.
5 BR
2.5 BA
2 GR
1,947 SQ FT

Elevation 0 1/3
Special offers
Explore the latest promotions at Sunterra. Contact D.R. Horton to learn more!
Bling Out Your Home
3.99 Rate
Overview
1 Half Bathroom
1947 Sq Ft
2 Bathrooms
2 Car Garage
2 Stories
5 Bedrooms
Single Family
Franklin Plan Info
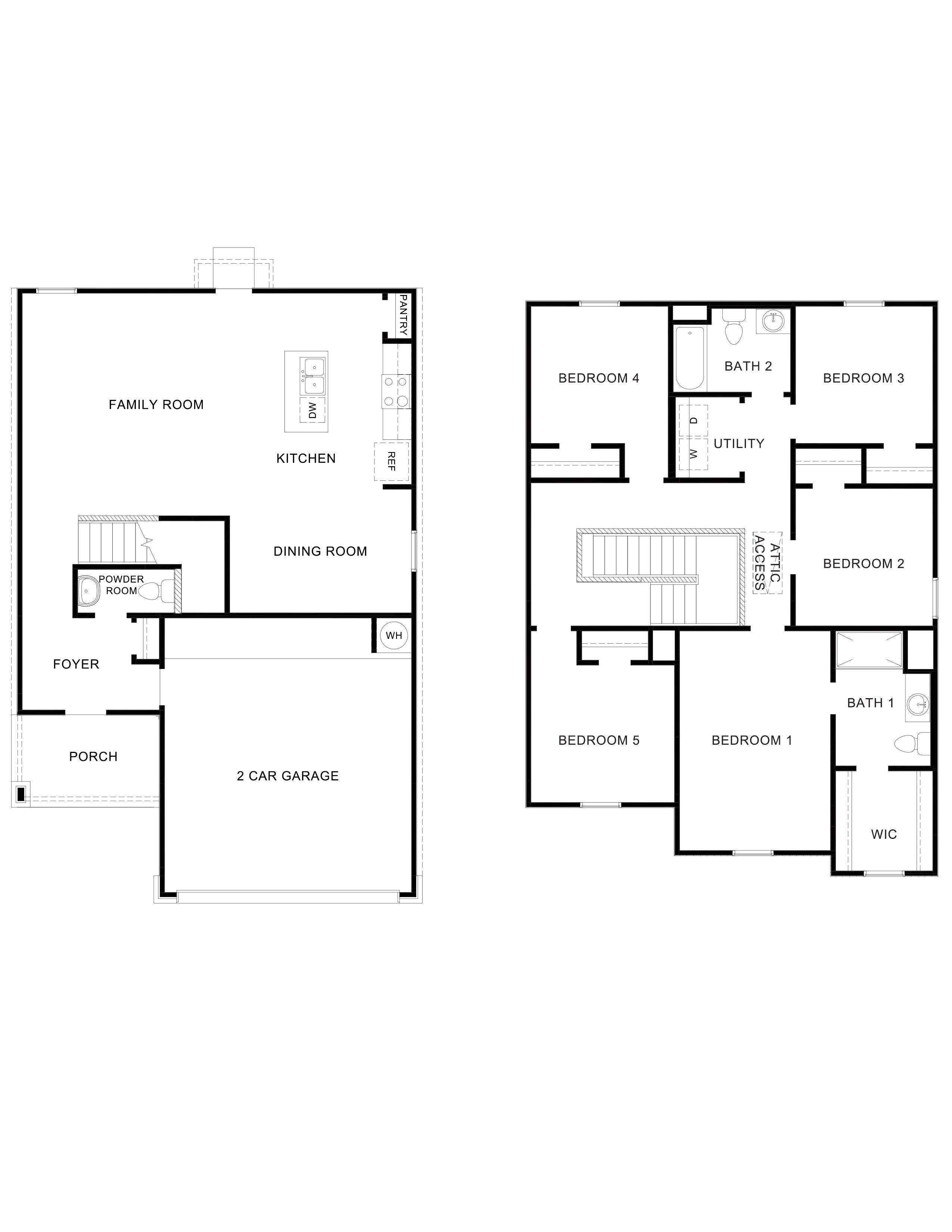
Welcome to the Franklin Plan, located in the Sunterra community. This new home layout offers 2 classic front exteriors, 5 bedrooms, 2.5 baths, 2 car-garage and 1891 square feet of comfortable living. Step inside The Franklin to find an elongated foyer opening to an open concept living room, kitchen, and dining area. The gourmet kitchen faces the living area so you don't miss a thing while cooking and includes quartz counter tops, stainless steel appliances and shaker style cabinetry. The main bedroom is located toward the front of the home on the second story and features an attractive attached bathroom with a walk-in shower, quartz countertops, a grand walk-in closet and plenty of storage space. The second story includes all secondary bedrooms, and two full bathrooms. You'll have carpeted floors in every bedroom and sheet vinyl flooring in your bathrooms and utility room. Additional features include sheet vinyl flooring in entry, living room, and all wet areas, and quartz counter tops in all bathrooms. Using one central hub that talks to all the devices in your home, you can control the lights, thermostat and locks, all from your cellular device. Contact us today and find your home in Sunterra by clicking the text with us button or the request information button.
Floor plan center
View floor plan details for this property.
- Floor Plans
- Exterior Images
- Interior Images
- Other Media
Neighborhood
Community location & sales center
27114 Talora Lake Drive
Katy, TX 77493
27114 Talora Lake Drive
Katy, TX 77493
888-989-2827
From 99 head West on Clay Rd. Turn right at Pitts Road, left on Stockdick Rd., first right on Sparrow Springs Dr. - road turns into Talora Lake Dr. Our Model Home will be on your right.
Nearby schools
Katy Independent School District
Middle school. Grades 6 to 8.
- Public school
- Teacher - student ratio: 1:13
- Students enrolled: 1094
5350 Franz Rd, Katy, TX, 77493
281-237-6800
High school. Grades 9 to 12.
- Public school
- Teacher - student ratio: 1:16
- Students enrolled: 3330
6331 Highway Blvd, Katy, TX, 77494
281-237-6700
Actual schools may vary. We recommend verifying with the local school district, the school assignment and enrollment process.
Amenities
Home details
Ready to build
Build the home of your dreams with the Franklin plan by selecting your favorite options. For the best selection, pick your lot in Sunterra today!
Community & neighborhood
Community services & perks
- HOA fees: Unknown, please contact the builder
In 1978, D.R. Horton broke ground on our first home in Fort Worth, Texas. Since that day, the company has defined its success not by bricks and mortar, but by the satisfaction of the families that make our houses their homes. Our foundation is a single, guiding principle: a value-first dedication to the individual needs of each and every one of our nation’s homebuyers.
From first-time homebuyers to empty nesters, our family of brands provides a home for every stage in life. Our highly-trained, market experts are where you want to live, from New Jersey to Hawaii, providing unique, personalized services tailored to your individual needs. But the real value comes from the quality construction we put into every home, and the peace of mind that comes with a premium-backed warranty from America’s Number One Homebuilder.
We’ve come a long way, and while more people choose our family of brands over any other builder in the country, we never forget the most important thing of all – the families that choose us for their place to call home.
So continue to live out those dreams, America, and know we’ll be here for you every step of the way.
Take the next steps toward your new home
Franklin Plan by D.R. Horton
saved to favorites!
To see all the homes you’ve saved, visit the My Favorites section of your account.
Discover More Great Communities
Select additional listings for more information
We're preparing your brochure
You're now connected with D.R. Horton. We'll send you more info soon.
The brochure will download automatically when ready.
Brochure downloaded successfully
Your brochure has been saved. You're now connected with D.R. Horton, and we've emailed you a copy for your convenience.
The brochure will download automatically when ready.
Way to Go!
You’re connected with D.R. Horton.
The best way to find out more is to visit the community yourself!