Galen Plan
Ready to build
86 Sanctuary Drive, Ridgeland SC 29936
Home by D.R. Horton

Last updated 2 days ago
The Price Range displayed reflects the base price of the homes built in this community.
You get to select from the many different types of homes built by this Builder and personalize your New Home with options and upgrades.
$12,500
4 BR
2.5 BA
2 GR
2,340 SQ FT

Elevation 0 1/39
Special offers
Explore the latest promotions at The Retreat at East Argent. Contact D.R. Horton to learn more!
Special Interest Rate
Overview
1 Half Bathroom
2 Bathrooms
2 Car Garage
2 Stories
2340 Sq Ft
4 Bedrooms
Single Family
Galen Plan Info
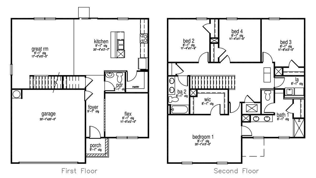
Meet the Galen-a bold and versatile two-story floor plan offering 2,340 square feet of well-designed space, including 4 bedrooms, 2.5 bathrooms, a 2-car garage, and a flex room that adds endless possibilities. Whether you're growing your household or simply want more breathing room, the Galen at The Retreat at East Argent delivers comfort and flexibility in all the right places. The main floor welcomes you with a dedicated flex room off the foyer-ideal for a home office, playroom, or formal dining space. From there, the home opens up to an expansive kitchen, dining area, and great room. The oversized kitchen island, ample cabinet space, walk-in pantry, and stainless-steel appliances make it a chef's dream and an entertainer's paradise. A powder room and coat closet add convenience, and the 2-car garage offers plenty of storage. Upstairs, the primary suite is a true retreat, complete with a massive walk-in closet, dual vanity, and large walk-in shower. Three additional bedrooms-each generously sized-share a full bath with double vanity, and a dedicated laundry room adds functionality where it matters most. From busy mornings to laid-back weekends, the Galen is designed to keep life running smoothly-wrapped in stylish curb appeal and modern comfort. Home is under construction. Pictures, photographs, colors, features, & sizes are for illustration purposes only and will vary from the homes as built. The photos are Not of subject property.
Floor plan center
View floor plan details for this property.
- Floor Plans
- Exterior Images
- Interior Images
- Other Media
Neighborhood
Community location & sales center
86 Sanctuary Drive
Ridgeland, SC 29936
86 Sanctuary Drive
Ridgeland, SC 29936
888-338-1646
From Beaufort Take SC 170 W Community will be on the right From Bluffton US-278 W/Fording Island Rd Exit onto SC-170 E toward Beaufort Community will be on the left
Schools near The Retreat at East Argent
- Jasper 01
Actual schools may vary. Contact the builder for more information.
Amenities
Home details
Ready to build
Build the home of your dreams with the Galen plan by selecting your favorite options. For the best selection, pick your lot in The Retreat at East Argent today!
Community & neighborhood
Community services & perks
- HOA fees: Unknown, please contact the builder
Neighborhood amenities
Publix
3.77 miles away
112 Nickle Plate Rd
Food Lion
4.17 miles away
210 Okatie Village Dr
Lowcountry Fresh Market & Cafe
5.59 miles away
303 Bleecker St S
Kroger
5.81 miles away
27 Discovery Dr
Publix
6.07 miles away
101 Buckwalter Place Blvd
Hilton Head Cookie Co
2.62 miles away
498 Browns Cove Rd
Frankie Cakes
6.72 miles away
124 Pickett Creek Ln
Kroger Bakery
7.74 miles away
125 Towne Dr
Pan Fresco Ole
7.95 miles away
4492 Bluffton Park Cres
Delectable Desserts By Russ
7.98 miles away
4376 Bluffton Pkwy
Hunt Brothers Pizza
1.22 miles away
2935 N Okatie Hwy
La Parrilla Mexican Grill
1.22 miles away
2961 N Okatie Hwy
Cherry Point Chicken & BBQ
1.25 miles away
2915 N Okatie Hwy
China Express
1.46 miles away
2641 N Okatie Hwy
Sunset Pizzeria
1.53 miles away
2625 N Okatie Hwy
Lighthouse Coffee Co
1.01 miles away
305 Lowcountry Dr
Dunkin'
3.74 miles away
6 Palmer Grace Dr E
Tropical Smoothie Cafe
3.75 miles away
468 D Mark Cummings Rd
Starbucks
3.93 miles away
143 Okatie Center Blvd N
Starbucks
5.81 miles away
27 Discovery Dr
Sexy For Life
2.46 miles away
51 Riverwalk Blvd
Sports Addiction
4.15 miles away
200 Okatie Village Dr
Spartina 449
6.68 miles away
10 Buck Island Rd
Low Country Bride & Gown LLC
7.90 miles away
59 Sheridan Park Cir
Blush Bridal & Formal Wear
8.17 miles away
70 Pennington Dr
Sports Baba Bar & Restaurant
2.46 miles away
51 Riverwalk Blvd
Tailgeters Bar & Grill
3.18 miles away
1108 Argent Blvd
Okatie Ale House
4.07 miles away
25 William Pope Dr
Argent Lakes Pub & Pizzeria
5.06 miles away
1291 Sergeant William Jasper B
Outback Steakhouse
5.26 miles away
100 Buckwalter Pkwy
Please note this information may vary. If you come across anything inaccurate, please contact us.
In 1978, D.R. Horton broke ground on our first home in Fort Worth, Texas. Since that day, the company has defined its success not by bricks and mortar, but by the satisfaction of the families that make our houses their homes. Our foundation is a single, guiding principle: a value-first dedication to the individual needs of each and every one of our nation’s homebuyers.
From first-time homebuyers to empty nesters, our family of brands provides a home for every stage in life. Our highly-trained, market experts are where you want to live, from New Jersey to Hawaii, providing unique, personalized services tailored to your individual needs. But the real value comes from the quality construction we put into every home, and the peace of mind that comes with a premium-backed warranty from America’s Number One Homebuilder.
We’ve come a long way, and while more people choose our family of brands over any other builder in the country, we never forget the most important thing of all – the families that choose us for their place to call home.
So continue to live out those dreams, America, and know we’ll be here for you every step of the way.
Take the next steps toward your new home
Galen Plan by D.R. Horton
saved to favorites!
To see all the homes you’ve saved, visit the My Favorites section of your account.
Discover More Great Communities
Select additional listings for more information
We're preparing your brochure
You're now connected with D.R. Horton. We'll send you more info soon.
The brochure will download automatically when ready.
Brochure downloaded successfully
Your brochure has been saved. You're now connected with D.R. Horton, and we've emailed you a copy for your convenience.
The brochure will download automatically when ready.
Way to Go!
You’re connected with D.R. Horton.
The best way to find out more is to visit the community yourself!