Harley Plan
Ready to build
7520 W Saguaro Perch Way, Marana AZ 85658
Home by Richmond American Homes
Last updated 24 hours ago
The Price Range displayed reflects the base price of the homes built in this community.
You get to select from the many different types of homes built by this Builder and personalize your New Home with options and upgrades.
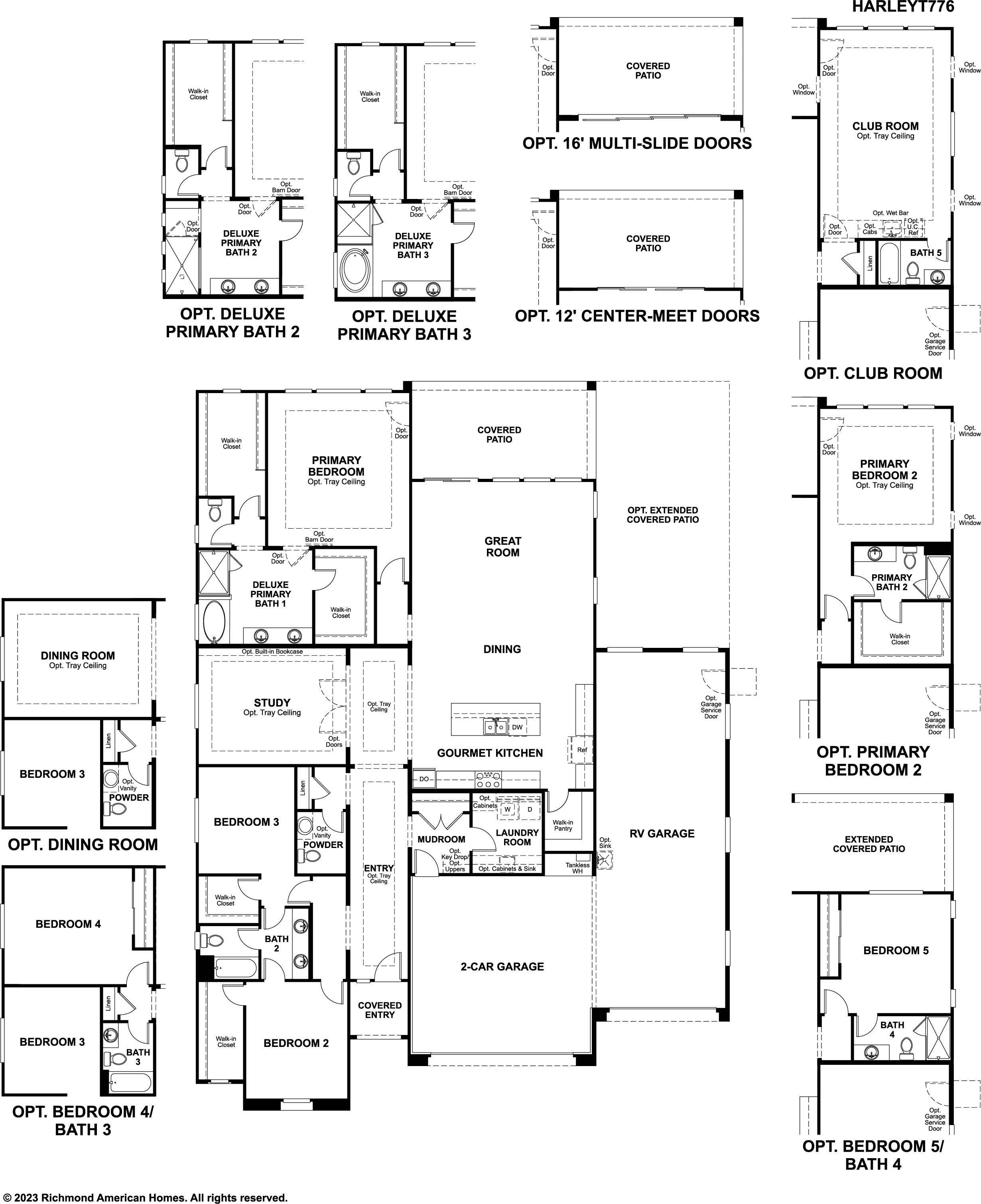
3 BR
2.5 BA
3 GR
2,747 SQ FT

Harley-T776-SaguaroReserve Elevation A 1/9
Special offers
Explore the latest promotions at Saguaro Reserve. Contact Richmond American Homes to learn more!
Tucson Homes of the Week
5/1 Adjustable-rate Mortgage Offer
Get today's best offers...
Overview
1 Half Bathroom
1 Story
2 Bathrooms
2747 Sq Ft
3 Bedrooms
3 Car Garage
Primary Bed Downstairs
Single Family
Harley Plan Info
This ranch-style plan offers abundant living space, a range of personalization options-and an attached RV/boat garage! Two bedrooms with walk-in closets are off the entryway, as well as a powder room and a full bath. The study is steps away and can be optioned as a dining room or fourth bedroom. The primary suite features two walk-in closets and an attached bathroom that can be optioned with a walk-in shower or as a deluxe bath. Adjacent is an expansive open layout showcasing a great room with access to the covered patio, a dining nook and a kitchen with a large pantry and a convenient center island. You'll also find a mudroom, laundry and generously sized space that can be built as a club room or an additional bedroom and bathroom.
Floor plan center
View floor plan details for this property.
- Floor Plans
- Exterior Images
- Interior Images
- Other Media
Explore custom options for this floor plan.
- Choose Option
- Include Features
Neighborhood
Community location & sales center
7520 W Saguaro Perch Way
Marana, AZ 85658
7520 W Saguaro Perch Way
Marana, AZ 85658
888-314-4406
Take I-10 West to the Twin Peaks exit. Turn right on Twin Peaks Road. Continue past Tangerine Road until road becomes Dove Mountain Boulevard. Turn right on Dove Reserve Drive, then left on Saguaro Perch Drive. Community is on the right.
Schools near Saguaro Reserve
- Marana School District
Actual schools may vary. Contact the builder for more information.
- Dove Mountain K-8
- Marana Unified School District
Amenities
Home details
Ready to build
Build the home of your dreams with the Harley plan by selecting your favorite options. For the best selection, pick your lot in Saguaro Reserve today!
Community & neighborhood
Social activities
- Harkins Theatres Arizona Pavilions 12
Health and fitness
- Northwest Medical Center
- Northwest Medical Center - Oro Valley
- Golf Course
- Trails
Community services & perks
- HOA fees: Unknown, please contact the builder
- Gated community
Neighborhood amenities
Fry's Food
5.48 miles away
12100 N Thornydale Rd
Fry's Marketplace
5.48 miles away
12100 N Thornydale Rd
Safeway
6.60 miles away
9100 N Silverbell Rd
Walmart Supercenter
7.92 miles away
8280 N Cortaro Rd
Fry's Food
8.15 miles away
7870 N Silverbell Rd
Safeway Floral
6.60 miles away
9100 N Silverbell Rd
Aim For Health Inc
7.61 miles away
8934 N Fitzgerald Ln
GNC
7.85 miles away
8260 N Cortaro Rd
Cayton's Restaurant
1.35 miles away
6501 W Boulder Bridge Pass
Core Kitchen & Wine Bar
2.30 miles away
15000 N Secret Springs Dr
Ignite
2.30 miles away
15000 N Secret Springs Dr
The Gallery Restaurant
2.70 miles away
14000 N Dove Mountain Blvd
Cayton's
3.20 miles away
16501 W Boulder Bridge Pass
Starbucks
5.34 miles away
13892 N Sandario Rd
Starbucks
5.48 miles away
12100 N Thornydale Rd
Sunrise Coffee Spot
5.60 miles away
12675 N Maize Dr
Dutch Bros Coffee
5.67 miles away
13956 N Sandario Rd
Orange Julius
5.67 miles away
6401 W Marana Center Blvd
Hoku Wear
5.43 miles away
12090 N Thornydale Rd
Family Dollar
5.67 miles away
11825 W Grier Rd
adidas Outlet Store
6.45 miles away
6401 W Marana Center Blvd
American Eagle Store
6.45 miles away
6401 W Marana Center Blvd
Banana Republic Factory Store
6.45 miles away
6401 W Marana Center Blvd
Dove Mountain Brewing Co
3.85 miles away
12130 N Dove Mountain Blvd
La Tumbleweed Lounge
5.39 miles away
13915 N Sandario Rd
Jacksons Gastro Pub & Grill
7.66 miles away
8235 N Silverbell Rd
Station
7.66 miles away
8235 N Silverbell Rd
Nana's Kitchen
7.79 miles away
8225 N Courtney Page Way
Please note this information may vary. If you come across anything inaccurate, please contact us.
What sets Richmond American Homes companies apart from other leading homebuilders? Many will say it's the inspired floor plans, incredible included features, quality construction and unwavering commitment to customer satisfaction. Although these all play a role, personalization is what truly makes the difference. The company may have built more than 210,000 homes over the last 40+ years, but each one turns out anything but cookie cutter!
How do we make each Richmond American home unique? By offering homebuyers who build a new home from the ground up the opportunity to choose from hundreds of fixture and finish options at our innovative Home Gallery™ design centers across the country. From the kitchen cabinets and countertops to the surround sound, there are countless opportunities to tailor the floor plans, along with seasoned advice to assist customers every step of the way.
The Richmond American Homes companies have homebuilding operations in several states, including Arizona, California, Colorado, Florida, Idaho, Maryland, Nevada, Oregon, Pennsylvania, Utah, Virginia and Washington. With an impressive lineup of ranch, two-story and three-story floor plans, and several sought-after home collections available, there are options that appeal to a wide range of homebuyers at a variety of price points. Customers can also take advantage of the one-stop shopping convenience offered by Richmond American’s affiliates, HomeAmerican Mortgage Corporation, American Home Insurance Agency, Inc. and American Home Title and Escrow Company. Together, these companies offer a streamlined homebuying experience from start to finish. Discover your dream home—and make it your own—today!
TrustBuilder reviews
Take the next steps toward your new home
Harley Plan by Richmond American Homes
saved to favorites!
To see all the homes you’ve saved, visit the My Favorites section of your account.
Discover More Great Communities
Select additional listings for more information
We're preparing your brochure
You're now connected with Richmond American Homes. We'll send you more info soon.
The brochure will download automatically when ready.
Brochure downloaded successfully
Your brochure has been saved. You're now connected with Richmond American Homes, and we've emailed you a copy for your convenience.
The brochure will download automatically when ready.
Way to Go!
You’re connected with Richmond American Homes.
The best way to find out more is to visit the community yourself!