Hayden Plan
Ready to build
86 Sanctuary Drive, Ridgeland SC 29936
Home by D.R. Horton

Last updated 1 day ago
The Price Range displayed reflects the base price of the homes built in this community.
You get to select from the many different types of homes built by this Builder and personalize your New Home with options and upgrades.
5 BR
3 BA
2 GR
2,511 SQ FT

Elevation 0 1/35
Overview
2 Stories
Single Family
Hayden Plan Info
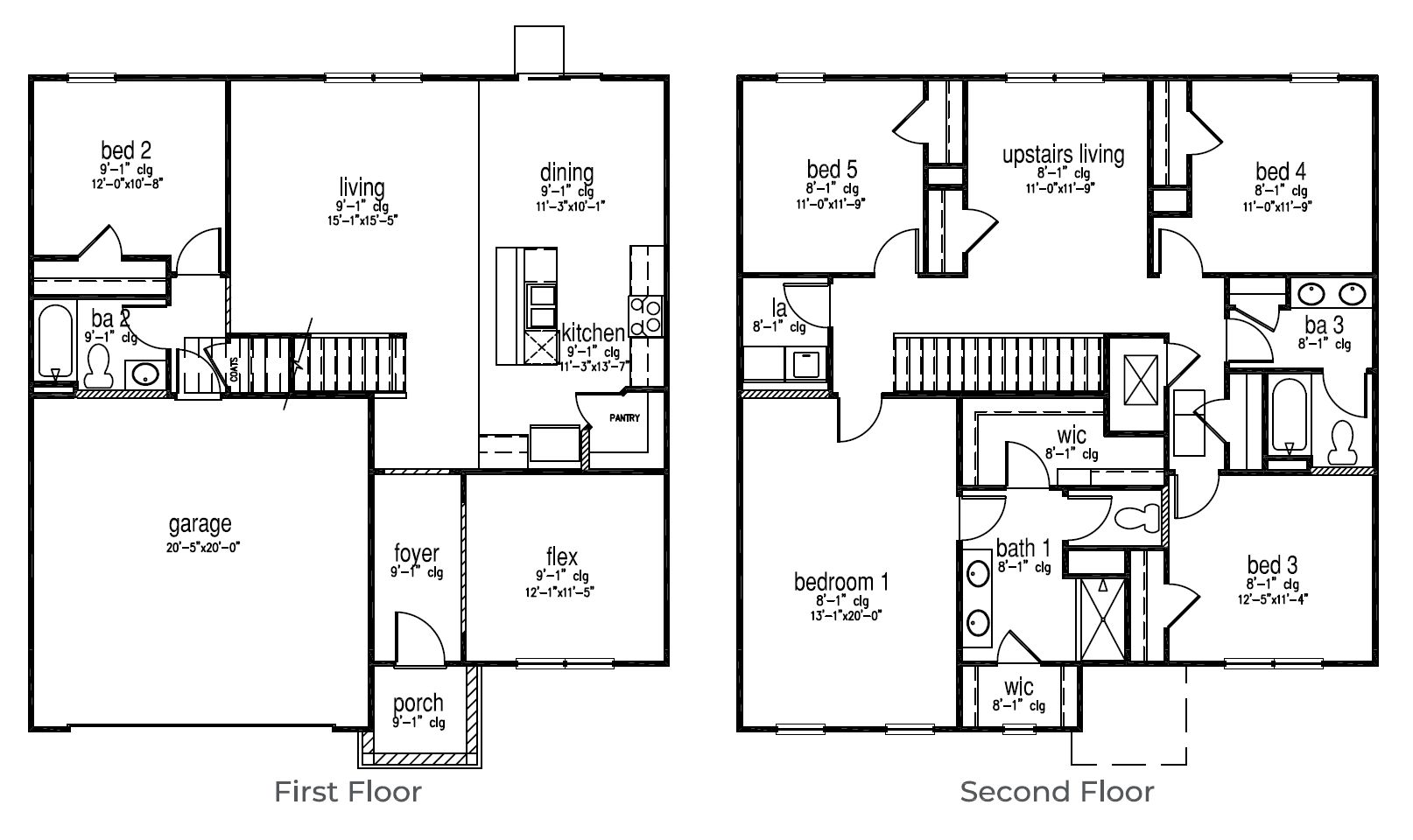
Introducing the Hayden floor plan, a spacious 5-bedroom, 3-bath home offering 2,511 sq. ft. of versatile living space in The Retreat at East Argent, one of Bluffton's premier natural gas communities. The first floor features an open-concept layout with a modern kitchen equipped with a natural gas stove, stainless steel appliances, a large center island, and a walk-in pantry. The kitchen flows seamlessly into the dining and living areas, making it perfect for entertaining. A private first-floor guest bedroom with a full bath adds flexibility for visitors or multigenerational living. A dedicated flex room at the front of the home can be used as an office, playroom, or formal dining. Upstairs, the Hayden offers an expansive primary suite with dual walk-in closets and a spacious bathroom. Four additional bedrooms-including one with its own walk-in closet-provide room for everyone. The second-floor loft creates an additional living space ideal for a media room, homework zone, or lounge. A convenient upstairs laundry room and two full secondary bathrooms complete this thoughtful layout. Located in The Retreat at East Argent, this home provides the comfort, energy efficiency, and everyday convenience of natural gas living, with easy access to Bluffton, Hardeeville, I-95, and Hilton Head.
Floor plan center
View floor plan details for this property.
- Floor Plans
- Exterior Images
- Interior Images
- Other Media
Neighborhood
Community location & sales center
86 Sanctuary Drive
Ridgeland, SC 29936
86 Sanctuary Drive
Ridgeland, SC 29936
888-338-1646
From Beaufort Take SC 170 W Community will be on the right From Bluffton US-278 W/Fording Island Rd Exit onto SC-170 E toward Beaufort Community will be on the left
Nearby schools
Jasper 01
Hardeeville Elementary School
Elementary school. Grades PK to 5.
Public school
Teacher - student ratio: 1:16
Students enrolled: 610
843-310-1888
150 Hurricane Vly, Hardeeville, SC, 29927
Hardeeville-ridgeland Middle School
Elementary school. Grades PK to 5.
Public school
Teacher - student ratio: 1:13
Students enrolled: 534
843-310-1888
150 Hurricane Vly, Hardeeville, SC, 29927
Ridgeland-hardeeville High School
Elementary school. Grades PK to 5.
Public school
Teacher - student ratio: 1:13
Students enrolled: 639
843-489-8845
250 Jaguar Trl Unit 103, Ridgeland, SC, 29936
GreatSchools ratings are provided by GreatSchools.org and are for reference only. Ratings may not be available for all schools. Please verify school assignments and details with the local school district.
Amenities
Home details
Ready to build
Build the home of your dreams with the Hayden plan by selecting your favorite options. For the best selection, pick your lot in The Retreat at East Argent today!
Community & neighborhood
Neighborhood amenities
Publix
3.77 miles away
112 Nickle Plate Rd
Food Lion
4.17 miles away
210 Okatie Village Dr
Lowcountry Fresh Market & Cafe
5.59 miles away
303 Bleecker St S
Kroger
5.81 miles away
27 Discovery Dr
Publix
6.07 miles away
101 Buckwalter Place Blvd
Hilton Head Cookie Co
2.62 miles away
498 Browns Cove Rd
Frankie Cakes
6.72 miles away
124 Pickett Creek Ln
Kroger Bakery
7.74 miles away
125 Towne Dr
Pan Fresco Ole
7.95 miles away
4492 Bluffton Park Cres
Delectable Desserts By Russ
7.98 miles away
4376 Bluffton Pkwy
Hunt Brothers Pizza
1.22 miles away
2935 N Okatie Hwy
La Parrilla Mexican Grill
1.22 miles away
2961 N Okatie Hwy
Cherry Point Chicken & BBQ
1.25 miles away
2915 N Okatie Hwy
China Express
1.46 miles away
2641 N Okatie Hwy
Sunset Pizzeria
1.53 miles away
2625 N Okatie Hwy
Lighthouse Coffee Co
1.01 miles away
305 Lowcountry Dr
Dunkin'
3.74 miles away
6 Palmer Grace Dr E
Tropical Smoothie Cafe
3.75 miles away
468 D Mark Cummings Rd
Starbucks
3.93 miles away
143 Okatie Center Blvd N
Starbucks
5.81 miles away
27 Discovery Dr
Sexy For Life
2.46 miles away
51 Riverwalk Blvd
Sports Addiction
4.15 miles away
200 Okatie Village Dr
Spartina 449
6.68 miles away
10 Buck Island Rd
Low Country Bride & Gown LLC
7.90 miles away
59 Sheridan Park Cir
Blush Bridal & Formal Wear
8.17 miles away
70 Pennington Dr
Sports Baba Bar & Restaurant
2.46 miles away
51 Riverwalk Blvd
Tailgeters Bar & Grill
3.18 miles away
1108 Argent Blvd
Okatie Ale House
4.07 miles away
25 William Pope Dr
Argent Lakes Pub & Pizzeria
5.06 miles away
1291 Sergeant William Jasper B
Outback Steakhouse
5.26 miles away
100 Buckwalter Pkwy
Please note this information may vary. If you come across anything inaccurate, please contact us.
In 1978, D.R. Horton broke ground on our first home in Fort Worth, Texas. Since that day, the company has defined its success not by bricks and mortar, but by the satisfaction of the families that make our houses their homes. Our foundation is a single, guiding principle: a value-first dedication to the individual needs of each and every one of our nation’s homebuyers.
From first-time homebuyers to empty nesters, our family of brands provides a home for every stage in life. Our highly-trained, market experts are where you want to live, from New Jersey to Hawaii, providing unique, personalized services tailored to your individual needs. But the real value comes from the quality construction we put into every home, and the peace of mind that comes with a premium-backed warranty from America’s Number One Homebuilder.
We’ve come a long way, and while more people choose our family of brands over any other builder in the country, we never forget the most important thing of all – the families that choose us for their place to call home.
So continue to live out those dreams, America, and know we’ll be here for you every step of the way.
Take the next steps toward your new home
Hayden Plan by D.R. Horton
saved to favorites!
To see all the homes you’ve saved, visit the My Favorites section of your account.
Discover More Great Communities
Select additional listings for more information
We're preparing your brochure
You're now connected with D.R. Horton. We'll send you more info soon.
The brochure will download automatically when ready.
Brochure downloaded successfully
Your brochure has been saved. You're now connected with D.R. Horton, and we've emailed you a copy for your convenience.
The brochure will download automatically when ready.
Way to Go!
You’re connected with D.R. Horton.
The best way to find out more is to visit the community yourself!