Henley Plan
Ready to build
5872 Agogo Way, Greenwood IN 46143
Home by D.R. Horton

Last updated 19 hours ago
The Price Range displayed reflects the base price of the homes built in this community.
You get to select from the many different types of homes built by this Builder and personalize your New Home with options and upgrades.
5 BR
3 BA
2 GR
2,600 SQ FT

Elevation 0 1/27
Special offers
Explore the latest promotions at Meadows at Belleview. Contact D.R. Horton to learn more!
Special Interest Rate
Overview
2 Car Garage
2 Stories
2600 Sq Ft
3 Bathrooms
5 Bedrooms
Single Family
Henley Plan Info
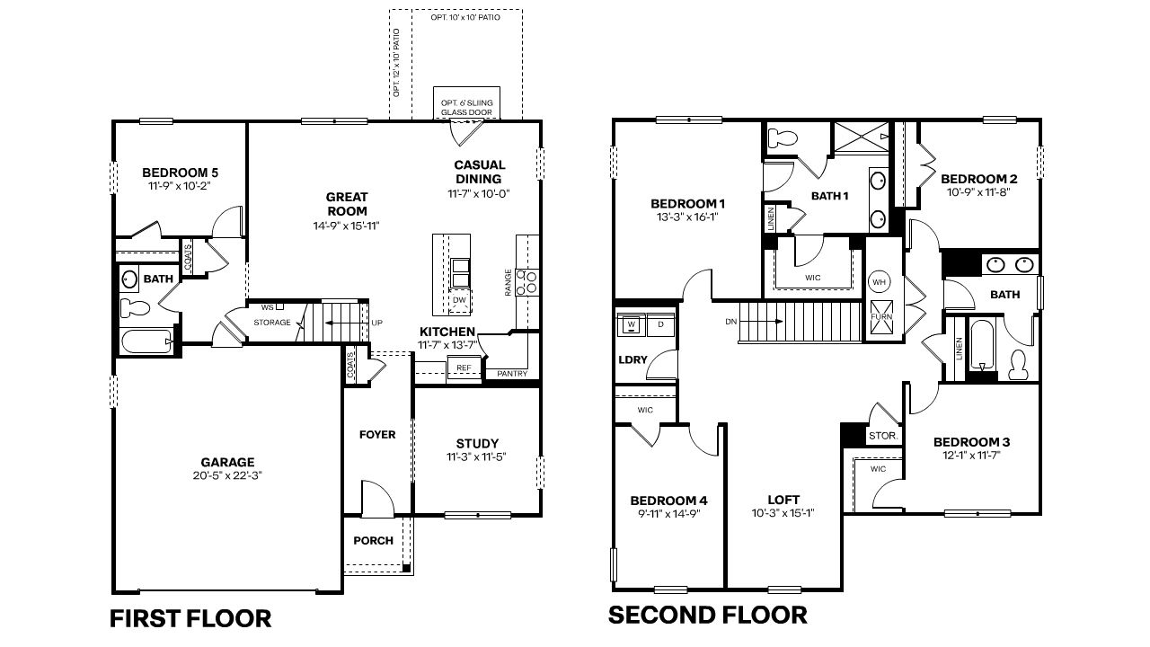
D.R. Horton, America's Builder, presents the Henley. This two-story home provides 5 large bedrooms and 3 full baths featuring one bedroom and full bath on the first floor, which is ideal for guests or multi-generational living. The staircase enters from the family room for convenience and privacy. The kitchen offers beautiful cabinetry, a large pantry and a built-in island with ample seating space. Also on the main level, you'll find a spacious study, perfect for a home office. Upstairs, you'll find 4 additional bedrooms, including one that features a walk-in closet, as well as a 2nd living area that can be used as a great entertainment space. The home includes America's Smart Home® Technology featuring a smart video doorbell, smart Honeywell thermostat, smart door lock, Deako light package and more. Photos are representative of plan and may vary as built.
Floor plan center
View floor plan details for this property.
- Floor Plans
- Exterior Images
- Interior Images
- Other Media
Neighborhood
Community location & sales center
5872 Agogo Way
Greenwood, IN 46143
5872 Agogo Way
Greenwood, IN 46143
888-930-8793
From I-465, take Exit 5 to travel south on I-69. Continue south on I-69 to exit 156 for Smith Valley Road. At the traffic circle, take the third exit onto CR 900/Smith Valley Road. At the next traffic circle, take the first exit onto CR 600/Mullinix Road. Travel south on Mullinix to CR 800/Olive Branch Road. Turn left onto Olive Branch, then turn left into community.
Nearby schools
Center Grove Community School Corporation
Elementary school. Grades PK to 5.
- Public school
- Teacher - student ratio: 1:19
- Students enrolled: 729
5199 W Fairview Rd, Greenwood, IN, 46142
317-887-8525
Middle school. Grades 6 to 8.
- Public school
- Teacher - student ratio: 1:16
- Students enrolled: 1025
202 N Morgantown Rd, Greenwood, IN, 46142
317-885-8800
High school. Grades 9 to 12.
- Public school
- Teacher - student ratio: 1:21
- Students enrolled: 2851
2717 S Morgantown Rd, Greenwood, IN, 46143
317-881-0581
Actual schools may vary. We recommend verifying with the local school district, the school assignment and enrollment process.
Amenities
Home details
Ready to build
Build the home of your dreams with the Henley plan by selecting your favorite options. For the best selection, pick your lot in Meadows at Belleview today!
Community & neighborhood
Community services & perks
- HOA fees: Unknown, please contact the builder
Neighborhood amenities
Walmart Supercenter
2.82 miles away
882 S State Road 135
Meijer
3.08 miles away
150 Marlin Dr
ALDI
3.13 miles away
300 S State Road 135
Kroger
3.32 miles away
3100 Meridian Parke Dr
Kroger
3.80 miles away
5961 N State Road 135
Walmart Bakery
2.82 miles away
882 S State Road 135
Country Nutrition Of Indiana
2.86 miles away
1480 Olive Branch Parke Ln
Nothing Bundt Cakes
2.92 miles away
3113 W Smith Valley Rd
Meijer Bakery
3.08 miles away
150 Marlin Dr
Whisk Bakery & Cake Studio LLC
3.15 miles away
399 S State Road 135
PMR Treats & Apple Bar
0.24 mile away
1307 Peregrine Ln
Dan R Fruits
0.91 mile away
457 Knight Dr
Domino's
1.16 miles away
4979 W Smith Valley Rd
Bamboo
1.35 miles away
4800 W Smith Valley Rd
Don Cuervo Restaurant
1.35 miles away
4800 W Smith Valley Rd
Starbucks
3.11 miles away
895 S State Road 135
Starbucks
3.20 miles away
311 S State Road 135
BIGGBY Coffee
3.21 miles away
156 Marlin Dr
Starbucks
3.32 miles away
3100 Meridian Parke Dr
Starbucks
3.80 miles away
5961 N State Road 135
J & J Petite Boutique LLC
1.70 miles away
3050 Aldwych Ct
Walmart Supercenter
2.82 miles away
882 S State Road 135
Target
3.11 miles away
895 S State Road 135
Simply Chic
3.17 miles away
1675 W Smith Valley Rd
Shoe Closets Inc
3.31 miles away
530 Elbow Bend Blvd
Outer Edge Axe Lounge
1.62 miles away
378 Western Blvd
Applebee's Grill + Bar
2.97 miles away
874 S State Road 135
Noble Pub
3.23 miles away
2826 S State Road 135
Peppers
3.23 miles away
299 S State Road 135
Bonefish Grill
3.83 miles away
1001 N State Road 135
Please note this information may vary. If you come across anything inaccurate, please contact us.
In 1978, D.R. Horton broke ground on our first home in Fort Worth, Texas. Since that day, the company has defined its success not by bricks and mortar, but by the satisfaction of the families that make our houses their homes. Our foundation is a single, guiding principle: a value-first dedication to the individual needs of each and every one of our nation’s homebuyers.
From first-time homebuyers to empty nesters, our family of brands provides a home for every stage in life. Our highly-trained, market experts are where you want to live, from New Jersey to Hawaii, providing unique, personalized services tailored to your individual needs. But the real value comes from the quality construction we put into every home, and the peace of mind that comes with a premium-backed warranty from America’s Number One Homebuilder.
We’ve come a long way, and while more people choose our family of brands over any other builder in the country, we never forget the most important thing of all – the families that choose us for their place to call home.
So continue to live out those dreams, America, and know we’ll be here for you every step of the way.
Take the next steps toward your new home
Henley Plan by D.R. Horton
saved to favorites!
To see all the homes you’ve saved, visit the My Favorites section of your account.
Discover More Great Communities
Select additional listings for more information
We're preparing your brochure
You're now connected with D.R. Horton. We'll send you more info soon.
The brochure will download automatically when ready.
Brochure downloaded successfully
Your brochure has been saved. You're now connected with D.R. Horton, and we've emailed you a copy for your convenience.
The brochure will download automatically when ready.
Way to Go!
You’re connected with D.R. Horton.
The best way to find out more is to visit the community yourself!