Hudson Plan
Ready to build
11287 Kinney Way, Huntley IL 60142
Home by M/I Homes
at Fieldstone

Last updated 20 hours ago
The Price Range displayed reflects the base price of the homes built in this community.
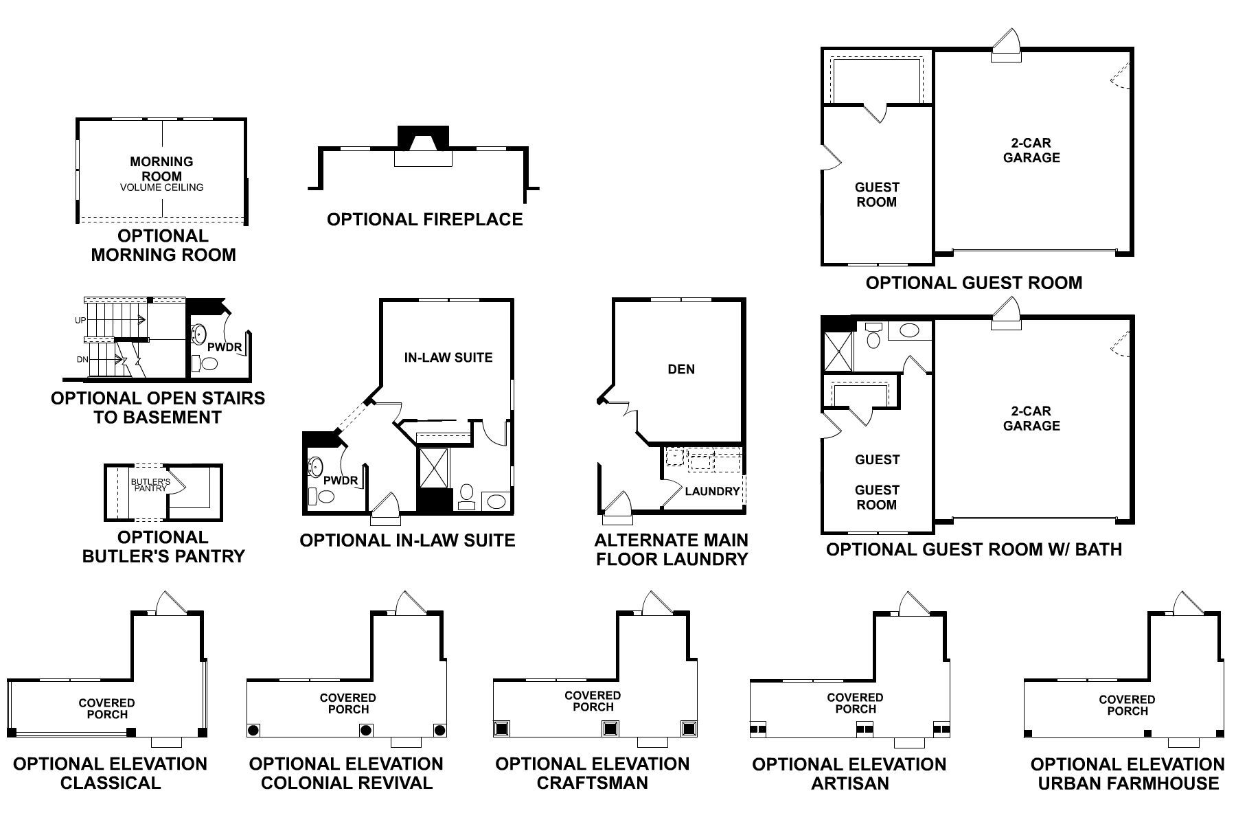
You get to select from the many different types of homes built by this Builder and personalize your New Home with options and upgrades.
4 BR
2.5 BA
3 GR
3,145 SQ FT

Hudson Elevation Artisan 1/22
Special offers
Explore the latest promotions at Fieldstone. Contact M/I Homes to learn more!
Take Advantage of Our Exclusive Home-to-Sell Program
New Rate: Lower Payments With 2/1 Buydown
Cyber Week Exclusive: Unlock Your Special Savings
Overview
1 Half Bathroom
2 Bathrooms
2 Stories
3 Car Garage
3145 Sq Ft
4 Bedrooms
Basement
Primary Bed Upstairs
Single Family
Hudson Plan Info
If you're searching for a home with plenty of space and beautiful design touches, the Hudson plan available in our Fieldstone community may be the perfect fit! This home offers 5 bedrooms, 4.5 bathrooms, a 3-car garage, and 3,414–3,414 square feet.
Floor plan center
View floor plan details for this property.
- Floor Plans
- Exterior Images
- Interior Images
- Other Media
Explore custom options for this floor plan.
- Choose Option
- Include Features
Neighborhood
Community location & sales center
11287 Kinney Way
Huntley, IL 60142
11287 Kinney Way
Huntley, IL 60142
630-243-5119
From I-90 W: Take exit 47 to merge onto IL-47 N toward Huntley / Woodstock. Continue on IL-47 N to Main St, then turn right. Take E Main St to Huntley Rd, then turn right. Continue on Huntley Rd to Kinney Way—turn left into the community. From Dundee-Huntley Rd: Head northwest on Dundee-Huntley Rd toward Haligus Rd. Turn right onto Haligus Rd. Turn left onto Main St. Turn left onto L.J. Marak Dr. Turn left onto Saxony St. Turn right onto Kinney Way; Fieldstone will be on your right. If using Google Maps, please type in M/I Homes Fieldstone.
Nearby schools
Huntley Community School District 158
Elementary school. Grades KG to 2.
- Public school
- Teacher - student ratio: 1:13
- Students enrolled: 544
800 Academic Dr, Algonquin, IL, 60102
847-659-3400
Elementary school. Grades 3 to 5.
- Public school
- Teacher - student ratio: 1:12
- Students enrolled: 547
750 Academic Dr, Algonquin, IL, 60102
847-659-3700
Middle school. Grades 6 to 8.
- Public school
- Teacher - student ratio: 1:13
- Students enrolled: 751
725 Academic Dr, Algonquin, IL, 60102
847-659-4300
High school. Grades 9 to 12.
- Public school
- Teacher - student ratio: 1:16
- Students enrolled: 2926
13719 Harmony Rd, Huntley, IL, 60142
847-659-6600
Actual schools may vary. We recommend verifying with the local school district, the school assignment and enrollment process.
Amenities
Home details
Ready to build
Build the home of your dreams with the Hudson plan by selecting your favorite options. For the best selection, pick your lot in Fieldstone today!
Community & neighborhood
Local points of interest
- Pinecrest Golf Club
- Randall Oaks Zoo
- Pub 47 - Huntley
- Deicke Park
- Tom's Farm
- Stingray Bay at Deicke Park
- Downtown Huntley
- Huntley Park District
- Illinois Railway Museum
- Goebbert's Pumpkin Patch and Apple Orchard
Health and fitness
- Trails
Community services & perks
- HOA fees: Unknown, please contact the builder
Neighborhood amenities
Walmart Supercenter
1.41 miles away
12300 S IL Route 47
Jewel-Osco
1.47 miles away
10090 N IL Route 47
ALDI
1.66 miles away
12300 Princeton Dr
Jewel-Osco
2.23 miles away
13200 Village Green Dr
Wholesome Tummies
3.02 miles away
9471 Ackman Rd
Desserts By Corinna
0.73 mile away
10850 Timer Dr W
Kapil Donut Inc
1.08 miles away
10986 N IL Route 47
Walmart Bakery
1.41 miles away
12300 S IL Route 47
Konrad's Bakery
3.03 miles away
9531 Ackman Rd
Tipsy's Bar & Pizza
0.24 mile away
10753 Dundee Rd
Pinecrest Restaurant
0.95 mile away
11220 Algonquin Rd
BBQ King Smokehouse Huntley
0.96 mile away
11706 W Coral St
Huntley's Tacos Locos
0.96 mile away
12132 N IL Route 47
Tropical Smoothie Cafe
1.48 miles away
12162 S IL Route 47
Starbucks
1.53 miles away
9900 N IL Route 47
Dunkin'
1.56 miles away
12090 Princeton Dr
Starbucks
1.62 miles away
12210 Princeton Dr
Dunkin'
1.64 miles away
9800 N IL Route 47
Card Clothing & Services Midwest Inc
0.74 mile away
11421 Kiley Dr
Walmart Supercenter
1.41 miles away
12300 S IL Route 47
Tanaaya
3.50 miles away
2713 W Algonquin Rd
Kohl's
3.51 miles away
734 S Randall Rd
JCPenney
3.51 miles away
800 S Randall Rd
Offies Tap
0.96 mile away
11669 Main St
Parkside Pub
0.96 mile away
11721 Main St
Zee's Sports Bar & Grill
0.96 mile away
10520-2 N Route 47
Sams Bar & Grill
1.07 miles away
11012 N IL Route 47
Papa G's Restaurant
1.29 miles away
10502 N IL Route 47
Please note this information may vary. If you come across anything inaccurate, please contact us.
M/I Homes has been building new homes of outstanding quality and superior design for more than 40 years. Founded in 1976 by Irving and Melvin Schottenstein, and guided by Irving’s drive to always “treat the customer right,” we’ve fulfilled the dreams of more than 150,000 homeowners, and grown to become one of the nation’s leading homebuilders.
Take the next steps toward your new home
Hudson Plan by M/I Homes
saved to favorites!
To see all the homes you’ve saved, visit the My Favorites section of your account.
Discover More Great Communities
Select additional listings for more information
We're preparing your brochure
You're now connected with M/I Homes. We'll send you more info soon.
The brochure will download automatically when ready.
Brochure downloaded successfully
Your brochure has been saved. You're now connected with M/I Homes, and we've emailed you a copy for your convenience.
The brochure will download automatically when ready.
Way to Go!
You’re connected with M/I Homes.
The best way to find out more is to visit the community yourself!