Kai Plan
Ready to build
9626 W Oaklawn Rd, Biloxi MS 39532
Home by Meritage Homes
at River Oaks
Last updated 2 days ago
The Price Range displayed reflects the base price of the homes built in this community.
You get to select from the many different types of homes built by this Builder and personalize your New Home with options and upgrades.
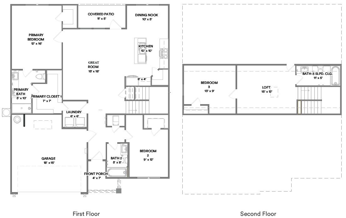
3 BR
3 BA
2 GR
1,893 SQ FT

Plan Diagram 1/1
Overview
2 Stories
Green Construction
Single Family
Kai Plan Info
Gather in the open-concept great room or the covered rear patio. The main-floor primary suite features an ensuite bath and walk-in closet with laundry access. Upstairs, the spacious bedroom and loft provide a private retreat and flexible living space.
Floor plan center
View floor plan details for this property.
- Floor Plans
- Exterior Images
- Interior Images
- Other Media
Neighborhood
Community location & sales center
9626 W Oaklawn Rd
Biloxi, MS 39532
9626 W Oaklawn Rd
Biloxi, MS 39532
888-899-5131
Nearby schools
Harrison County School District
Elementary-Middle school. Grades KG to 6.
- Public school
- Teacher - student ratio: 1:16
- Students enrolled: 495
12513 John Lee Rd, Biloxi, MS, 39532
228-392-5640
Actual schools may vary. We recommend verifying with the local school district, the school assignment and enrollment process.
Amenities
Home details
Green program
Setting the standard for Energy Efficiency
Ready to build
Build the home of your dreams with the Kai plan by selecting your favorite options. For the best selection, pick your lot in River Oaks today!
Community & neighborhood
Local points of interest
- Flatheads and Bottom Feeders
- Coastal Mississippi Mardi Gras Museum
- Taranto's Seafood
- Academy Sports
- The Promenade
- Edgewater Mall
- Target
- Walmart Supercenter
- Sunkist Country Club
- The Grand 18 - D'Iberville
Community services & perks
- HOA fees: Unknown, please contact the builder
Neighborhood amenities
Woolmarket Grocery
1.60 miles away
12874 Lorraine Rd
Walmart Neighborhood Market
2.33 miles away
1820A Popps Ferry Rd
Tienda Santa Fe
3.40 miles away
288 Eisenhower Dr
Walmart Neighborhood Market
3.55 miles away
1733 E Pass Rd
Rouses Market
3.61 miles away
1444 E Pass Rd
Sip Beverages Biloxi
3.38 miles away
2572 Pass Rd
Walmart Bakery
3.41 miles away
1820A Popps Ferry Rd
Panaderia Bakery Latino LLC
3.44 miles away
1909 E Pass Rd
Cheeky Monkey Cake Co
3.46 miles away
266 Debuys Rd
Walmart Bakery
3.55 miles away
1733 E Pass Rd
Orangutang's Daiquiris & Bar
0.77 mile away
12097 Sandbar Ln
SONIC Drive-in
1.74 miles away
11150 Lorraine Rd
Subway
1.75 miles away
11192 Lorraine Rd
Domino's
1.76 miles away
11236 Lorraine Rd
McDonald's
1.85 miles away
11167 Lorraine Rd
Shipley Do-nuts
2.82 miles away
896 Vee St
Starbucks
3.51 miles away
2404 Pass Rd
Dunkin'
3.62 miles away
1512 E Pass Rd
Dunkin'
4.00 miles away
919 Cedar Lake Rd
The Grind Coffee & Nosh
4.03 miles away
934 Cedar Lake Rd
Family Dollar
1.74 miles away
13000 Lorraine Rd
Foundations Professional Bra
2.91 miles away
9138 Carl Legett Rd
Family Dollar
2.98 miles away
1961 Popps Ferry Rd
Boutique Bella Rose
3.02 miles away
8930 Lorraine Rd
Willow Clothing
3.02 miles away
8930 Lorraine Rd
Orangutang's Daiquiris & Bar
0.77 mile away
12097 Sandbar Ln
Woodys Roadside
3.55 miles away
1121A Cowan Rd
Mile High Daiquiris
3.59 miles away
1107 Cowan Rd
Tailgaters Tailgaters
3.66 miles away
1777 Popps Ferry Rd
Mississippi Brewing Co
3.83 miles away
13247 Seaway Rd
Please note this information may vary. If you come across anything inaccurate, please contact us.
Open the door to Life. Built. Better.® with an experienced homebuilder known for quality construction, designer-curated interiors, award-winning energy efficiency and a simplified buying process. Since 1985, Meritage Homes® has delivered more than 180,000 homes across Arizona, California, Colorado, Utah, Texas, Florida, Georgia, North Carolina, South Carolina and Tennessee. Take the next step toward your dream home and discover the Meritage difference.
Take the next steps toward your new home
Kai Plan by Meritage Homes
saved to favorites!
To see all the homes you’ve saved, visit the My Favorites section of your account.
Discover More Great Communities
Select additional listings for more information
We're preparing your brochure
You're now connected with Meritage Homes. We'll send you more info soon.
The brochure will download automatically when ready.
Brochure downloaded successfully
Your brochure has been saved. You're now connected with Meritage Homes, and we've emailed you a copy for your convenience.
The brochure will download automatically when ready.
Way to Go!
You’re connected with Meritage Homes.
The best way to find out more is to visit the community yourself!