Lafayette 4 Plan
Ready to build
Parade Street, Erie CO 80516
Home by DRB Homes

Last updated 1 day ago
The Price Range displayed reflects the base price of the homes built in this community.
You get to select from the many different types of homes built by this Builder and personalize your New Home with options and upgrades.
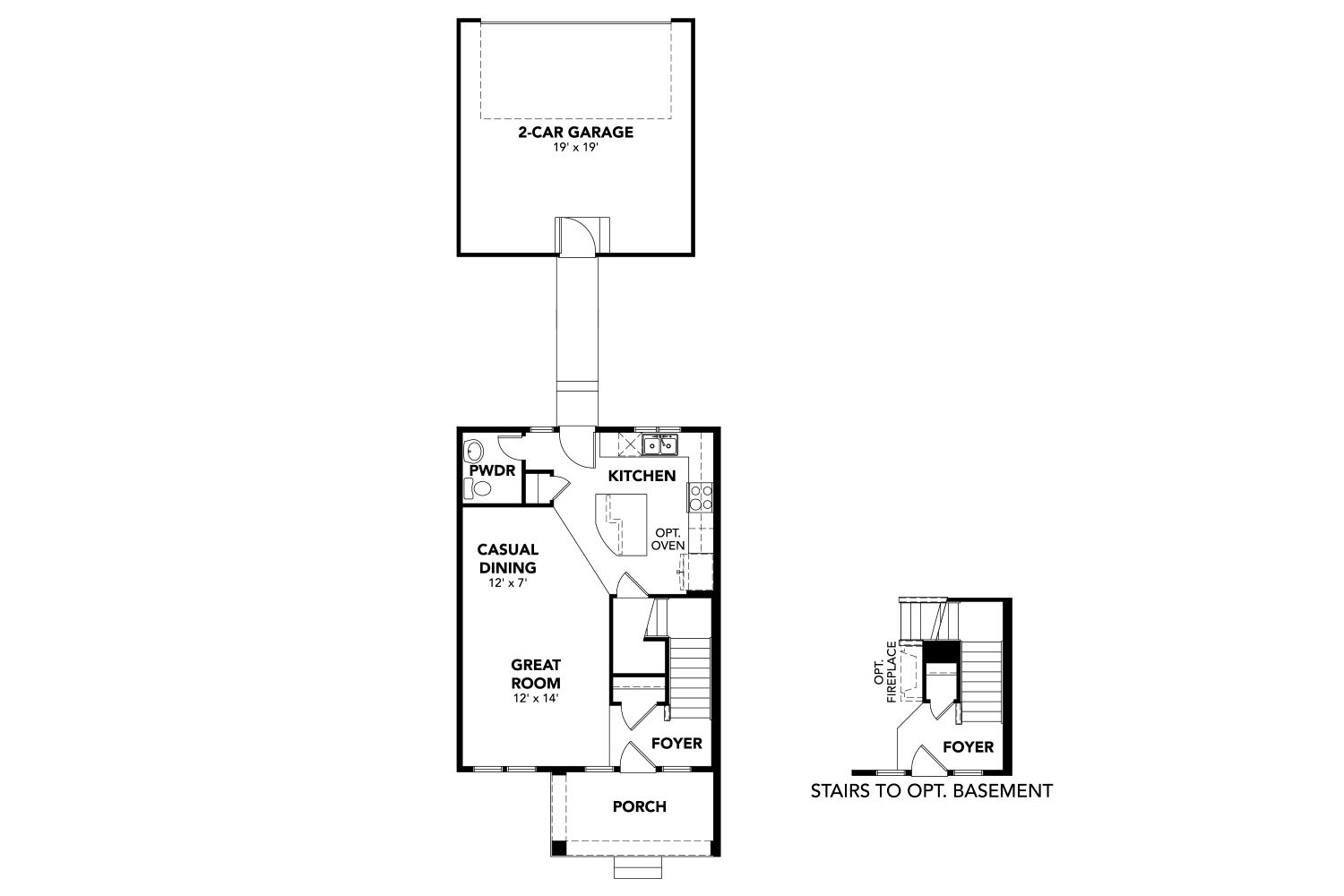
3 BR
2.5 BA
2 GR
1,458 SQ FT

Lafayette - 4 Home Building - Colonial Elevation 1/6
Overview
1 Half Bathroom
1458 Sq Ft
2 Bathrooms
2 Car Garage
2 Stories
3 Bedrooms
Basement
Primary Bed Upstairs
Single Family
Lafayette 4 Plan Info
The Lafayette floorplan offers the perfect blend of space, style, and flexibility—designed with room to grow and enjoy outdoor living. Upstairs, you’ll find three comfortable bedrooms, including a private primary suite, ideal for creating your own retreat. The detached 3-car garage not only provides ample parking and storage but also allows for a private yard space—perfect for entertaining, gardening, or relaxing outdoors. Want even more room? Add the optional basement, with the opportunity to finish an additional bedroom and expand your living space to fit your needs.
Floor plan center
View floor plan details for this property.
- Floor Plans
- Exterior Images
- Interior Images
- Other Media
Neighborhood
Community location & sales center
Parade Street
Erie, CO 80516
Parade Street
Erie, CO 80516
888-556-7180
Selling from Our Westerly Single-Family Model.While our model home is under construction, our sales office is located at 1739 Peach Avenue, Erie, CO 80516.To Westerly - Townhomes: Take I-25 to Erie Parkway (Erie/Dacono Exit 232) and head West on Erie Pkwy. In approximately 2 miles turn left on Westerly Blvd and head South through the entrance of the community. Follow the fork and take a left on Peach Avenue and head East. Drive approximately .25 miles and look for signs and the Brightland Homes/American Flag on your left. The model home sales office and the parking lot are located at the Northeast corner of Sassafras St. and Peach Ave. Model homes coming soon, please visit Westerly single-family homes office.
Schools near Westerly - Townhomes
- Boulder Valley School District No. Re2
- St. Vrain Valley School District No. Re1j
Actual schools may vary. Contact the builder for more information.
Amenities
Home details
Ready to build
Build the home of your dreams with the Lafayette 4 plan by selecting your favorite options today!
Community & neighborhood
Local points of interest
- Greenbelt
Social activities
- Club House
Health and fitness
- Pool
Community services & perks
- HOA fees: Unknown, please contact the builder
- Playground
- Park
Let DRB Homes put decades of industry experience to work for you. We understand that building a new home is not a one-size-fits-all process or journey; get ready to personalize your home to meet your unique needs. You can start by exploring the full portfolio of our most popular floor plans, all available in our new home communities across the region.
Our award-winning team is backed by the DRB Group, a growing, dynamic organization that includes two residential builder brands, a title company, and a residential development services branch providing entitlement, development and construction services. DRB Group's complete spectrum of services operates in 14 states and 35 markets -East Coast to Arizona, Colorado, Texas, and beyond.
Our DRB team will work with you every step of the way. From the on-site salespeople you meet with to the construction crew laying the foundation for your home — we're all working toward the same goal. The same is true for the members of our leadership team, who oversee the entire operation and ensure a seamless process.
TrustBuilder reviews
Take the next steps toward your new home
Lafayette 4 Plan by DRB Homes
saved to favorites!
To see all the homes you’ve saved, visit the My Favorites section of your account.
Discover More Great Communities
Select additional listings for more information
We're preparing your brochure
You're now connected with DRB Homes. We'll send you more info soon.
The brochure will download automatically when ready.
Brochure downloaded successfully
Your brochure has been saved. You're now connected with DRB Homes, and we've emailed you a copy for your convenience.
The brochure will download automatically when ready.
Way to Go!
You’re connected with DRB Homes.
The best way to find out more is to visit the community yourself!