Larch Plan
Ready to build
1101 Owl Ave, Woodburn OR 97071
Home by LGI Homes
at Dove Landing
The Price Range displayed reflects the base price of the homes built in this community.
You get to select from the many different types of homes built by this Builder and personalize your New Home with options and upgrades.
5 BR
2.5 BA
2 GR
2,175 SQ FT

The Larch by LGI Homes 1/10
Special offers
Explore the latest promotions at Dove Landing. Contact LGI Homes to learn more!
Builder Paid Closing Costs!
Save Up to $50,000 on Select Homes Now!
Overview
1 Half Bathroom
2 Bathrooms
2 Car Garage
2 Stories
2175 Sq Ft
5 Bedrooms
Breakfast Area
Dining Room
Family Room
Green Construction
Primary Bed Upstairs
Single Family
Walk-In Closets
Larch Plan Info
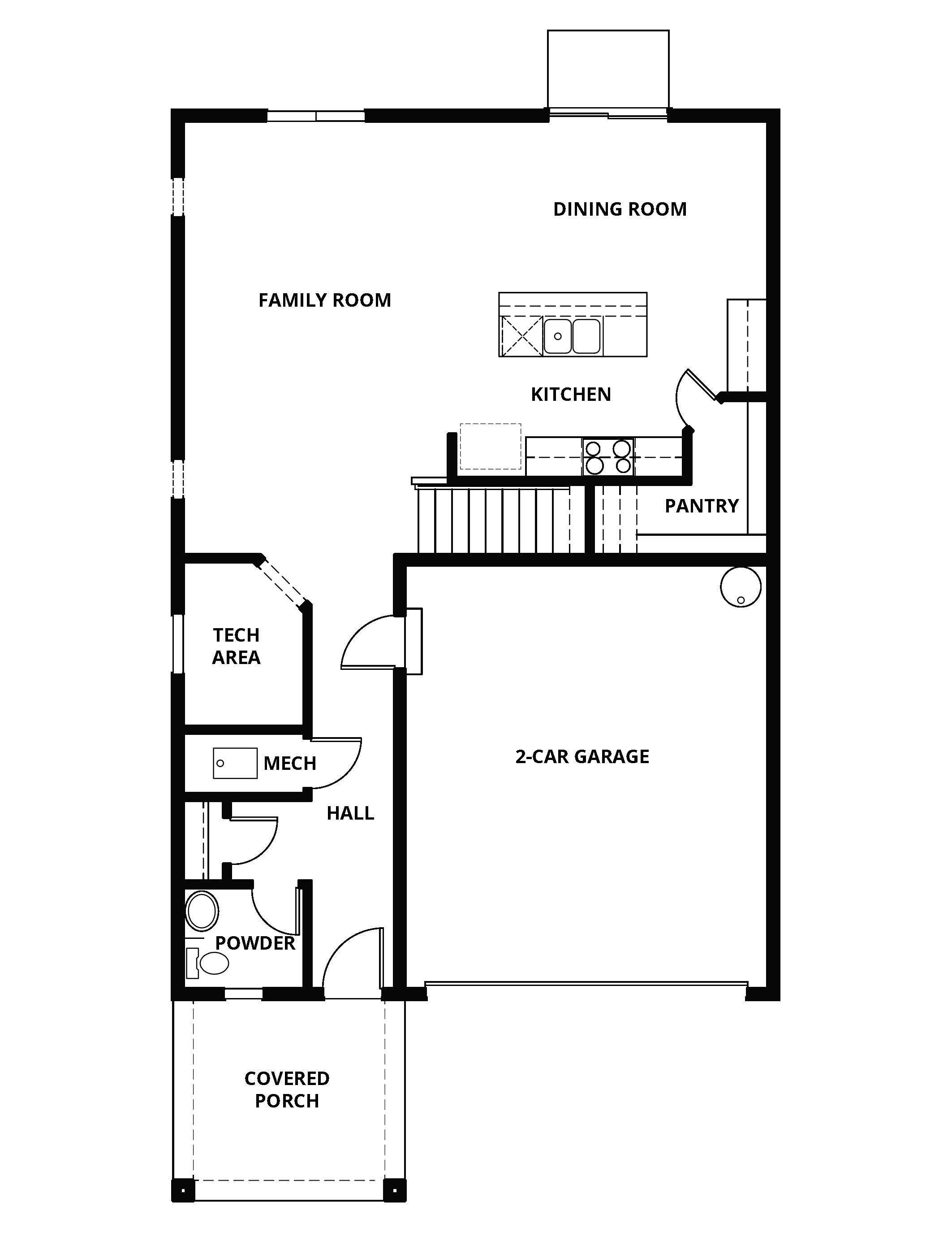
Find abundant space at an exceptional value in this gorgeous home! The chef-ready kitchen includes a full suite of stainless-steel appliances, granite countertops, modern wood cabinetry & a huge walk-in pantry. A tech area and powder bath are also found on the first floor, allowing for versatile use of the space. Upstairs, the owner’s retreat includes a luxurious bathroom showcasing a double-sink vanity, step-in shower, soaking tub & a large walk-in closet. Additional features include an upstairs laundry room and spacious upstairs bathroom with a dual sink vanity.
Floor plan center
View floor plan details for this property.
- Floor Plans
- Exterior Images
- Interior Images
- Other Media
Neighborhood
Community location & sales center
1101 Owl Ave
Woodburn, OR 97071
1101 Owl Ave
Woodburn, OR 97071
888-817-2251
Nearby schools
Woodburn Sd 103
Elementary school. Grades KG to 5.
- Public school
- Teacher - student ratio: 1:18
- Students enrolled: 574
1041 N Boones Ferry Rd, Woodburn, OR, 97071
503-981-2825
Middle school. Grades 6 to 8.
- Public school
- Teacher - student ratio: 1:19
- Students enrolled: 587
1025 N Boones Ferry Rd, Woodburn, OR, 97071
971-983-3550
Actual schools may vary. We recommend verifying with the local school district, the school assignment and enrollment process.
Amenities
Home details
Ready to build
Build the home of your dreams with the Larch plan by selecting your favorite options. For the best selection, pick your lot in Dove Landing today!
Community & neighborhood
Local points of interest
- Settlemier Park
- Legion Park
- Woodburn Lanes
- Centennial Park
- Saint Louis Fish Ponds County Park
- Riverfront City Park
- Views
- Pond
Social activities
- Woodburn Aquatic Center
- Bauman's Farm and Garden
- Oregon State Fair & Exposition Center
- Gilbert House Children's Museum
Health and fitness
- OGA Golf Course
- Tennis
- Trails
- Basketball
- Soccer
- Baseball
Community services & perks
- HOA fees: Unknown, please contact the builder
- Playground
- Park
Neighborhood amenities
Mega Food-Woodburn
1.07 miles away
2216 National Way
A & J Markets
1.23 miles away
134 Harrison St
Mega Foods Woodburn
1.29 miles away
1542 Mount Hood Ave
Del Sol Market
1.34 miles away
397 N Front St
Espandienda Luceros
1.37 miles away
297 N Front St
White Rabbit Bakery
1.07 miles away
21368 Pacific Hwy
Don Pan Bakery
1.29 miles away
1537 Mount Hood Ave
Manuel's Bakery
1.32 miles away
307 N 1st St
Oaxaca Bakery 2 LLC
1.38 miles away
1709 Mount Hood Ave
Walmart Bakery
1.49 miles away
3002 Stacy Allison Way
Bazils Bagels
0.56 mile away
2325 N Boones Ferry Rd
Country Cottage
0.97 mile away
1776 Country Club Rd
Domino's
1.07 miles away
383 N 99 E
McDonald's
1.07 miles away
1540 Mount Hood Ave
Starbucks
1.07 miles away
1560 N Pacific Hwy
Jamba
1.15 miles away
1001 N Arney Rd
Starbucks
1.15 miles away
1001 N Arney Rd
Dutch Bros Coffee
1.19 miles away
2720 Newberg Hwy
Dutch Bros Coffee
1.45 miles away
1775 Mount Hood Ave
Clarks
1.07 miles away
1001 Arney Road Suiet 217
Express Factory Outlet
1.07 miles away
1001 N Amey Rd
Puma Outlet
1.07 miles away
Woodburn Outlets 1001 N Arney Rd
adidas Outlet Store
1.15 miles away
1001 N Arney Rd
Aerie Outlet
1.15 miles away
1001 N Arney Rd
Bar 347
1.35 miles away
347 N Front St
Tito's Bar LLC
1.35 miles away
347 N Front St
7 Mares Restaurant
1.67 miles away
561 N Pacific Hwy
Rumor's Bar & Grill
1.78 miles away
327 N Pacific Hwy
The Raven Inn
1.88 miles away
262 N Pacific Hwy
Please note this information may vary. If you come across anything inaccurate, please contact us.
Here at LGI Homes, we know that we're a new home builder that is different. Building homes with great value and great prices in excellent locations, such as Dallas-Fort Worth, Houston, San Antonio, Austin, Phoenix, Tucson, Albuquerque, Tampa, Orlando, Charlotte, Denver and Atlanta. In every one of our new home communities, we have assembled a team of dedicated home buying professionals who are ready and able to walk you through the home buying process, and help you find the perfect new home. Contact us now, and let us start you on your journey toward homeownership. You’ll be glad you did!
TrustBuilder reviews
Take the next steps toward your new home
Larch Plan by LGI Homes
saved to favorites!
To see all the homes you’ve saved, visit the My Favorites section of your account.
Discover More Great Communities
Select additional listings for more information
We're preparing your brochure
You're now connected with LGI Homes. We'll send you more info soon.
The brochure will download automatically when ready.
Brochure downloaded successfully
Your brochure has been saved. You're now connected with LGI Homes, and we've emailed you a copy for your convenience.
The brochure will download automatically when ready.
Way to Go!
You’re connected with LGI Homes.
The best way to find out more is to visit the community yourself!