Latitude Plan
Ready to build
12779 Dina Springs Lane, Magnolia TX 77354
Home by DRB Homes

Last updated 24 hours ago
The Price Range displayed reflects the base price of the homes built in this community.
You get to select from the many different types of homes built by this Builder and personalize your New Home with options and upgrades.
3 BR
2.5 BA
2 GR
1,750 SQ FT

Residential Single-Family Home Design and Architecture Render 1/8
Overview
1 Half Bathroom
2 Stories
Family Room
Primary Bed Downstairs
Single Family
Latitude Plan Info
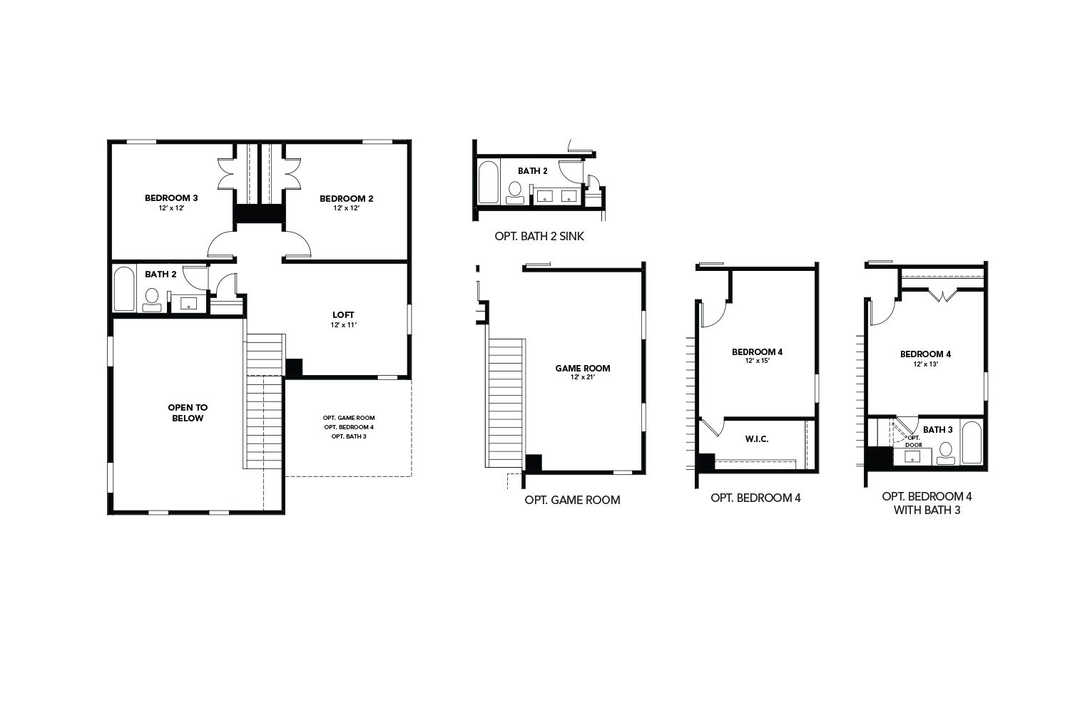
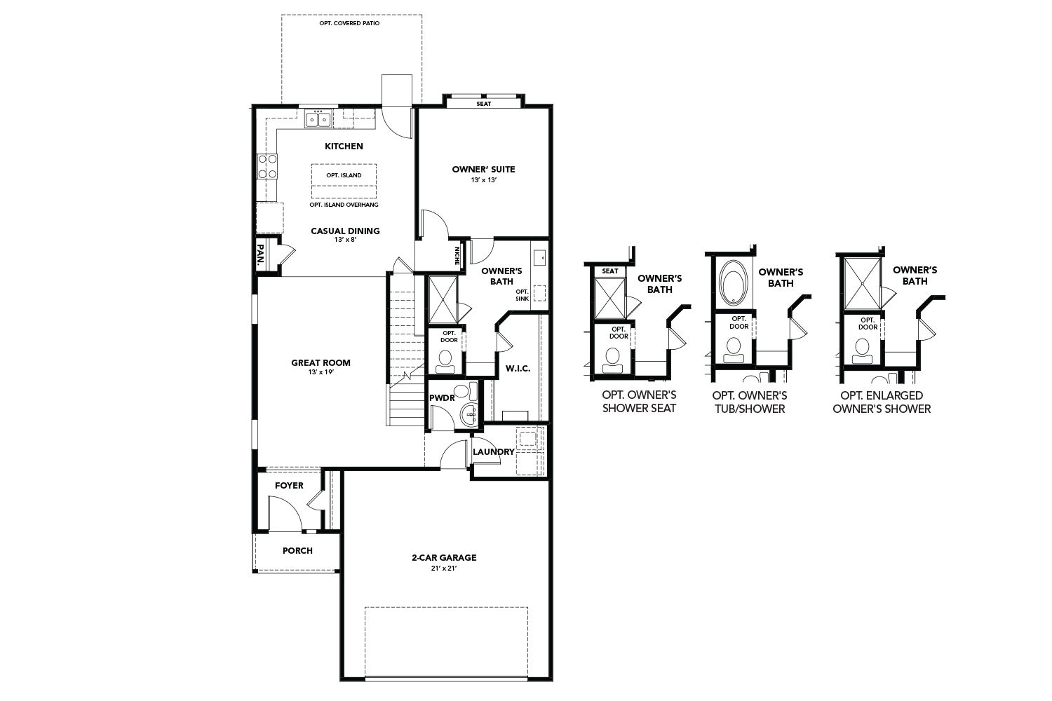
3–4 Bedrooms | 2.5–3.5 Bathrooms | Approx. 1,750 Sq. Ft. The Latitude offers an open, intuitive layout designed to support everyday living with ease and flexibility. From the foyer, the first floor opens into a bright central living space anchored by the kitchen, which connects seamlessly to the casual dining area and the dramatic two-story great room. This open layout creates a welcoming hub for everything from relaxed mornings to evening gatherings. The kitchen features ample counter space, pantry storage, and the option to add a central island to enhance functionality. Just beyond the kitchen, a covered patio extends the living space outdoors. A conveniently located powder room and dedicated laundry area add everyday ease. The primary suite is privately tucked at the rear of the first floor, offering a peaceful retreat with a spacious bedroom, walk-in closet, and a well-appointed bath. Buyers may personalize the suite with options such as an enlarged shower, shower seat, or a tub-and-shower configuration. Upstairs, two secondary bedrooms share a full bath and are positioned near an open loft that overlooks the great room below. Homeowners may choose to convert the loft into an optional game room or add a fourth bedroom with an additional bath to suit evolving needs. With its generous living spaces, flexible second-floor options, and open-concept design, the Latitude offers a home that adapts beautifully over time—delivering comfort, connection, and long-term livability.
Floor plan center
View floor plan details for this property.
- Floor Plans
- Exterior Images
- Interior Images
- Other Media
Neighborhood
Community location & sales center
12779 Dina Springs Lane
Magnolia, TX 77354
12779 Dina Springs Lane
Magnolia, TX 77354
888-928-5172
FROM 45 NORTH: Take exit 1488 then turn left. Turn right on Community Road. Continue straight on Damuth Drive when the road forks. Turn right on Mostyn Drive then left on Mostyn Lake Drive to the community. FROM 249: Turn right on 149 then another right on spur 149. Turn right on 1488 then turn left on Community Road. Continue straight on Damuth Drive when the road forks. Turn right on Mostyn Drive then left on Mostyn Lake Drive to the community.
Schools near Mostyn Springs
- Magnolia Independent School District
Actual schools may vary. Contact the builder for more information.
Amenities
Home details
Ready to build
Build the home of your dreams with the Latitude plan by selecting your favorite options. For the best selection, pick your lot in Mostyn Springs today!
Community & neighborhood
Local points of interest
- Views
Community services & perks
- HOA Fees: $800/year
Let DRB Homes put decades of industry experience to work for you. We understand that building a new home is not a one-size-fits-all process or journey; get ready to personalize your home to meet your unique needs. You can start by exploring the full portfolio of our most popular floor plans, all available in our new home communities across the region.
Our award-winning team is backed by the DRB Group, a growing, dynamic organization that includes two residential builder brands, a title company, and a residential development services branch providing entitlement, development and construction services. DRB Group's complete spectrum of services operates in 14 states and 35 markets -East Coast to Arizona, Colorado, Texas, and beyond.
Our DRB team will work with you every step of the way. From the on-site salespeople you meet with to the construction crew laying the foundation for your home — we're all working toward the same goal. The same is true for the members of our leadership team, who oversee the entire operation and ensure a seamless process.
TrustBuilder reviews
Take the next steps toward your new home
Latitude Plan by DRB Homes
saved to favorites!
To see all the homes you’ve saved, visit the My Favorites section of your account.
Discover More Great Communities
Select additional listings for more information
We're preparing your brochure
You're now connected with DRB Homes. We'll send you more info soon.
The brochure will download automatically when ready.
Brochure downloaded successfully
Your brochure has been saved. You're now connected with DRB Homes, and we've emailed you a copy for your convenience.
The brochure will download automatically when ready.
Way to Go!
You’re connected with DRB Homes.
The best way to find out more is to visit the community yourself!