Laurel Plan
Ready to build
913 Brazos Trail, Dayton TX 77535
Home by DRB Homes
at River Ranch

Last updated 22 hours ago
The Price Range displayed reflects the base price of the homes built in this community.
You get to select from the many different types of homes built by this Builder and personalize your New Home with options and upgrades.
3 BR
2 BA
2 GR
2,020 SQ FT

Modern Single-Family Home Design Showcasing Elegant Architecture 1/16
Overview
1 Story
Primary Bed Downstairs
Single Family
Laurel Plan Info
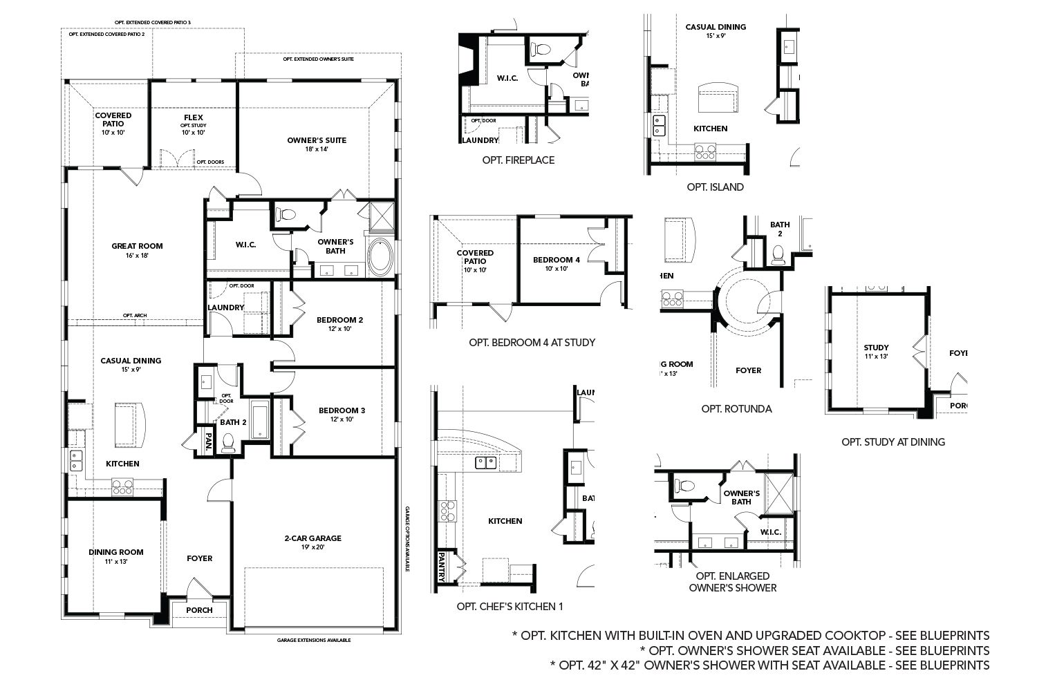
3-4 Bedrooms | 2 Bathrooms | Approx. 2,020 Sq. Ft. The Laurel combines inviting open living with thoughtful separation of space—perfect for those seeking comfort, connection, and flexibility in a single-story design. Blending modern comfort and timeless style, this plan creates a natural flow that feels both bright and beautifully balanced. Entering the home, a spacious foyer opens toward the center of the home, where the great room, casual dining area, and kitchen sit at the heart of the layout. Oversized windows and open sightlines make this living space ideal for entertaining or relaxing, while optional features like a fireplace, chef’s kitchen, or expanded island elevate everyday living. Additional enhancements include adding a rotunda at the foyer or elevating outdoor living with the option to extend the covered rear patio. Two secondary bedrooms are positioned near the front of the home, sharing a full bath and creating a distinct separation between living and sleeping areas. A nearby formal dining room which can also be converted into a designated study, adds versatility for work or entertaining. Located off the great room, a flex space can be used as a hobby space or playroom, with the option of a fourth bedroom. Tucked quietly along the back of the home, the primary suite is a private retreat with a spa-inspired ensuite bath featuring dual vanities for convenience, a walk-in shower, and a relaxing soaking tub. Attached to the bathroom is a spacious closet with ample hanging space and built in shelving. Personalization options include an enlarged shower, shower seat, or extended bedroom space for extra comfort. Combining elegant design with everyday functionality, The Laurel offers the perfect harmony of style, comfort, and convenience.
Floor plan center
View floor plan details for this property.
- Floor Plans
- Exterior Images
- Interior Images
- Other Media
Neighborhood
Community location & sales center
913 Brazos Trail
Dayton, TX 77535
913 Brazos Trail
Dayton, TX 77535
888-253-5294
The property is located 2.7 miles from the newly finished Grand Parkway, 6.1 miles to Hwy. 90, and 9.9 miles to IH-10.
Schools near River Ranch
- Dayton Independent School District
Actual schools may vary. Contact the builder for more information.
Amenities
Home details
Ready to build
Build the home of your dreams with the Laurel plan by selecting your favorite options. For the best selection, pick your lot in River Ranch today!
Community & neighborhood
Local points of interest
- Beach
Health and fitness
- Pool
- Trails
Community services & perks
- HOA Fees: $1,530/year
- Playground
- Community Center
Let DRB Homes put decades of industry experience to work for you. We understand that building a new home is not a one-size-fits-all process or journey; get ready to personalize your home to meet your unique needs. You can start by exploring the full portfolio of our most popular floor plans, all available in our new home communities across the region.
Our award-winning team is backed by the DRB Group, a growing, dynamic organization that includes two residential builder brands, a title company, and a residential development services branch providing entitlement, development and construction services. DRB Group's complete spectrum of services operates in 14 states and 35 markets -East Coast to Arizona, Colorado, Texas, and beyond.
Our DRB team will work with you every step of the way. From the on-site salespeople you meet with to the construction crew laying the foundation for your home — we're all working toward the same goal. The same is true for the members of our leadership team, who oversee the entire operation and ensure a seamless process.
TrustBuilder reviews
Take the next steps toward your new home
Laurel Plan by DRB Homes
saved to favorites!
To see all the homes you’ve saved, visit the My Favorites section of your account.
Discover More Great Communities
Select additional listings for more information
We're preparing your brochure
You're now connected with DRB Homes. We'll send you more info soon.
The brochure will download automatically when ready.
Brochure downloaded successfully
Your brochure has been saved. You're now connected with DRB Homes, and we've emailed you a copy for your convenience.
The brochure will download automatically when ready.
Way to Go!
You’re connected with DRB Homes.
The best way to find out more is to visit the community yourself!