Layla Plan
Ready to build
Herriman UT 84096
Home by Richmond American Homes
Last updated 1 day ago
The Price Range displayed reflects the base price of the homes built in this community.
You get to select from the many different types of homes built by this Builder and personalize your New Home with options and upgrades.
4 BR
2.5 BA
2 GR
2,192 SQ FT

Layla-U698-GreatBasinatOlympia Elevation E 1/26
Special offers
Explore the latest promotions at Great Basin at Olympia. Contact Richmond American Homes to learn more!
8 Credit Score Management Tips
Salt Lake City Homes of the Week
Get today's best offers...
Overview
1 Half Bathroom
2 Stories
Primary Bed Downstairs
Single Family
Layla Plan Info
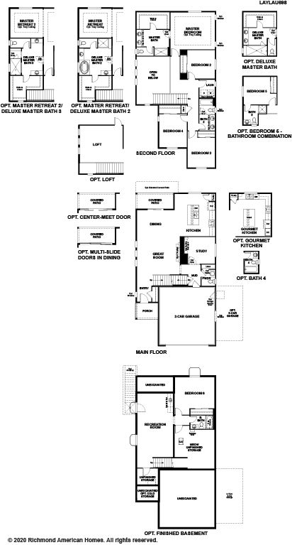
The versatile Layla floor plan offers two floors of thoughtfully designed living space. On the main floor, a two-story great room and dining area open onto a kitchen with a large center island. Nearby, there's a private study and a powder bath which can be built as a full bath. Upstairs, you'll find four inviting bedrooms, a convenient laundry and two lavish baths. Need extra space? Add a loft, an additional bedroom or a master retreat to fit your lifestyle.
Floor plan center
View floor plan details for this property.
- Floor Plans
- Exterior Images
- Interior Images
- Other Media
Explore custom options for this floor plan.
- Choose Option
- Include Features
Neighborhood
Community location
12642 S Alpine Lake Lane <br/> Herriman, UT 84096
12642 S Alpine Lake Lane <br/> Herriman, UT 84096
888-825-7619
From I-15, take Exit 291 and head west on 12300 South. Continue on this road as it becomes 12600 South and eventually transitions into Herriman Boulevard. Turn left onto 6400 West, then make another left onto Roaring River Lane. The community will be straight ahead.
Nearby schools
Jordan District
Oak Leaf Elementary School
Elementary-Middle school. Grades KG to 6.
Public school
Teacher - student ratio: 1:21
Students enrolled: 500
801-567-8970
6936 Silver Sky Dr, Herriman, UT, 84096
Copper Mountain Middle School
Middle-High school. Grades 7 to 9.
Public school
Teacher - student ratio: 1:23
Students enrolled: 1085
801-412-1200
12106 S Anthem Park Blvd, Herriman, UT, 84096
Herriman High School
High school. Grades 10 to 12.
Public school
Teacher - student ratio: 1:24
Students enrolled: 2240
801-567-8530
11917 S 6000 W, Herriman, UT, 84096
GreatSchools ratings are provided by GreatSchools.org and are for reference only. Ratings may not be available for all schools. Please verify school assignments and details with the local school district.
Amenities
Home details
Ready to build
Build the home of your dreams with the Layla plan by selecting your favorite options. For the best selection, pick your lot in Great Basin at Olympia today!
Community & neighborhood
Social activities
- Herriman Library
Health and fitness
- Intermountain Riverton Hospital
- Trails
Community services & perks
- Herriman Police Department
- U of U Health South Jordan
- Playground
- Park
- Community Center
What sets Richmond American Homes companies apart from other leading homebuilders? Many will say it's the inspired floor plans, incredible included features, quality construction and unwavering commitment to customer satisfaction. Although these all play a role, personalization is what truly makes the difference. The company may have built more than 210,000 homes over the last 40+ years, but each one turns out anything but cookie cutter!
How do we make each Richmond American home unique? By offering homebuyers who build a new home from the ground up the opportunity to choose from hundreds of fixture and finish options at our innovative Home Gallery™ design centers across the country. From the kitchen cabinets and countertops to the surround sound, there are countless opportunities to tailor the floor plans, along with seasoned advice to assist customers every step of the way.
The Richmond American Homes companies have homebuilding operations in several states, including Arizona, California, Colorado, Florida, Idaho, Maryland, Nevada, Oregon, Pennsylvania, Utah, Virginia and Washington. With an impressive lineup of ranch, two-story and three-story floor plans, and several sought-after home collections available, there are options that appeal to a wide range of homebuyers at a variety of price points. Customers can also take advantage of the one-stop shopping convenience offered by Richmond American’s affiliates, HomeAmerican Mortgage Corporation, American Home Insurance Agency, Inc. and American Home Title and Escrow Company. Together, these companies offer a streamlined homebuying experience from start to finish. Discover your dream home—and make it your own—today!
TrustBuilder reviews
Take the next steps toward your new home
Layla Plan by Richmond American Homes
saved to favorites!
To see all the homes you’ve saved, visit the My Favorites section of your account.
Discover More Great Communities
Select additional listings for more information
We're preparing your brochure
You're now connected with Richmond American Homes. We'll send you more info soon.
The brochure will download automatically when ready.
Brochure downloaded successfully
Your brochure has been saved. You're now connected with Richmond American Homes, and we've emailed you a copy for your convenience.
The brochure will download automatically when ready.
Way to Go!
You’re connected with Richmond American Homes.
The best way to find out more is to visit the community yourself!