Leadville Plan
Ready to build
1739 Peach Avenue, Erie CO 80516
Home by DRB Homes
at Westerly

Last updated 20 hours ago
The Price Range displayed reflects the base price of the homes built in this community.
You get to select from the many different types of homes built by this Builder and personalize your New Home with options and upgrades.
3 BR
2.5 BA
2 GR
2,044 SQ FT

Leadville-Elevation A 1/6
Overview
1 Half Bathroom
2 Bathrooms
2 Car Garage
2 Stories
2044 Sq Ft
3 Bedrooms
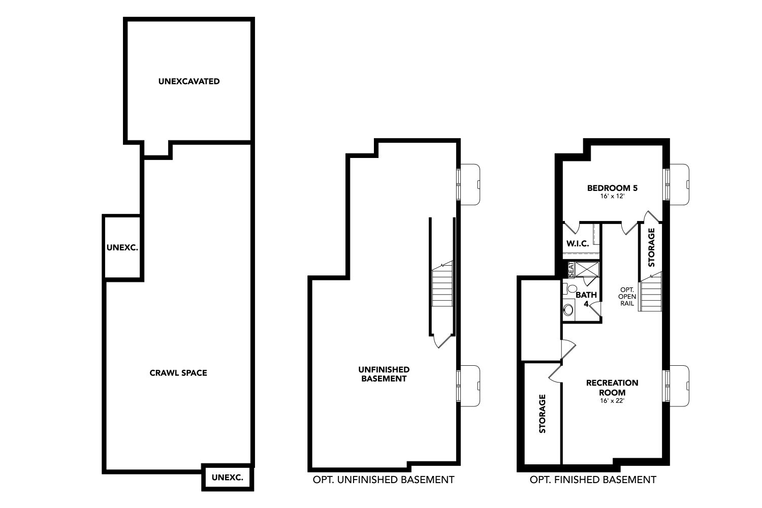
Basement
Primary Bed Upstairs
Single Family
Leadville Plan Info
The Leadville floorplan offers 2,044 square feet of flexible, two-story living designed to adapt to your lifestyle. On the main level, enjoy a seamless flow between the great room, casual dining area, and well-appointed kitchen, creating a warm and open space perfect for gatherings or everyday living. A large flex room on the main floor provides the versatility to serve as a home office, playroom, or be converted into a fourth bedroom—ideal for guests or multigenerational living. Upstairs, you’ll find three comfortable bedrooms, including a private primary suite, along with convenient upstairs laundry and additional storage. Looking for even more space? The optional basement provides the opportunity to expand your home with a finished bedroom, recreation room, or additional living space tailored to your needs.
Floor plan center
View floor plan details for this property.
- Floor Plans
- Exterior Images
- Interior Images
- Other Media
Neighborhood
Community location & sales center
1739 Peach Avenue
Erie, CO 80516
1739 Peach Avenue
Erie, CO 80516
888-937-3798
Take I-25 to Erie Parkway (Erie/Dacono Exit 232) and head West on Erie Pkwy. In approximately 2 miles turn left on Westerly Blvd and head South through the entrance of the community. Follow the fork and take a left on Peach Avenue and head East. Drive approximately .25 miles and look for signs and the Brightland Homes/American Flag on your left. The model home sales office and the parking lot are located at the Northeast corner of Sassafras St. and Peach Ave.
Schools near Westerly
- Boulder Valley School District No. Re2
- St. Vrain Valley School District No. Re1j
Actual schools may vary. Contact the builder for more information.
Amenities
Home details
Ready to build
Build the home of your dreams with the Leadville plan by selecting your favorite options. For the best selection, pick your lot in Westerly today!
Community & neighborhood
Local points of interest
- Greenbelt
Social activities
- Club House
Health and fitness
- Pool
Community services & perks
- HOA fees: Unknown, please contact the builder
- Playground
- Park
Let DRB Homes put decades of industry experience to work for you. We understand that building a new home is not a one-size-fits-all process or journey; get ready to personalize your home to meet your unique needs. You can start by exploring the full portfolio of our most popular floor plans, all available in our new home communities across the region.
Our award-winning team is backed by the DRB Group, a growing, dynamic organization that includes two residential builder brands, a title company, and a residential development services branch providing entitlement, development and construction services. DRB Group's complete spectrum of services operates in 14 states and 35 markets -East Coast to Arizona, Colorado, Texas, and beyond.
Our DRB team will work with you every step of the way. From the on-site salespeople you meet with to the construction crew laying the foundation for your home — we're all working toward the same goal. The same is true for the members of our leadership team, who oversee the entire operation and ensure a seamless process.
TrustBuilder reviews
Take the next steps toward your new home
Leadville Plan by DRB Homes
saved to favorites!
To see all the homes you’ve saved, visit the My Favorites section of your account.
Discover More Great Communities
Select additional listings for more information
We're preparing your brochure
You're now connected with DRB Homes. We'll send you more info soon.
The brochure will download automatically when ready.
Brochure downloaded successfully
Your brochure has been saved. You're now connected with DRB Homes, and we've emailed you a copy for your convenience.
The brochure will download automatically when ready.
Way to Go!
You’re connected with DRB Homes.
The best way to find out more is to visit the community yourself!