LEWIS Plan
Ready to build
1072 Refuge Way, Summerton SC 29148
Home by D.R. Horton
at North Shore
Last updated 2 days ago
The Price Range displayed reflects the base price of the homes built in this community.
You get to select from the many different types of homes built by this Builder and personalize your New Home with options and upgrades.
3 BR
2 BA
1,256 SQ FT
Claim this listing to update information, get access to exclusive tools and more!

Floorplan 0 1/1
Overview
1 Story
1256 Sq Ft
2 Bathrooms
3 Bedrooms
Single Family
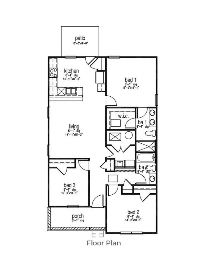
LEWIS Plan Info
Our Lewis floorplan offers a spacious single-story cottage with three bedrooms and two full bathrooms all on one level. The split bedroom design places the primary suite at the back of the home providing both privacy and comfort. The primary suite boasts a walk-in closet, shower, and vanity with quartz countertops. The living space flows seamlessly into the modern kitchen complete with granite countertops, stainless-steel appliances and ample cabinet space decorated in a soft gray. Outside you'll find a covered front porch and rear patio overlooking a beautiful, wooded backyard. All new homes will include D.R. Horton's Home is Connected® package, an industry leading suite of smart home products that keeps homeowners connected with the people and place they value the most. This technology allows homeowners to monitor and control their home from the couch or across the globe. Products include touchscreen interface, video doorbell, front door light, z-wave t-stat, and a keyless door lock. *Square footage dimensions are approximate. *The photos you see here are for illustration purposes only, interior and exterior features, options, colors and selections will differ. Please reach out to sales agent for options.
Floor plan center
View floor plan details for this property.
- Floor Plans
- Exterior Images
- Interior Images
- Other Media
Neighborhood
Community location & sales center
1072 Refuge Way
Summerton, SC 29148
1072 Refuge Way
Summerton, SC 29148
888-790-3488
Schools near North Shore
- Clarendon County School District
Actual schools may vary. Contact the builder for more information.
Amenities
Home details
Ready to build
Build the home of your dreams with the LEWIS plan by selecting your favorite options. For the best selection, pick your lot in North Shore today!
Neighborhood amenities
Santee IGA #81
3.27 miles away
9092 Old Number Six Hwy
Food Lion
3.73 miles away
697 Bass Dr
Mallard's Grocery
3.80 miles away
215 Jack Branch Rd
Vance Farmers Market
4.92 miles away
10324 Old Number Six Hwy
Elloree IGA
8.60 miles away
6639 Old Number Six Hwy
Hunt Brothers Pizza
0.38 mile away
1268 Gordon Rd
The Lake House
0.65 mile away
5321 Dingle Pond Rd
Big Water Country Store
0.66 mile away
5236 Dingle Pond Rd
Craig's Place Cafe & Deli
3.16 miles away
9083 Old Number Six Hwy
Armando's Mexican Restaurant
3.17 miles away
9134 Old Number Six Hwy
Salley's Classy Boutique
3.40 miles away
160 Business Park Dr
Family Dollar
3.80 miles away
715 Bass Dr
Family Dollar Dollar Tree
4.92 miles away
10503 Old Highway Number 6
Blessings
7.74 miles away
2 Cole St
Family Dollar
8.60 miles away
6406 Old Number Six Hwy
Emperor Lounge & Bar
3.31 miles away
123 Mall St
I 95 Bar & Grill
3.31 miles away
125 Mall St
The Oasis
3.80 miles away
8101 Old Number Six Hwy
Goat Island Restaurant & Lounge
6.77 miles away
9645 Wash Davis Rd
Please note this information may vary. If you come across anything inaccurate, please contact us.
Builder details
D.R. Horton
In 1978, D.R. Horton broke ground on our first home in Fort Worth, Texas. Since that day, the company has defined its success not by bricks and mortar, but by the satisfaction of the families that make our houses their homes. Our foundation is a single, guiding principle: a value-first dedication to the individual needs of each and every one of our nation’s homebuyers.
From first-time homebuyers to empty nesters, our family of brands provides a home for every stage in life. Our highly-trained, market experts are where you want to live, from New Jersey to Hawaii, providing unique, personalized services tailored to your individual needs. But the real value comes from the quality construction we put into every home, and the peace of mind that comes with a premium-backed warranty from America’s Number One Homebuilder.
We’ve come a long way, and while more people choose our family of brands over any other builder in the country, we never forget the most important thing of all – the families that choose us for their place to call home.
So continue to live out those dreams, America, and know we’ll be here for you every step of the way.
More new homes in Summerton, South Carolina
LEWIS Plan by D.R. Horton
saved to favorites!
To see all the homes you’ve saved, visit the My Favorites section of your account.
Discover More Great Communities
Select additional listings for more information
Way to Go!
An agent will be in contact soon!
