Liberty 4 Plan
Ready to build
10025 Hammock Brook Drive, Parrish FL 34219
Home by Neal Communities
at Wildleaf

Last updated 1 day ago
The Price Range displayed reflects the base price of the homes built in this community.
You get to select from the many different types of homes built by this Builder and personalize your New Home with options and upgrades.
3 BR
2 BA
2 GR
1,533 SQ FT

Exterior 1/22
Overview
1 Story
Breakfast Area
Covered Patio
Family Room
Guest Room
Living Room
Primary Bed Downstairs
Single Family
Walk-In Closets
Liberty 4 Plan Info
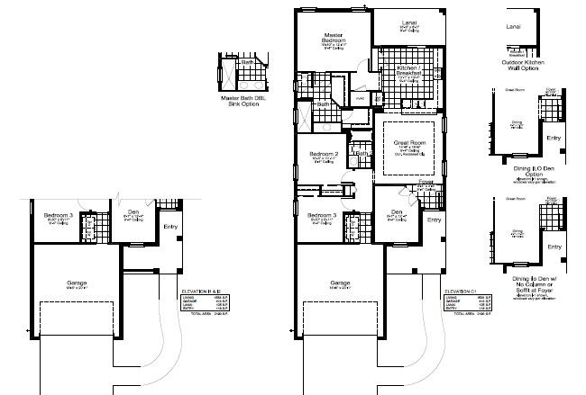
*Base price does not include the homesite premium or design options.* The Liberty 4 home design features an inviting front porch. Inside, you step into the open great room and onto the well-appointed kitchen, which has a handsome peninsula with breakfast bar. A covered lanai with optional outdoor kitchen wall sits beyond, a beautiful sight to behold when enjoying your meals. The spacious master suite includes two walk-in closets, large shower and private water closet. A den at the front of the home provides the option of using the area as a formal dining room, allowing you to greet guests and family with the view of a gorgeous spread. This could be the home you’ve been looking for! Call today to find out more and to schedule an appointment.
Floor plan center
View floor plan details for this property.
- Floor Plans
- Exterior Images
- Interior Images
- Other Media
Explore custom options for this floor plan.
- Choose Option
- Include Features
Neighborhood
Community location & sales center
10025 Hammock Brook Drive
Parrish, FL 34219
10025 Hammock Brook Drive
Parrish, FL 34219
888-893-5219
From I-75: Take Exit 229 towards Parrish and follow Moccasin Wallow Road heading East. Travel 4 miles and turn left onto Fort Hamer Road. Follow this and turn left onto Camp Creek Trail, followed by an immediate left. Our sales center will be on the right. 10025 Hammock Brook Drive - Parrish, FL 34219
Nearby schools
Manatee County Public Schools
Barbara A. Harvey Elementary School
Elementary school. Grades PK to 5.
Public school
Teacher - student ratio: 1:18
Students enrolled: 1069
941-803-9340
8610 115th Ave E, Parrish, FL, 34219
Buffalo Creek Middle School
Middle school. Grades 6 to 8.
Public school
Teacher - student ratio: 1:20
Students enrolled: 1127
941-721-2260
7320 69th St E, Palmetto, FL, 34221
Parrish Community High School
High school. Grades 9 to 12.
Public school
Teacher - student ratio: 1:23
Students enrolled: 2017
941-803-9330
7505 Fort Hamer Rd, Parrish, FL, 34219
GreatSchools ratings are provided by GreatSchools.org and are for reference only. Ratings may not be available for all schools. Please verify school assignments and details with the local school district.
Amenities
Home details
Ready to build
Build the home of your dreams with the Liberty 4 plan by selecting your favorite options. For the best selection, pick your lot in Wildleaf today!
Community & neighborhood
Local points of interest
- Little Manatee River State Park
- Ellenton Premium Outlets
- Village Center at North River Ranch
Social activities
- Social Events
- Activities Coordinator
- Club House
Health and fitness
- Bike Share
- Fitness Center
- Recreation Centers
- Dog Park
- Pool
- Trails
Community services & perks
- Playground
- Park
- Community Center
Neighborhood amenities
Parrish Super Market
1.62 miles away
12330 US Highway 301 N
Publix
3.53 miles away
11245 US Highway 301 N
Publix
3.81 miles away
9520 Buffalo Rd
Publix
4.89 miles away
9005 US Highway 301 N
ALDI
4.90 miles away
8810 US Highway 301 N
Babycakes
0.94 mile away
12221 High Rock Way
Lindt Chocolate Shop
6.56 miles away
5451 Factory Shops Blvd
Ochunsoino's Spiritual & Natural Health
7.81 miles away
203 W Shell Point Rd
Walmart Bakery
8.14 miles away
6225 E State Road 64
GNC
8.38 miles away
3830 Sun City Center Blvd
PJ's Sandwich Shop
1.57 miles away
12342 US Highway 301 N
Jo Jo's Pizza
1.59 miles away
12345 US Highway 301 N
Jojo's Tastes of Chicago
1.59 miles away
12345 US Highway 301 N
Sparkin BBQ
2.66 miles away
11146 58th Street Cir E
C & K Smokehouse BBQ
2.70 miles away
12119 US Highway 301 N
Dunkin'
2.90 miles away
11511 US Highway 301 N
Treehouse Coffee
2.90 miles away
121st Ave E
American Honey Creamery & Coffee Co
4.58 miles away
4919 96th St E
Dunkin'
4.99 miles away
5285 69th St E
Coffee Anabolic
5.18 miles away
3907 70th Ave E
The Teal Turtle Boutique
1.48 miles away
12355 US Highway 301 N
Faith Shirts
4.89 miles away
8955 US Highway 301 N
Luxa's Closet
4.89 miles away
8955 US Highway 301 N
Marshalls
4.90 miles away
8830 US Highway 301 N
Beef'O'Brady's
4.89 miles away
8913 US Highway 301 N
Evies Tavern Ellenton
6.49 miles away
5955 Factory Shops Blvd
Chili's
6.51 miles away
6010 US Highway 301 N
Winghouse Bar & Grill
6.52 miles away
2015 60th Ave E
Applebee's Grill + Bar
6.67 miles away
5908 18th St E
Please note this information may vary. If you come across anything inaccurate, please contact us.
At Neal Communities, we believe where people live has an impact on their life. It's not just about homes, it's about creating wonderful communities. It's about selecting quality places where people can live, grow and thrive. This is our brand promise: Where You Live Matters. At Neal Communities, we know it’s not just about building a tapestry of homes. It’s about how those homes weave together to form a true community. After all, when you feel confident in your investment and connected to the people around you, your life improves in more ways than a balance sheet could ever show. Where you live matters, and we are grateful for the chance to tell you what makes Neal Communities so special. For 50 years, we’ve been building Neal Communities throughout Southwest Florida. Doing this takes more than tools and blueprints. It takes commitment. And it takes the utmost dedication to our buyers. For us, customer satisfaction is what matters most.
Take the next steps toward your new home
Liberty 4 Plan by Neal Communities
saved to favorites!
To see all the homes you’ve saved, visit the My Favorites section of your account.
Discover More Great Communities
Select additional listings for more information
We're preparing your brochure
You're now connected with Neal Communities. We'll send you more info soon.
The brochure will download automatically when ready.
Brochure downloaded successfully
Your brochure has been saved. You're now connected with Neal Communities, and we've emailed you a copy for your convenience.
The brochure will download automatically when ready.
Way to Go!
You’re connected with Neal Communities.
The best way to find out more is to visit the community yourself!