Linden Plan
Ready to build
11888 Sage Creek Bend, Fortville IN 46040
Home by Fischer Homes
at The Cove

Last updated 2 days ago
The Price Range displayed reflects the base price of the homes built in this community.
You get to select from the many different types of homes built by this Builder and personalize your New Home with options and upgrades.
3 BR
2 BA
2,064 SQ FT

Exterior 1/19
Special offers
Explore the latest promotions at The Cove. Contact Fischer Homes to learn more!
New Beginnings Start at Home
Overview
1 Story
2 Bathrooms
2064 Sq Ft
3 Bedrooms
Primary Bed Downstairs
Single Family
Linden Plan Info
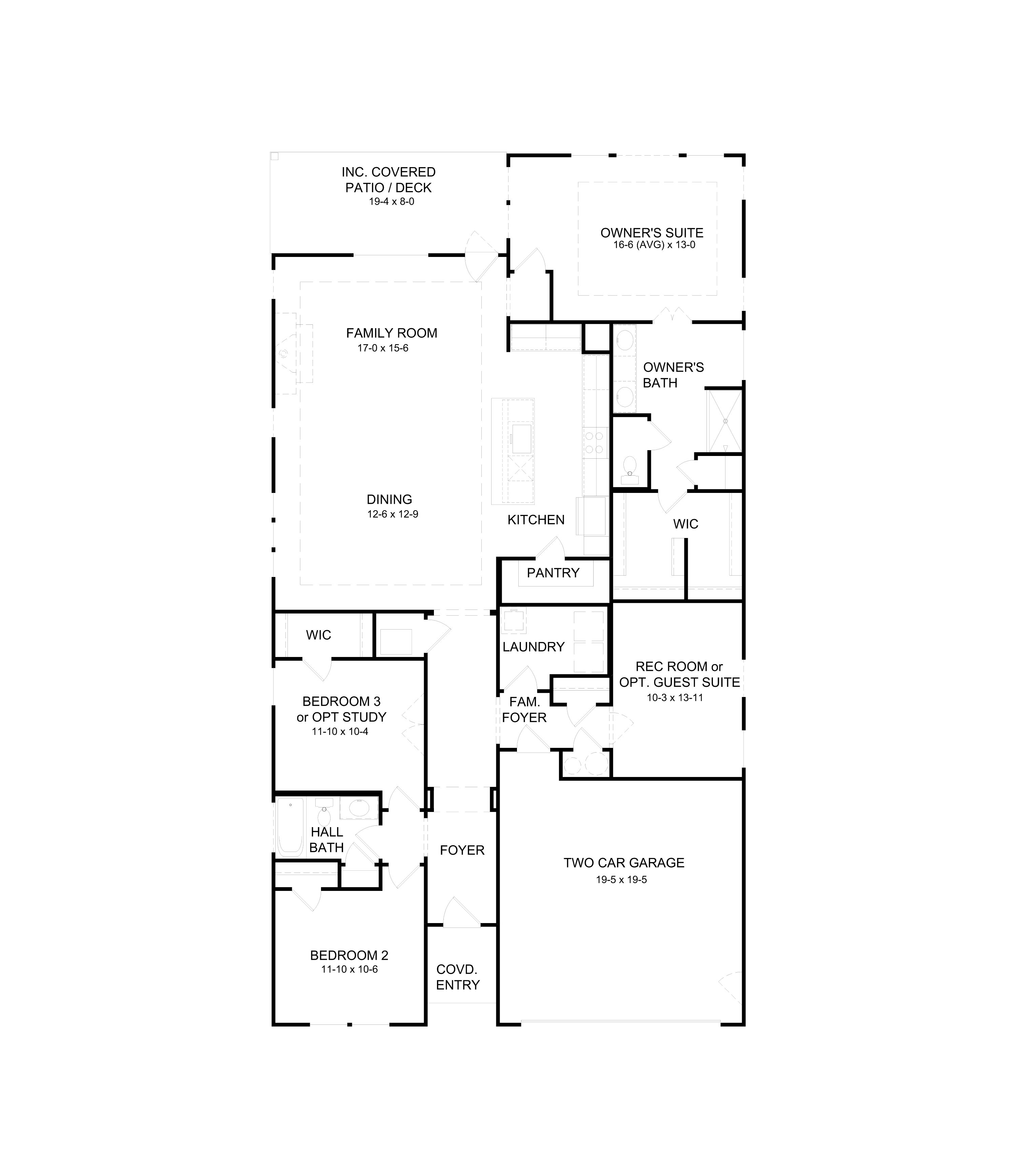
The Linden by Fischer Homes features an open-concept design that is perfect for modern living. The expansive kitchen layout includes a large pantry and seamlessly connects to the living spaces. Enjoy outdoor living with the included covered patio or deck. The main level offers a recreation room that can be upgraded to a guest suite or a private study for added flexibility. The option for a rear wall fireplace adds warmth and charm, while the owners suite boasts an extra-large walk-in closet for ultimate convenience. The Linden combines thoughtful design and versatility to suit your lifestyle.
Floor plan center
View floor plan details for this property.
- Floor Plans
- Exterior Images
- Interior Images
- Other Media
Neighborhood
Community location & sales center
11888 Sage Creek Bend
Fortville, IN 46040
11888 Sage Creek Bend
Fortville, IN 46040
888-989-4956
Take I-69 N to Southeastern Pkway exit 210. Merge right onto Campus Pkwy/Southeastern Pkwy. At the traffic circle, take the 3rd exit onto E 136th St/Southeastern Pkwy. Turn right onto Southeastern Pkwy. Turn right onto Florida Rd.Turn right onto Cyntheanne Rd. Turn right on Sage Creek Bend.
Schools near The Cove
- Hamilton Southeastern School District
Actual schools may vary. Contact the builder for more information.
Amenities
Home details
Green program
Energywise
Ready to build
Build the home of your dreams with the Linden plan by selecting your favorite options. For the best selection, pick your lot in The Cove today!
Community & neighborhood
Community services & perks
- HOA fees: Unknown, please contact the builder
Neighborhood amenities
Tasteful Times
1.40 miles away
11677 Olio Rd
Kroger
1.68 miles away
11700 Olio Rd
Towne Market
2.82 miles away
14126 Bergen Blvd
Strough Supermarket
3.03 miles away
624 N Madison St
BJ's Wholesale Club
3.05 miles away
13210 Tegler Dr
Kroger Bakery
1.68 miles away
11700 Olio Rd
Pies & Pints-Noblesville
2.84 miles away
13901 Town Center Blvd
American Dream Coffee House
2.85 miles away
13230 Harrell Pkwy
KC Cakes Unlimited
2.94 miles away
13110 Harrell Pkwy
Duke's Place
0.46 mile away
15348 Southeastern Pkwy
Circle City Star
0.47 mile away
12311 Poplar Bend Blvd
Schoolhouse 7 Cafe
0.57 mile away
12125 Cyntheanne Rd
JBR Express LLC
1.20 miles away
14058 Royalwood Dr
Big Apple Bagel
1.40 miles away
11675 Olio Rd
Starbucks
1.59 miles away
13701 E 116th St
Starbucks
1.68 miles away
11700 Olio Rd
Jack's Donuts
2.05 miles away
13578 E 131st St
Starbucks
2.35 miles away
13844 Olivia Way
Dunkin'
2.52 miles away
12660 E 116th St
Apricot Lane Boutique
1.40 miles away
11691 Olio Rd
Red Lotus Ventures
1.40 miles away
11691 Olio Rd
Bee Boutique
1.58 miles away
11386 Olio Rd
Ross Dress For Less
2.71 miles away
13920 Hoard Dr
JCPenney
2.73 miles away
13900 Hoard Dr
Buffalo Wild Wings
1.41 miles away
13868 E 116th St
Murphys PubHouse
1.61 miles away
11650 Olio Rd
Joe's Grille Fishers
2.77 miles away
11640 Brooks School Rd
Qdoba Mexican Eats
2.85 miles away
13230 Harrell Pkwy
Houlihan's Restaurant + Bar
2.94 miles away
14065 Town Center Blvd
Please note this information may vary. If you come across anything inaccurate, please contact us.
Recognized by Builder Magazine as the 31st largest home builder in the U.S., Fischer Homes is one of the most reputable new home builders in the Midwestern and Southeastern states. The company was founded in 1980 in Northern Kentucky by Henry and Elaine Fischer with the philosophy of "Promise only what you can deliver and deliver what you promise," and have been building quality homes ever since. Over the past 40 years, privately-owned Fischer Homes has proudly built over 40,000 homes and has maintained a 98% customer satisfaction rating, one of the highest in the industry. They have partnered with nationally known architects to bring fresh and innovative styles to their extensive portfolio of new home designs. Headquartered in Erlanger, Kentucky, Fischer Homes builds new homes in communities throughout Atlanta, Cincinnati, Columbus, Dayton, Indianapolis, Louisville, Northern Kentucky, North Carolina, Northwest Florida, and St. Louis. Their collections of single-family, condominiums, and patio homes offer choices for people in all stages of life and range in price from the $130s to $1 million+. They are also an ENERGYSTAR certified partner and a proud builder of three St. Jude Dream Homes every year. To find a community or a new home near you, visit fischerhomes.com or follow on social media.
Take the next steps toward your new home
Linden Plan by Fischer Homes
saved to favorites!
To see all the homes you’ve saved, visit the My Favorites section of your account.
Discover More Great Communities
Select additional listings for more information
We're preparing your brochure
You're now connected with Fischer Homes. We'll send you more info soon.
The brochure will download automatically when ready.
Brochure downloaded successfully
Your brochure has been saved. You're now connected with Fischer Homes, and we've emailed you a copy for your convenience.
The brochure will download automatically when ready.
Way to Go!
You’re connected with Fischer Homes.
The best way to find out more is to visit the community yourself!