Aspen Plan
Ready to build
Haubstadt IN 47639
Home by Reinbrecht Homes
Last updated 2 days ago
The Price Range displayed reflects the base price of the homes built in this community.
You get to select from the many different types of homes built by this Builder and personalize your New Home with options and upgrades.
3 BR
2 BA
2 GR
2,011 SQ FT
Claim this listing to update information, get access to exclusive tools and more!

Exterior 1/15
Overview
Single Family
Aspen Plan Info
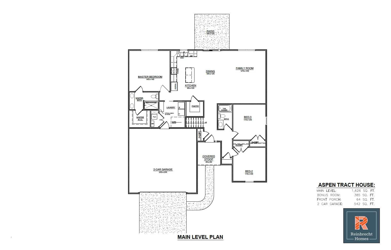
The aspen floor plan is 2011 square feet with 3 bedrooms 2 baths and a 2 car garage. This plan features a bonus room and large laundry room.
Neighborhood
Community location & sales center
Haubstadt, IN 47639
Haubstadt, IN 47639
888-790-3488
Schools near Waterfront Villas IN Vincennes
- South Gibson School Corporation
Actual schools may vary. Contact the builder for more information.
Amenities
Home details
Ready to build
Build the home of your dreams with the Aspen plan by selecting your favorite options. For the best selection, pick your lot in Waterfront Villas IN Vincennes today!
Community & neighborhood
Local points of interest
- Lake
Community services & perks
- Park
Builder details
Reinbrecht Homes
More new homes in Haubstadt, Indiana
Aspen Plan by Reinbrecht Homes
saved to favorites!
To see all the homes you’ve saved, visit the My Favorites section of your account.
Discover More Great Communities
Select additional listings for more information
Way to Go!
An agent will be in contact soon!