Halton Oaks
Luna II
2002 Halton Oaks Drive, Spartanburg, SC, 29303
by Great Southern Homes
From $269,900 This is the starting price for this plan and is subject to change.
- 3 Beds
- 2 Baths
- 2 Car garage
- 1,395 Sq Ft
Overview
Floor plan features
- 1 Story
- Primary Bed Downstairs
- Single Family
Floor plan description
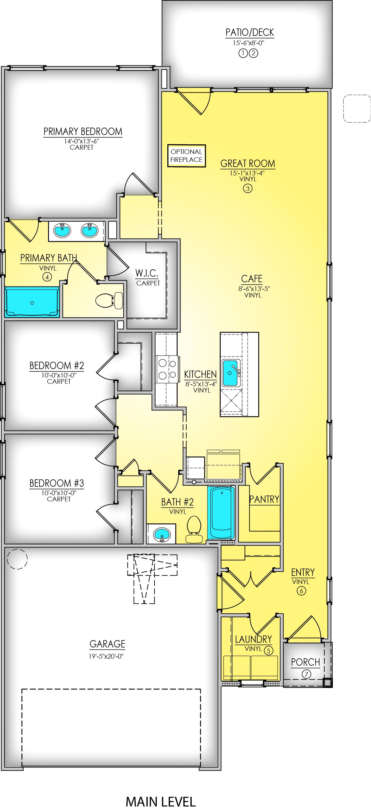
The Luna II by Great Southern Homes is a thoughtfully designed single-story home offering approximately 1,395 square feet of efficient and comfortable living space. This plan features 3 bedrooms and 2 full baths, making it an ideal option for homeowners seeking practical one-level living with a functional layout. The main living area is centered around an open-concept design that connects the great room, café, and kitchen into a seamless space for everyday living and entertaining. The kitchen includes a center island, pantry storage, and ample cabinetry, with convenient access to the dining area. The great room opens directly to a rear patio or deck, with available options for a covered or screened porch to enhance outdoor living, as shown in the layout and options on pages 8 and 9. The ...
Explore this home
Explore custom options for this floor plan.
Special offers
Explore the latest promotions at Halton Oaks. to learn more!
3.99% Rate
3.99% 30 Rate For Year 1* And 4.99% Rate For Year 2-30* At 5.759% APR, Plus $5,000 in Closing Costs** OR $15,000 In Mad Money*** With Homeowners Mortgage. This offer runs through 04/29/2026.
Build Jobs With Mad Money
Build Jobs $15,000 In Mad Money*** With Homeowners Mortgage. This offer runs through 04/29/2026.
Community highlights
About Halton Oaks
At Halton Oaks, you’ll find some of the most inviting new homes in Spartanburg, SC designed for comfort, connection, and room to grow. Located near Boiling Springs and major highways, this community makes commuting simple while keeping you close to shopping, dining, and Upstate employers. Buyers searching for new construction homes in Spartanburg, SC love the spacious 3- and 4-bedroom layouts ranging up to 3,000+ square feet. But it’s more than square footage. It’s weekends at the community pool. It’s neighbors gathering at the playground. It’s pickleball games that turn into friendships. If you’re looking for move-in ready homes in Spartanburg or trusted home builders in the Upstate, Halton Oaks delivers lifestyle and value in one welcoming neighborhood. More info about Halton Oaks
Green program
LIVE GREEN. LIVE SMART.
More InfoNeighborhood
Community location & sales center
2002 Halton Oaks Drive Spartanburg, SC 29303
2002 Halton Oaks Drive Spartanburg, SC 29303
888-684-8539
From Greenville: Head south on S Main St toward W Court St. Turn right onto E Court St. Continue onto S Spring St. Turn left onto E Washington St. Turn left onto Church St (US-29). Take the right onto E North St (I-385-SPUR). Merge onto I-385 S toward Spartanburg/Columbia. Take exit 36B-A for I-85 N toward Atlanta/Spartanburg. Take exit 69 for I-85-BL N toward Spartanburg. Take exit 7 toward Road 191/Bryant Rd. Turn right onto Bryant Rd (SC-191). Turn right onto Halton Oaks Way. The model home is on the right.
Amenities
Community & neighborhood
Neighborhood amenities
Wise Buys Discount Groceries
1.40 miles away
369 Whitney Rd
Food Lion
1.66 miles away
95 Garner Rd
The Fresh Market
2.05 miles away
1200 E Main St
ALDI
2.15 miles away
1605 E Main St
Publix
2.23 miles away
1905 E Main St
Bimbo Bakeries USA
1.00 mile away
2107 Chesnee Hwy
Caroline's Cakes
1.24 miles away
925 Beaumont Ave
Garners Natural Foods
2.17 miles away
1855 E Main St
Nothing Bundt Cakes
2.26 miles away
1915 E Main St
Sugah Cakes
2.50 miles away
551 E Main St
Sakura Japanese Steak House
1.28 miles away
393 Whitney Rd
Dray Bar Grill
1.39 miles away
1800 Drayton Rd
Pig Out
1.39 miles away
1945 Drayton Rd
Pi-Squared Pizza
1.39 miles away
1802 Drayton Rd
Ike's Korner Grille
1.43 miles away
104 Archer Rd
Starbucks
1.81 miles away
805 N Pine St
Starbucks
2.06 miles away
1544 E Main St
Tropical Smoothie Cafe
2.22 miles away
1949 E Main St
Krispy Kreme Doughnuts
2.55 miles away
354 N Church St
Starbucks
2.61 miles away
2220 Chesnee Hwy
Family Dollar
1.36 miles away
370 Whitney Rd
Fly Girlz & Guyz Beauty & More
1.49 miles away
134 Garner Rd
New Expressions
1.59 miles away
1260 Boiling Springs Rd
Rainbow
1.60 miles away
1000 N Pine St
Family Dollar
1.80 miles away
1841 Cannons Campground Rd
Tenas
0.33 mile away
1089 Chesnee Hwy
Bennetts Tavern
1.21 miles away
613 Chesnee Hwy
Danz Place Inc
1.45 miles away
100 McMillan St
Art Lounge
1.61 miles away
1410 Skylyn Dr
Mist-N-Smoke Lounge
1.65 miles away
280 Whitney Rd
Please note this information may vary. If you come across anything inaccurate, please contact us.
Builder details
Great Southern Homes

Great Southern Homes has been building homes in South Carolina since 1993. They have made themselves experts in the region and build their homes with local weather and climate conditions in mind. All of their homes are built to be energy efficient, stylish and functional. They offer everything from smaller affordable plans to stately semi-custom designs. At Great Southern Homes, we believe in quality built homes for today's growing families at affordable prices. Just as importantly, we understand the process of buying a new home includes a vocabulary of new terms and stressful decisions. This understanding sets us apart from the rest. After all, it's not only a new home, it's an important investment.
Take the next steps toward your new home
This listing's information was verified with the builder for accuracy 1 day ago
Luna II Plan by Great Southern Homes
saved to favorites!
To see all the homes you’ve saved, visit the My Favorites section of your account.
Discover More Great Communities
Select additional listings for more information
We're preparing your brochure
You're now connected with Great Southern Homes. We'll send you more info soon.
The brochure will download automatically when ready.
Brochure downloaded successfully
Your brochure has been saved. You're now connected with Great Southern Homes, and we've emailed you a copy for your convenience.
The brochure will download automatically when ready.
Way to Go!
You’re connected with Great Southern Homes.
The best way to find out more is to visit the community yourself!