Lone Star Landing
Medina
9912 Cavelier Canyon Court, Montgomery, TX, 77316
by M/I Homes
From $556,990 This is the starting price for this plan and is subject to change.
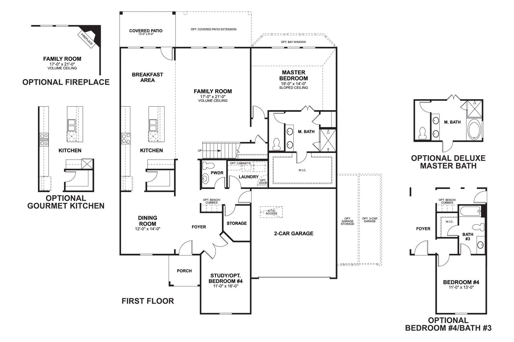
- 4 Beds
- 3.5 Baths
- 2 Car garage
- 3,127 Sq Ft
Overview
Floor plan features
- 1 Half Bathroom
- 2 Stories
- Primary Bed Downstairs
- Single Family
Floor plan description
Welcome to the Medina floorplan by M/I Homes. This beautiful, highly functional and spacious home plan offers 4 bedrooms, 3 full bathrooms, and a 2-car garage as standard, with the option to adapt up to 5 bedrooms, 4 bathrooms and a 3-car garage. In addition, as this plan starts at over 3,000 sqft.
Explore this home
Explore custom options for this floor plan.
Special offers
Explore the latest promotions at Lone Star Landing. to learn more!
Bright Days & Big Savings
Springtime savings are here! Take advantage of up to $100k off select homes†, free appliances**, and paid closing costs.*** Great rates available on homes that can close by May 29th. This offer runs through 05/15/2026.
Community highlights
Community amenities
Lake
Playground
Trails
About Lone Star Landing
Lone Star Landing in Montgomery offers a welcoming community of single family homes in a convenient location near I-45, providing easy access to Houston, The Woodlands, and the surrounding region. Thoughtfully designed floorplans from the Smart Series and Premier Collection offer a range of styles, from value-focused layouts to more spacious designs on larger homesites.Residents can enjoy a relaxed outdoor lifestyle with walking trails, a scenic pond, a playground, and a splash pad all woven into the neighborhood. Nearby destinations like Lake Conroe, Sam Houston National Forest, and The Woodlands add even more ways to explore, unwind, or enjoy a day out.Families will appreciate being part of Montgomery ISD, known for strong academics and supportive school communities. Lone Star Landing br...
Neighborhood
Community location & sales center
9912 Cavelier Canyon Court Montgomery, TX 77316
9912 Cavelier Canyon Court Montgomery, TX 77316
888-382-1107
From Downtown: Take I-45 N to exit 87A for FM2854. Turn right onto FM 2854 and drive for 8.6 miles. Turn left onto Johnson Road, then take a right into Lone Star Landing. Follow signs to the model home. If you passed Lone Star Elementary on your right, you've gone too far. From Magnolia, TX: Take a right on 1488 and pass under 249. Take a right exit to 149 N (right at stop sign over railroad tracks to continue on 149 N). Take a right on Keenan Cutoff (after gas station). Road forces you to u-curve to the left. Take a left on FM 2854 S. Pass Lone Star Elementary Hope Church (both are on the left-hand side). Take a left on Johnson Rd and cross over the railroad tracks. Take a right on Lone Star Landing and follow signs to the model home.
Amenities
Community & neighborhood
Local points of interest
- Splash Pad
- Lone Star College
- The Woodlands Mall
- The Woodlands Waterway
- The Woodlands Market Street
- Cynthia Woods Mitchell Pavilion
- Sam Houston National Forest
- The Woodlands Country Club
- Crighton Theatre
- River Plantation Golf Club
- Lake
Health and fitness
- Trails
Community services & perks
- Playground
Neighborhood amenities
Harvest Market
3.55 miles away
2295 Woodforest Pkwy N
Walmart Supercenter
5.13 miles away
18700 Highway 105 W
Kroger
6.19 miles away
20168 Eva St
H-E-B
6.67 miles away
7988 FM 1488 Rd
True Texas BBQ
6.67 miles away
7988 FM 1488 Rd
Woof Gang Bakery & Grooming
3.64 miles away
950 Pine Market Ave
KK Cheesecakes
4.16 miles away
138 Pronghorn Pl
Candyland Sweets
4.32 miles away
12621 Highway 105 W
Walmart Bakery
5.13 miles away
18700 Highway 105 W
Porky's Belly BBQ
1.01 miles away
15496 FM 2854 Rd
Denny's
3.14 miles away
15295 Highway 105 W
Wendy's
3.14 miles away
15295 Highway 105 W
Thai Wok in
3.15 miles away
15917 Highway 105 W
Taco Bell
3.16 miles away
15255 Highway 105 W
Sparkling Donuts
3.17 miles away
15885 Highway 105 W
Shipley Do-nuts
3.18 miles away
15243 Highway 105 W
Starbucks
3.25 miles away
15330 Highway 105 W
Main Squeeze Juice Co.
3.27 miles away
15260 Highway 105 W
Clean Juice
3.57 miles away
820 Pine Market Ave
Enchanting Children's Boutique
3.25 miles away
15320 Highway 105 W
Le Chateau Chic Boutique
4.20 miles away
110 Dewberry Pl
White Brick Boutique LLC
4.72 miles away
18445 Highway 105 W
Walmart Supercenter
5.13 miles away
18700 Highway 105 W
Elite Repeat
5.67 miles away
19786 Highway 105 W
Bar Lago
3.29 miles away
15250 Highway 105 W
Amore Fine Dining & Spirits
3.30 miles away
14860 Highway 105 W
Wister's Bar & Grill
3.64 miles away
950 Pine Market Ave
Boogie's Bar & Grill
5.28 miles away
17099 Walden Rd
Big Berthas Bar & Grill
5.35 miles away
12802 Walden Rd
Please note this information may vary. If you come across anything inaccurate, please contact us.
Builder details
M/I Homes

M/I Homes has been building new homes of outstanding quality and superior design for more than 50 years. Founded in 1976 by Irving and Melvin Schottenstein, and guided by Irving’s drive to always “treat the customer right,” we’ve fulfilled the dreams of more than 170,000 homeowners, and grown to become one of the nation’s leading homebuilders.
Take the next steps toward your new home
This listing's information was verified with the builder for accuracy 1 day ago
Medina Plan by M/I Homes
saved to favorites!
To see all the homes you’ve saved, visit the My Favorites section of your account.
Discover More Great Communities
Select additional listings for more information
We're preparing your brochure
You're now connected with M/I Homes. We'll send you more info soon.
The brochure will download automatically when ready.
Brochure downloaded successfully
Your brochure has been saved. You're now connected with M/I Homes, and we've emailed you a copy for your convenience.
The brochure will download automatically when ready.
Way to Go!
You’re connected with M/I Homes.
The best way to find out more is to visit the community yourself!