Manchester Plan
Ready to build
29181 Otley Ct NW, Harvest AL 35749
Home by Meritage Homes
Last updated 2 days ago
The Price Range displayed reflects the base price of the homes built in this community.
You get to select from the many different types of homes built by this Builder and personalize your New Home with options and upgrades.
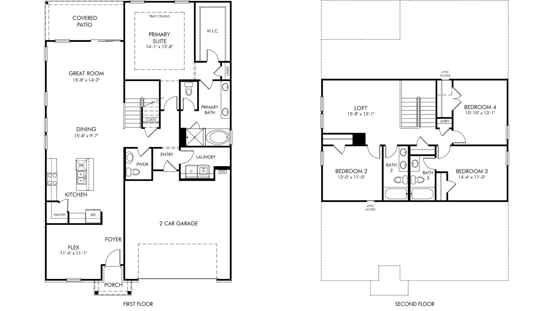
4 BR
1.5 BA
2 GR
2,448 SQ FT

Plan Diagram 1/1
Overview
2 Half Bathrooms
2 Stories
Green Construction
Single Family
Manchester Plan Info
Fire up the grill and head out to the Manchester's covered back deck. Inside, the open-concept living space is ideal for entertaining. Turn the main-level flex space into a study or work upstairs in the versatile loft.
Floor plan center
View floor plan details for this property.
- Floor Plans
- Exterior Images
- Interior Images
- Other Media
Neighborhood
Community location & sales center
29181 Otley Ct NW
Harvest, AL 35749
29181 Otley Ct NW
Harvest, AL 35749
888-906-7019
Type Heritage Estates at Creekside by Meritage Homes into Google Maps for best driving directions.
Schools near Heritage Estates at Creekside - Reserve Series
- Limestone County
- Madison County Schools
Actual schools may vary. Contact the builder for more information.
Amenities
Home details
Green program
Setting the standard for Energy Efficiency
Ready to build
Build the home of your dreams with the Manchester plan by selecting your favorite options. For the best selection, pick your lot in Heritage Estates at Creekside - Reserve Series today!
Community & neighborhood
Open the door to Life. Built. Better.® with an experienced homebuilder known for quality construction, designer-curated interiors, award-winning energy efficiency and a simplified buying process. Since 1985, Meritage Homes® has delivered more than 180,000 homes across Arizona, California, Colorado, Utah, Texas, Florida, Georgia, North Carolina, South Carolina and Tennessee. Take the next step toward your dream home and discover the Meritage difference.
Take the next steps toward your new home
Manchester Plan by Meritage Homes
saved to favorites!
To see all the homes you’ve saved, visit the My Favorites section of your account.
Discover More Great Communities
Select additional listings for more information
We're preparing your brochure
You're now connected with Meritage Homes. We'll send you more info soon.
The brochure will download automatically when ready.
Brochure downloaded successfully
Your brochure has been saved. You're now connected with Meritage Homes, and we've emailed you a copy for your convenience.
The brochure will download automatically when ready.
Way to Go!
You’re connected with Meritage Homes.
The best way to find out more is to visit the community yourself!