Manchester Plan
Ready to build
338 Collier Road, Mount Juliet TN 37122
Home by Meritage Homes
Last updated 1 day ago
The Price Range displayed reflects the base price of the homes built in this community.
You get to select from the many different types of homes built by this Builder and personalize your New Home with options and upgrades.
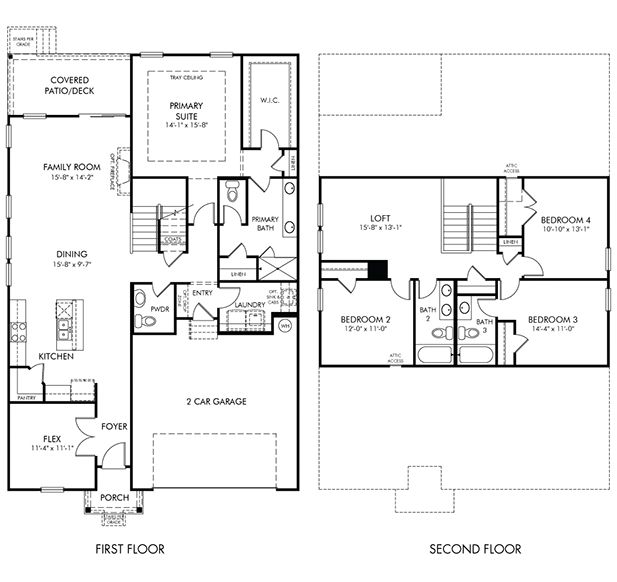
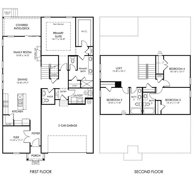
4 BR
3.5 BA
2 GR
2,448 SQ FT

Plan Diagram 1/1
Overview
1 Half Bathroom
2 Stories
Green Construction
Primary Bed Downstairs
Single Family
Manchester Plan Info
Fire up the grill and head out to the Manchester's covered back deck. Inside, the open-concept living space is ideal for entertaining. Turn the main-level flex space into a study or work upstairs in the versatile loft.
Floor plan center
View floor plan details for this property.
- Floor Plans
- Exterior Images
- Interior Images
- Other Media
Neighborhood
Community location & sales center
338 Collier Road
Mount Juliet, TN 37122
338 Collier Road
Mount Juliet, TN 37122
888-744-5675
FROM NASHVILLE: Het onto I-40E/I-65S. Keep left at the fork to continue onto I-40E, follow signs for I-24E/Knoxville/Chatanooga. Keep right to stay on I-40 E. Keep Left to stay on I-40 E follow signs for Interstate 40/Knoxville. Take Exit 229A for Beckworth Rd S. Turn Right onto Killkenny Way, then turn right on Collier Rd. Waltons Grove will be on the right.
Nearby schools
Wilson County Schools
Gladeville Middle School
Middle school. Grades 6 to 8.
Public school
Teacher - student ratio: 1:18
Students enrolled: 1008
615-444-3282
8275 Stewarts Ferry Pike, Mt. Juliet, TN, 37122
Actual schools may vary. We recommend verifying with the local school district, the school assignment and enrollment process.
Amenities
Home details
Green program
Setting the standard for Energy Efficiency
Ready to build
Build the home of your dreams with the Manchester plan by selecting your favorite options. For the best selection, pick your lot in Waltons Grove today!
Community & neighborhood
Local points of interest
- The Mall at Green Hills
- Providence Marketplace
- Northlake Village
- Charlie Daniels Park
- Opry Mills
- Stones River Bend Park
- SoundWaves at Gaylord Opryland
- Pine Creek Golf Course
- Percy Priest Lake
- Frist Art Museum
Neighborhood amenities
Suggs Creek General Store
1.70 miles away
4429 Stewarts Ferry Pike
Cook's Star Market
2.98 miles away
3251 S Mount Juliet Rd
Lacy's Market
3.70 miles away
2330 Couchville Pike
Publix
3.77 miles away
665 S Mount Juliet Rd
Kroger
4.01 miles away
401 S Mount Juliet Rd
GNC
4.01 miles away
401 S Mount Juliet Rd
Kroger Bakery
4.01 miles away
401 S Mount Juliet Rd
Nutrishop Mt Juliet
4.73 miles away
300 Pleasant Grove Rd
Walmart Bakery
4.73 miles away
300 Pleasant Grove Rd
Mama Turney's
5.30 miles away
155 Jones Rd
Subway
2.59 miles away
8702 Stewarts Ferry Pike
Glade Diner
2.85 miles away
8975 Stewarts Ferry Pike
Ziggy's Pizzaria
2.87 miles away
8995 Stewarts Ferry Pike
Deli Griffin Market
2.91 miles away
14280 Central Pike
Ziggy's Pizza
3.00 miles away
3193 S Mount Juliet Rd
Planet Smoothie
3.77 miles away
2014 Providence Pkwy
Just Love Coffee Cafe
3.80 miles away
63 Belinda Pkwy
Starbucks
3.81 miles away
621 S Mount Juliet Rd
Starbucks
4.01 miles away
401 S Mount Juliet Rd
Dunkin'
5.30 miles away
350 Thighway 109 N
525 Designs
2.86 miles away
8985 Stewarts Ferry Pike
Damivada LLC
3.22 miles away
327 Forest Bend Dr
Fleet Feet
3.84 miles away
630 S Mount Juliet Rd
American Eagle Outlet
4.01 miles away
401 S Mount Juliet Rd
Belk
4.01 miles away
401 S Mount Juliet Rd
Jonathan's Grille
3.75 miles away
613 S Mount Juliet Rd
Burger Republic
4.00 miles away
1982 Providence Pkwy
Buffalo Wild Wings
4.09 miles away
100 Adams Ln
LongHorn Steakhouse
4.50 miles away
355 Pleasant Grove Rd
Whitt's Barbecue
5.68 miles away
1767 N Mount Juliet Rd
Please note this information may vary. If you come across anything inaccurate, please contact us.
Open the door to Life. Built. Better.® with an experienced homebuilder known for quality construction, designer-curated interiors, award-winning energy efficiency and a simplified buying process. Since 1985, Meritage Homes® has delivered more than 180,000 homes across Arizona, California, Colorado, Utah, Texas, Florida, Georgia, North Carolina, South Carolina and Tennessee. Take the next step toward your dream home and discover the Meritage difference.
Take the next steps toward your new home
Manchester Plan by Meritage Homes
saved to favorites!
To see all the homes you’ve saved, visit the My Favorites section of your account.
Discover More Great Communities
Select additional listings for more information
We're preparing your brochure
You're now connected with Meritage Homes. We'll send you more info soon.
The brochure will download automatically when ready.
Brochure downloaded successfully
Your brochure has been saved. You're now connected with Meritage Homes, and we've emailed you a copy for your convenience.
The brochure will download automatically when ready.
Way to Go!
You’re connected with Meritage Homes.
The best way to find out more is to visit the community yourself!