Skip main navigation
Floor Plan A home design you can choose to customize and build in this community, on your choice of homesite. Ready to build

Mercer

1557 NE CLARK AVE, Battle Ground, WA, 98604

by LGI Homes 4.1 271 TrustBuilder reviews

From $624,900 This is the starting price for this plan and is subject to change.

  • 4 Beds
  • 2.5 Baths
  • 2 Car garage
  • 2,378 Sq Ft

    Overview

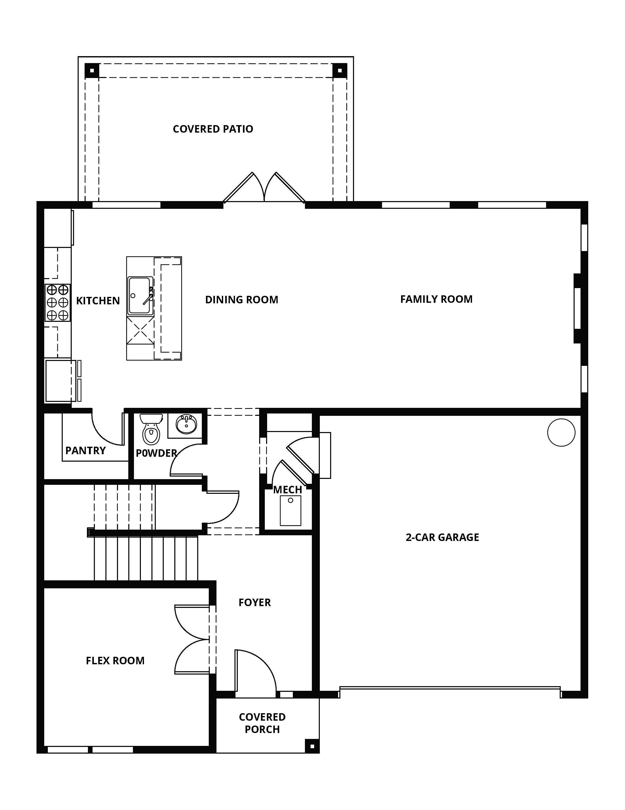
    Floor plan features

    • 1 Half Bathroom
    • 2 Stories
    • Dining Room
    • Family Room
    • Flex Room
    • Guest Room
    • Living Room
    • Patio
    • Porch
    • Primary Bed Upstairs
    • Single Family
    • Walk-In Closets

    Floor plan description

    If you’re looking for a spacious two-story home with room to grow, the Mercer by LGI Homes is a great fit. A charming covered porch welcomes you inside, where the foyer leads into a large, comfortable family room that flows into the open kitchen and dining area. At the front of the home, a flexible bonus room offers the perfect space for a home office, playroom, or workout area, giving you the freedom to make it your own. Cooking your favorite meals is a breeze in the Mercer floor plan. This spacious kitchen is designed with convenience in mind, all while delivering luxurious upgrades. With stainless steel Whirlpool® appliances, elegant quartz countertops, upgraded wood cabinetry and other modern finishes, whether you’re entertaining guests or preparing a weeknight dinner, you’ll love spen...

    If you’re looking for a spacious two-story home with room to grow, the Mercer by LGI Homes is a great fit. A charming covered porch welcomes you inside, where the foyer leads into a large, comfortable family room that flows into the open kitchen and dining area. At the front of the home, a flexible bonus room offers the perfect space for a home office, playroom, or workout area, giving you the freedom to make it your own. Cooking your favorite meals is a breeze in the Mercer floor plan. This spacious kitchen is designed with convenience in mind, all while delivering luxurious upgrades. With stainless steel Whirlpool® appliances, elegant quartz countertops, upgraded wood cabinetry and other modern finishes, whether you’re entertaining guests or preparing a weeknight dinner, you’ll love spending time in this beautiful chef-ready kitchen. Host with ease in your beautiful kitchen, inviting dining area, or spacious family room. Whether you’re planning backyard barbecues, celebrating birthdays, or gathering with loved ones, there’s plenty of room for it all. The family room is perfect for game nights, watching the big game, or cozy movie evenings. In the Mercer, you’ll have the space to make every moment count.


    Explore this home

    Explore custom options for this floor plan.


    Special offers

    Explore the latest promotions at Beverly. to learn more!

    Financing

    No Down Payment Required!

    LGI Homes offers brand-new homes for little to NO MONEY DOWN at select communities. Owning a new home has never been this easy or affordable. Visit LGIHomes.com to find you new home today!

    Reduced closing costs

    Builder Paid Closing Costs!

    Moving into your new LGI home just got easier and more affordable! LGI Homes will help pay your closing costs. That means you can own a home with little to no upfront costs. Visit LGIHomes.com to find your new home today!


    Community highlights

    Community amenities

    • Park

    • Playground

    • Trails

    • Views

    About Beverly

    Imagine living in a community where your family has access to world-class amenities, school is only a mile away, and you can live in the home of your dreams. Find all of that and more at Beverly! LGI Homes offers affordable, upgraded new-construction homes suited for your growing family to give you a space to create memories and celebrate all of life’s moments. Positioned right off of I-5 and I-205, right outside of Vancouver, you will love quick access to a plethora of shopping, dining, and employment opportunities. With a simple homebuying process and a team of highly trained experts, buying a home has never been easier than with one of the nation's top homebuilders, LGI Homes! This is truly a once-in-a-lifetime opportunity for new homebuyers in this area. More info about Beverly

    Have questions about the amenities?

    Get more details

    Your free brochure has been sent via email

    Request a tour

    Community location & sales center
    Mercer

    Beverly
    LGI Homes
    1557 NE CLARK AVE, Battle Ground, WA 98604

    888-801-2251

    Hours

    Open 7 Days a Week: Monday - Saturday: 8:30am - 7:00pm, Sunday: 11:00am - 7:00pm


    Neighborhood

    Community map

    Community location & sales center

    888-801-2251

    Please enter a valid location or select an item from the list.

    Schools near Beverly

    Battle Ground School District

    Public Elementary School

    GreatSchools
    rating
    GreatSchools rating: 7 out of 10

    Captain Strong Primary School

    Grades KG to 4

    360-885-6400

    1002 Nw 6th Ave, Battle Ground, WA, 98604


    Class ratio
    1:16

    Enrollment
    628

    Public Elementary-Middle School

    GreatSchools
    rating
    GreatSchools rating: 6 out of 10

    Chief Umtuch Middle School

    Grades 5 to 8

    360-885-6350

    700 Nw 9th St, Battle Ground, WA, 98604


    Class ratio
    1:17

    Enrollment
    553

    Public High School

    GreatSchools
    rating
    GreatSchools rating: 6 out of 10

    Battle Ground High School

    Grades 9 to 12

    360-885-6500

    400 W Main St, Battle Ground, WA, 98604


    Class ratio
    1:19

    Enrollment
    1798

    GreatSchools ratings are provided by GreatSchools.org and are for reference only. Ratings may not be available for all schools. Please verify school assignments and details with the local school district.


    Amenities

    Community & neighborhood

    Local points of interest

    • Oak Meadow Park
    • Battle Ground Minor
    • Kiwanis Park
    • Battle Ground Skate Park
    • McConnell Park
    • Battle Ground Community Library
    • Battle Ground Lake State Park
    • Alderbrook Park Event Center
    • Views

    Social activities

    • Barrel Mountain Brewing
    • Battle Ground Cinema
    • Clark County Fairgrounds
    • RV Inn Style Resorts Amphitheater

    Health and fitness

    • Safeway
    • Albertson's
    • Trails

    Community services & perks

    • Playground
    • Park

    Here at LGI Homes, we know that we're a new home builder that is different. Building homes with great value and great prices in excellent locations, such as Dallas-Fort Worth, Houston, San Antonio, Austin, Phoenix, Tucson, Albuquerque, Tampa, Orlando, Charlotte, Denver and Atlanta. In every one of our new home communities, we have assembled a team of dedicated home buying professionals who are ready and able to walk you through the home buying process, and help you find the perfect new home. Contact us now, and let us start you on your journey toward homeownership. You’ll be glad you did!



    This listing's information was verified with the builder for accuracy 2 days ago