Skip main navigation
Floor Plan A home design you can choose to customize and build in this community, on your choice of homesite. Ready to build

Meridian

3950 Club Ridge Estates, Zionsville, IN, 46077

by Fischer Homes

From $504,990 This is the starting price for this plan and is subject to change.

  • 2 Beds
  • 3 Baths
  • 2,157 Sq Ft

    Overview

    Floor plan features

    • 3 Stories
    • Primary Bed Downstairs
    • Townhome

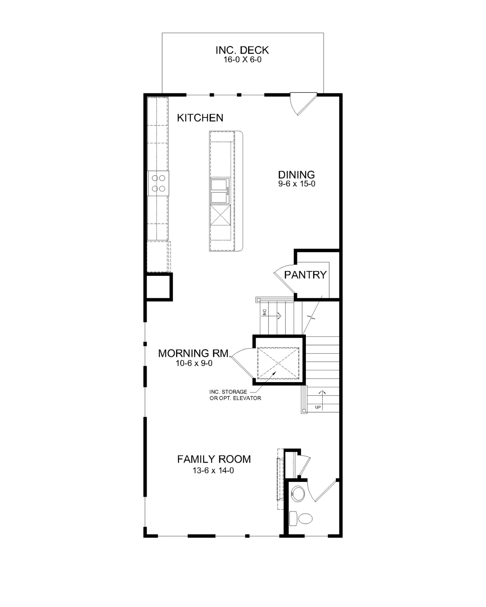
    Floor plan description

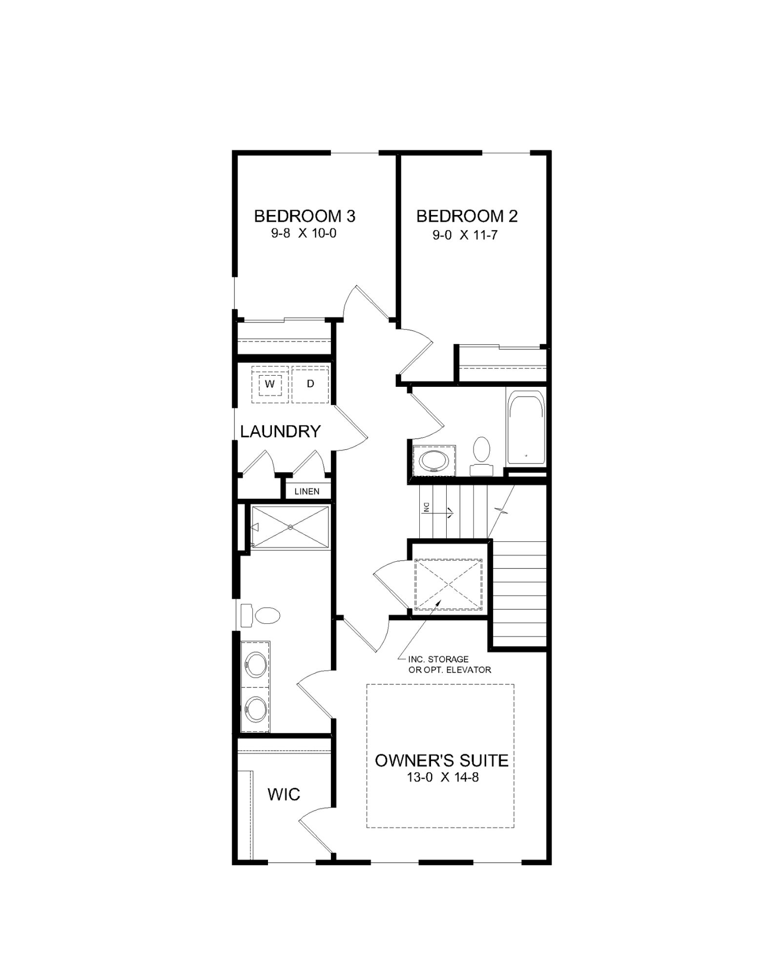
    The Meridian by Fischer Homes offers a sophisticated three-level townhome design with a rear-entry garage, blending functionality and style. The ground floor features an included finished recreation room, with options for a study or a guest suite with a full bath. On the main level, a centralized kitchen with a large pantry connects the flexible dining area to the family room, offering direct access to outdoor living space. Personalize this area by extending the kitchen to the outdoor space for seamless indoor-outdoor entertainment. The upper level is designed for comfort, featuring a private owner's suite with an en suite, two additional bedrooms, a full bath, and a conveniently located laundry room. Alternatively, opt for two owners suites, each with private en suites and walk-in closets...

    The Meridian by Fischer Homes offers a sophisticated three-level townhome design with a rear-entry garage, blending functionality and style. The ground floor features an included finished recreation room, with options for a study or a guest suite with a full bath. On the main level, a centralized kitchen with a large pantry connects the flexible dining area to the family room, offering direct access to outdoor living space. Personalize this area by extending the kitchen to the outdoor space for seamless indoor-outdoor entertainment. The upper level is designed for comfort, featuring a private owner's suite with an en suite, two additional bedrooms, a full bath, and a conveniently located laundry room. Alternatively, opt for two owners suites, each with private en suites and walk-in closets, to suit your lifestyle. The Meridian combines modern design with versatile living options for your ideal townhome experience.


    Explore this home

    Explore custom options for this floor plan.


    Special offers

    Explore the latest promotions at The Reserve at Holliday Farms. to learn more!

    Savings

    NOW SELLING!

    - Schedule your appointment today and lock in pre-construction pricing.


    Community highlights

    Community amenities

    • Club House

    • Golf Course

    • Playground

    • Pool

    • Tennis

    About The Reserve at Holliday Farms

    Now Selling in Zionsville, The Reserve at Holliday Farms is a luxury, low-maintenance townhome community set within the natural landscape of Holliday Farms. Designed for effortless living, these thoughtfully crafted homes allow residents to spend less time on upkeep and more time enjoying what matters—outdoor access, social connection, and everyday ease. Homeowners will receive a Sport and Social membership to The Club at Holliday Farms, offering access to dining, wellness, and community events. With nearby trails, parks, and the charm of downtown Zionsville just minutes away, The Reserve at Holliday Farms delivers a refined lifestyle in a setting that feels both intentional and relaxed. More info about The Reserve at Holliday Farms

    Green program

    Energywise

    More Info

    Have questions about the amenities?

    Get more details

    Your free brochure has been sent via email

    Request a tour

    Home location

    3950 Club Ridge Estates, Westfield, IN 46074

    Sales office location
    Meridian

    The Reserve at Holliday Farms
    Fischer Homes
    388 Elite St, Westfield, IN 46074

    888-989-5505


    Neighborhood

    Community map

    Community location

    888-989-5505

    Please enter a valid location or select an item from the list.
    Driving directions to sales center

    Amenities

    Community & neighborhood

    Social activities

    • Club House

    Health and fitness

    • Golf Course
    • Tennis
    • Pool

    Community services & perks

    • Playground

    Builder details

    Fischer Homes

    Fischer Homes Logo

    Recognized by Builder Magazine as the 31st largest home builder in the U.S., Fischer Homes is one of the most reputable new home builders in the Midwestern and Southeastern states. The company was founded in 1980 in Northern Kentucky by Henry and Elaine Fischer with the philosophy of "Promise only what you can deliver and deliver what you promise," and have been building quality homes ever since. Over the past 40 years, privately-owned Fischer Homes has proudly built over 40,000 homes and has maintained a 98% customer satisfaction rating, one of the highest in the industry. They have partnered with nationally known architects to bring fresh and innovative styles to their extensive portfolio of new home designs. Headquartered in Erlanger, Kentucky, Fischer Homes builds new homes in communities throughout Atlanta, Cincinnati, Columbus, Dayton, Indianapolis, Louisville, Northern Kentucky, North Carolina, Northwest Florida, and St. Louis. Their collections of single-family, condominiums, and patio homes offer choices for people in all stages of life and range in price from the $130s to $1 million+. They are also an ENERGYSTAR certified partner and a proud builder of three St. Jude Dream Homes every year. To find a community or a new home near you, visit fischerhomes.com or follow on social media.



    This listing's information was verified with the builder for accuracy 2 days ago