Montague II Plan
Ready to build
20210 Allen Crest Road, Blythewood SC 29016
Home by Great Southern Homes

Last updated 18 hours ago
The Price Range displayed reflects the base price of the homes built in this community.
You get to select from the many different types of homes built by this Builder and personalize your New Home with options and upgrades.
3 BR
3 BA
2 GR
2,376 SQ FT

Elevation B 1/7
Special offers
Explore the latest promotions at Blythewood Farms. Contact Great Southern Homes to learn more!
3.99% Rate
Build Jobs With Mad Money
Overview
2 Car Garage
2 Stories
2376 Sq Ft
3 Bathrooms
3 Bedrooms
Primary Bed Downstairs
Single Family
Montague II Plan Info
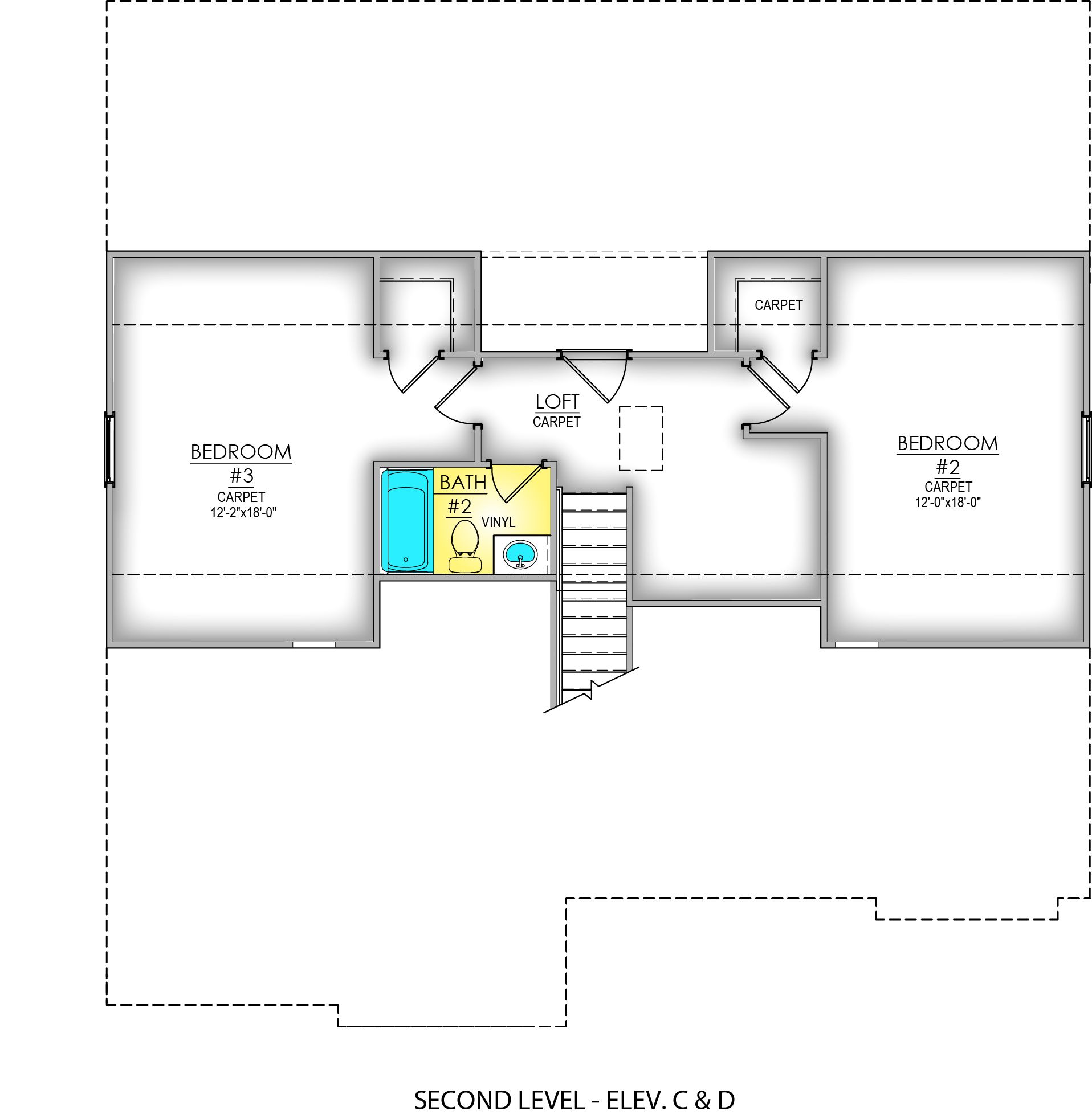
The Montague II by Great Southern Homes is a beautifully designed two-story home offering approximately 2,376 square feet of smart, functional living space. Featuring 3 bedrooms and 3 full baths, this plan combines open-concept design with private, comfortable spaces ideal for family life or entertaining. The main level showcases a spacious living area that flows seamlessly into the dining space and gourmet kitchen, creating a bright and inviting environment. The kitchen includes a large island, walk-in pantry, and an optional deluxe kitchen upgrade with enhanced cabinetry and appliances. A private office or flex room sits conveniently off the foyer, perfect for remote work or quiet reading. The luxurious owner’s suite, located on the main level, features a walk-in closet and a spa-inspired bath with dual sinks, soaking tub, and an optional tiled shower. Upstairs, the Montague II offers two additional bedrooms, a full bath, and an open loft area that provides extra living or recreational space. Optional features include a gas or electric fireplace with custom cabinetry, covered or screened patio, tile shower, and laundry room cabinetry. Designed with energy-efficient construction and Great Southern Homes’ signature Smart Home features, The Montague II delivers comfort, flexibility, and timeless curb appeal—making it an ideal choice for homeowners who appreciate style, practicality, and well-crafted living spaces.
Floor plan center
View floor plan details for this property.
- Floor Plans
- Exterior Images
- Interior Images
- Other Media
Neighborhood
Community location & sales center
20210 Allen Crest Road
Blythewood, SC 29016
20210 Allen Crest Road
Blythewood, SC 29016
888-320-5883
Take I-77 North leaving Columbia, Take Exit 27 and take a right onto Blythewood Road, Take a right onto Main Street, Then take an immediate right onto Langford Road (State Rd S-40-54) Take a right onto Blue Grace Road to enter Blythewood Farms.
Nearby schools
Richland 02 School District
Elementary school. Grades PK to 5.
- Public school
- Teacher - student ratio: 1:14
- Students enrolled: 759
125 Boney Rd, Blythewood, SC, 29016
803-691-6880
Middle school. Grades 6 to 8.
- Public school
- Teacher - student ratio: 1:17
- Students enrolled: 1246
1031 Muller Rd, Blythewood, SC, 29016
803-691-6851
High school. Grades 9 to 12.
- Public school
- Teacher - student ratio: 1:15
- Students enrolled: 2094
10901 Wilson Blvd, Blythewood, SC, 29016
803-691-4090
Actual schools may vary. We recommend verifying with the local school district, the school assignment and enrollment process.
Amenities
Home details
Green program
LIVE GREEN. LIVE SMART.
Ready to build
Build the home of your dreams with the Montague II plan by selecting your favorite options. For the best selection, pick your lot in Blythewood Farms today!
Community & neighborhood
Health and fitness
- Pool
Community services & perks
- HOA fees: Unknown, please contact the builder
Neighborhood amenities
Blythewood IGA
0.21 mile away
135 Blythewood Rd
Food Lion
0.72 mile away
740 University Village Dr
Kroger Marketplace
5.08 miles away
1028 Roberts Branch Pkwy
ALDI
5.27 miles away
1240 Longreen Pkwy
Walmart Supercenter
5.28 miles away
321 Killian Rd
Vintage Bakery LLC
2.40 miles away
409 Ruddy Duck Ct
Southern Belle Bakery LLC
3.83 miles away
333 Westmoreland Rd
Walmart Bakery
5.28 miles away
321 Killian Rd
GNC
5.47 miles away
4611 Hard Scrabble Rd
Blythewood Wings & Pub
0.11 mile away
240 Blythewood Rd
Carolina Wings & Rib House
0.11 mile away
240 Blythewood Rd
Dunkin'
0.11 mile away
235 Blythewood Rd
McDonald's
0.11 mile away
250 Blythewood Rd
Subway
0.11 mile away
432 McNulty St
Dunkin'
0.11 mile away
235 Blythewood Rd
Fac Blythewood LLC
0.11 mile away
235 Blythewood Rd
Bloomin Bean Coffee Bar
0.33 mile away
412 McNulty St
Starbucks
5.08 miles away
1028 Roberts Branch Pkwy
Ladybry Fashions LLC
3.10 miles away
34 Deer Stream Ct
Petty Kid's Clothing LLC
3.36 miles away
301 Stimson Ln
Family Dollar
5.05 miles away
4798 Hard Scrabble Rd
Walmart Supercenter
5.28 miles away
321 Killian Rd
Cato Fashions
5.55 miles away
327 Killian Rd
Applebee's Grill + Bar
5.32 miles away
437 Killian Rd
Beef'O'Brady's
5.64 miles away
4561 Hard Scrabble Rd
Lite Um Up Cigars Lounge
5.90 miles away
4435 Hard Scrabble Rd
Seven Sports Bar
6.14 miles away
2000 Clemson Rd
Smoke N Puffz By Taeb
6.92 miles away
Spears Creek Ct
Please note this information may vary. If you come across anything inaccurate, please contact us.
Great Southern Homes has been building homes in South Carolina since 1993. They have made themselves experts in the region and build their homes with local weather and climate conditions in mind. All of their homes are built to be energy efficient, stylish and functional. They offer everything from smaller affordable plans to stately semi-custom designs. At Great Southern Homes, we believe in quality built homes for today's growing families at affordable prices. Just as importantly, we understand the process of buying a new home includes a vocabulary of new terms and stressful decisions. This understanding sets us apart from the rest. After all, it's not only a new home, it's an important investment.
Take the next steps toward your new home
Montague II Plan by Great Southern Homes
saved to favorites!
To see all the homes you’ve saved, visit the My Favorites section of your account.
Discover More Great Communities
Select additional listings for more information
We're preparing your brochure
You're now connected with Great Southern Homes. We'll send you more info soon.
The brochure will download automatically when ready.
Brochure downloaded successfully
Your brochure has been saved. You're now connected with Great Southern Homes, and we've emailed you a copy for your convenience.
The brochure will download automatically when ready.
Way to Go!
You’re connected with Great Southern Homes.
The best way to find out more is to visit the community yourself!