Neuville Plan
Ready to build
609 Meadows Ct, Polk City IA 50226
Home by D.R. Horton
Last updated 1 day ago
The Price Range displayed reflects the base price of the homes built in this community.
You get to select from the many different types of homes built by this Builder and personalize your New Home with options and upgrades.
3 BR
2 BA
3 GR
1,635 SQ FT
Claim this listing to update information, get access to exclusive tools and more!

Floorplan 0 1/3
Overview
1 Story
1635 Sq Ft
2 Bathrooms
3 Bedrooms
3 Car Garage
Single Family
Neuville Plan Info
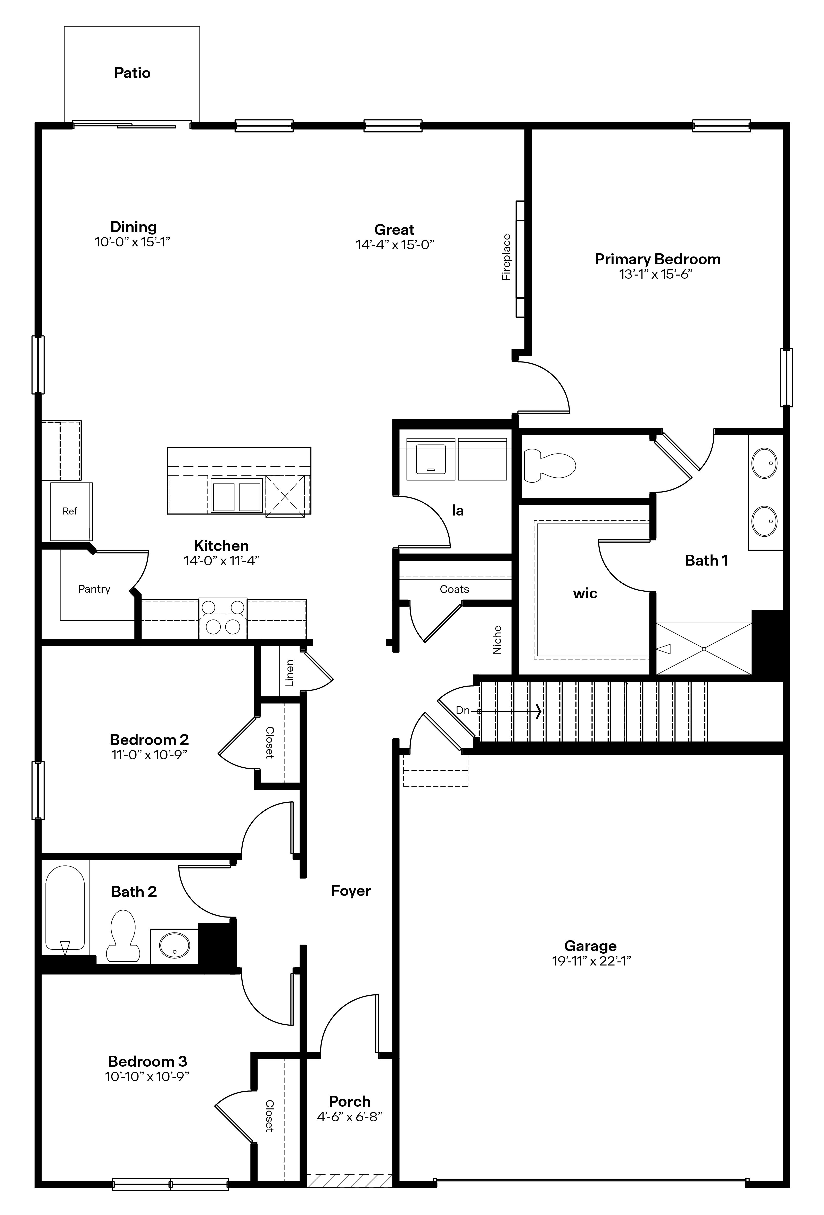
Welcome home to the Neuville floor plan at Creekview Estates in Polk City IA. This 4 bedroom, 3 bathroom ranch offers 2,511 sq. ft. of thoughtfully designed living space with an open-concept kitchen overlooking the living and dining areas and back patio. The living room features 9-ft ceilings, an electric fireplace and large windows that fill the home with natural light. The kitchen includes white cabinetry, quartz countertops, stainless steel appliances, subway tile backsplash, a large island, and a corner pantry for ample storage. The primary suite at the rear of the home offers a private bathroom with double vanity, ceramic-tiled walk-in shower, and walk-in closet, while two additional bedrooms share a second bathroom at the front of the home. Carpeted floors and sizable closets provide comfort and flexibility for bedrooms, offices, or bonus spaces. A convenient laundry room with shelving and a 3 car garage complete this home. The finished lower level boasts a spacious rec. Adjacent to the rec room is the fourth bedroom and an additional bathroom. Discover the Neuville floor plan and make it your new home at Creekview Estates.
Floor plan center
View floor plan details for this property.
- Floor Plans
- Exterior Images
- Interior Images
- Other Media
Neighborhood
Community location & sales center
609 Meadows Ct
Polk City, IA 50226
609 Meadows Ct
Polk City, IA 50226
888-790-3488
Schools near Creekview Estates
- North Polk Community School District
Actual schools may vary. Contact the builder for more information.
Amenities
Home details
Ready to build
Build the home of your dreams with the Neuville plan by selecting your favorite options. For the best selection, pick your lot in Creekview Estates today!
Neighborhood amenities
Fareway
1.60 miles away
1101 S 5th St
Fareway
6.27 miles away
3205 N Ankeny Blvd
Midwest Foods Group
6.39 miles away
1802 N Ankeny Blvd
ALDI
6.46 miles away
2075 N Ankeny Blvd
Town & Country Market
6.48 miles away
308 Main St
Cake Creations By Alexis
1.23 miles away
208 W Grimes St
Sweet to Eat Bakery & Cake Shop
6.39 miles away
1802 N Ankeny Blvd
GNC
7.47 miles away
250 SE Destination Dr
Walmart Bakery
7.59 miles away
2150 E 1st St
The Reising Sun Cafe
1.09 miles away
107 N 2nd St
Papa's Pizzeria
1.10 miles away
214 W Van Dorn St
Watersedge Bar & Grill
1.10 miles away
103 E Broadway St
Papas Pizzeria
1.19 miles away
213 E Van Dorn St
Subway
1.53 miles away
407 W Bridge Rd
Scooter's Coffeehouse
1.57 miles away
605 W Bridge Rd
Thrive Nutrition
5.67 miles away
1370 NW 18th St
Ambrosia Donuts LLC
6.07 miles away
106 SW State St
Dunkin'
6.49 miles away
1620 N Ankeny Blvd
Tropical Smoothie Cafe
6.49 miles away
1620 N Ankeny Blvd
The Bridal Connection
6.73 miles away
708 N Ankeny Blvd
Mainstream Boutique
7.07 miles away
1450 SW Vintage Pkwy
Purple Poppy Boutique
7.13 miles away
1615 SW Main St
Style Bar Boutique
7.13 miles away
1631 SW Main St
Walmart Supercenter
7.59 miles away
2150 E 1st St
Watersedge Bar & Grill
1.10 miles away
103 E Broadway St
Bud's Pub
3.23 miles away
1912 Main St
Good Times
5.98 miles away
1912 SW 3rd St
Boat House
6.20 miles away
7695 NW Beaver Dr
Nite Hawk Bar & Grill
6.48 miles away
105 Greene St
Please note this information may vary. If you come across anything inaccurate, please contact us.
Builder details
D.R. Horton
In 1978, D.R. Horton broke ground on our first home in Fort Worth, Texas. Since that day, the company has defined its success not by bricks and mortar, but by the satisfaction of the families that make our houses their homes. Our foundation is a single, guiding principle: a value-first dedication to the individual needs of each and every one of our nation’s homebuyers.
From first-time homebuyers to empty nesters, our family of brands provides a home for every stage in life. Our highly-trained, market experts are where you want to live, from New Jersey to Hawaii, providing unique, personalized services tailored to your individual needs. But the real value comes from the quality construction we put into every home, and the peace of mind that comes with a premium-backed warranty from America’s Number One Homebuilder.
We’ve come a long way, and while more people choose our family of brands over any other builder in the country, we never forget the most important thing of all – the families that choose us for their place to call home.
So continue to live out those dreams, America, and know we’ll be here for you every step of the way.
More new homes in Polk City, Iowa
Neuville Plan by D.R. Horton
saved to favorites!
To see all the homes you’ve saved, visit the My Favorites section of your account.
Discover More Great Communities
Select additional listings for more information
Way to Go!
An agent will be in contact soon!
