Northbrook Plan
Ready to build
29175 Satilla Circle, Madison AL 35756
Home by Meritage Homes
Last updated 3 days ago
The Price Range displayed reflects the base price of the homes built in this community.
You get to select from the many different types of homes built by this Builder and personalize your New Home with options and upgrades.
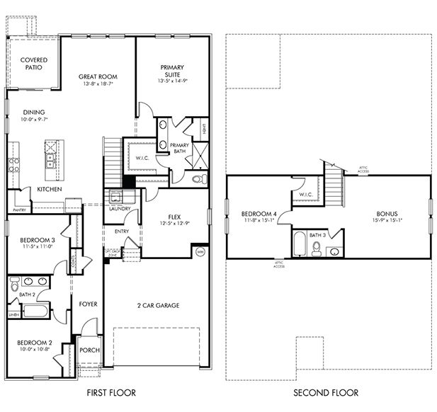
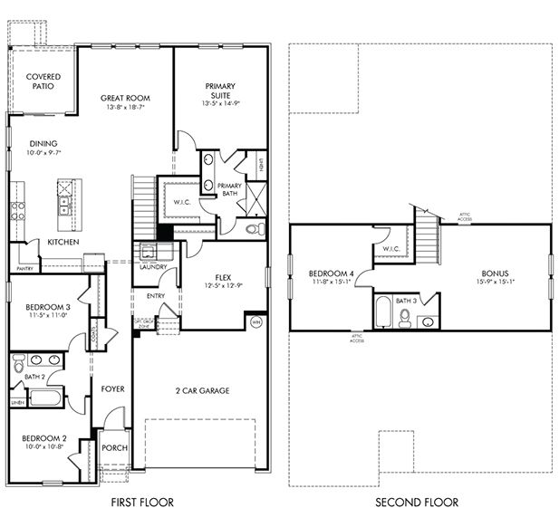
4 BR
3 BA
2 GR
2,412 SQ FT

Plan Diagram 1/1
Overview
2 Stories
Green Construction
Primary Bed Upstairs
Single Family
Northbrook Plan Info
Create an office or rec room in the Northbrook's upstairs bonus room. On the main level, the kitchen is the heart of the open-concept living space. Dual sinks and a large walk-in closet complement the primary suite.
Floor plan center
View floor plan details for this property.
- Floor Plans
- Exterior Images
- Interior Images
- Other Media
Neighborhood
Community location & sales center
29175 Satilla Circle
Madison, AL 35756
29175 Satilla Circle
Madison, AL 35756
888-292-8513
From Huntsville International Airport; Head southwest on Glenn Hearn Blvd SW then turn left onto Madison Blvd. Turn right onto Country Line Rd then left onto Old Hwy 20, Madison Preserve will be on your right.
Schools near Madison Preserve - The Estate Series
- Madison City Schools
Actual schools may vary. Contact the builder for more information.
Amenities
Home details
Green program
Setting the standard for Energy Efficiency
Ready to build
Build the home of your dreams with the Northbrook plan by selecting your favorite options. For the best selection, pick your lot in Madison Preserve - The Estate Series today!
Community & neighborhood
Local points of interest
- The Sage Grille
- Valley Bend
- Blue Plate Cafe
- Metro Diner
- Parkway Place
- Big Whiskey's American Restaurant & Bar
- Homestead Park
- Big Spring Cafe
- The Ledges
- Kent Robertson Park
Neighborhood amenities
Kroger
3.08 miles away
8855 Highway 72 W
Sprouts Farmers Market
3.08 miles away
7504 Lee Hwy
Thanh Hung
3.35 miles away
8760 Madison Blvd
Walmart Supercenter
3.70 miles away
8650 Madison Blvd
Kroger
4.08 miles away
4579 Wall Triana Hwy
Walmart Bakery
3.70 miles away
8650 Madison Blvd
GNC
5.10 miles away
8000 Madison Blvd
PJ's Grill LLC
0.96 mile away
8540 Bloodworth Dr
Asian City
1.40 miles away
128 Brockton Dr
Little Caesars
1.72 miles away
10878 County Line Rd
Hunt Brothers Pizza
1.77 miles away
820 Palmer Rd
Dunkin'
3.08 miles away
11212 County Line Rd
PJ's Coffee
3.08 miles away
243 Browns Ferry Rd
Starbucks
3.08 miles away
8855 Highway 72 W
Starbucks
4.08 miles away
4579 Wall Triana Hwy
Mad City LLC
4.23 miles away
12090 County Line Rd
Cee Style LLC
2.97 miles away
3408 Wall Triana Hwy
Duluth Trading Co
3.08 miles away
231 Graphics Dr
Duluth Trading Co
3.34 miles away
100 Angry Beaver Way
Kathleen's Bridal
3.41 miles away
14 Main St
Walmart Supercenter
3.70 miles away
8650 Madison Blvd
Stem & Stein
1.75 miles away
10871 County Line Rd
Wild Bills Sports & Bar Grills
2.64 miles away
9076 Madison Blvd
Cd's Pub & Grill
2.73 miles away
107 Arlington Dr
Port of Madison
2.78 miles away
9035 Madison Blvd
Fresh Traditions
3.08 miles away
9035 Madison BLVD Best Western
Please note this information may vary. If you come across anything inaccurate, please contact us.
Open the door to Life. Built. Better.® with an experienced homebuilder known for quality construction, designer-curated interiors, award-winning energy efficiency and a simplified buying process. Since 1985, Meritage Homes® has delivered more than 180,000 homes across Arizona, California, Colorado, Utah, Texas, Florida, Georgia, North Carolina, South Carolina and Tennessee. Take the next step toward your dream home and discover the Meritage difference.
Take the next steps toward your new home
Northbrook Plan by Meritage Homes
saved to favorites!
To see all the homes you’ve saved, visit the My Favorites section of your account.
Discover More Great Communities
Select additional listings for more information
We're preparing your brochure
You're now connected with Meritage Homes. We'll send you more info soon.
The brochure will download automatically when ready.
Brochure downloaded successfully
Your brochure has been saved. You're now connected with Meritage Homes, and we've emailed you a copy for your convenience.
The brochure will download automatically when ready.
Way to Go!
You’re connected with Meritage Homes.
The best way to find out more is to visit the community yourself!