Skip main navigation
Floor Plan A home design you can choose to customize and build in this community, on your choice of homesite. Ready to build

Paisley

401 Country Lane, Clayton, NC, 27520

by Meritage Homes

From $406,000 This is the starting price for this plan and is subject to change.

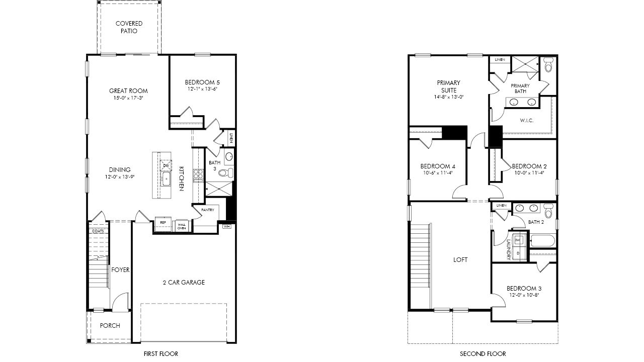
  • 5 Beds
  • 3 Baths
  • 2 Car garage
  • 2,352 Sq Ft

    Overview

    Floor plan features

    • 2 Stories
    • Green Construction
    • Single Family

    Floor plan description

    Host your next gathering in the open-concept kitchen and living area. With five bedrooms, there's plenty of room to spread out. Personalize the second-story loft to meet your needs. Dual sinks and a large closet complement the primary suite.


    Explore this home

    Explore custom options for this floor plan.


    Special offers

    Explore the latest promotions at Country Lane - Classic Series. to learn more!

    Financing

    A Place to Plant Your Future

    We are expanding with more new communities than ever, so you have more opportunities to put down roots. Receive rates as low as a 3/2/1 buydown rate starting at 1.99% (5.752% APR) and up to $5,000 in closing cost credit on select homes. This offer runs through 05/01/2026.


    Community highlights

    Community amenities

    • Club House

    About Country Lane - Classic Series

    Located near downtown Clayton, Country Lane offers a series of two-story homes with open-concept layouts and engineered with energy-efficient features. The planned community pool, clubhouse, tot lot and fire pit elevate the lifestyle within the community while gourmet kitchens and covered patios enhance living inside the home. Quick access to the I-540 and I-40 interchange keeps Raleigh, RTP and the rest of the Triangle within easy reach. More info about Country Lane - Classic Series

    Green program

    Setting the standard for Energy Efficiency

    More Info

    Have questions about the amenities?

    Get more details

    Your free brochure has been sent via email

    Request a tour

    Community location & sales center
    Paisley

    Country Lane - Classic Series
    Meritage Homes
    401 Country Lane, Clayton, NC 27520

    984-338-3228

    Contact Builder

    Hours

    Mon-Sun Appt Only;


    Neighborhood

    Community map

    Community location & sales center

    984-338-3228

    Contact Builder

    Please enter a valid location or select an item from the list.

    Amenities

    Community & neighborhood

    Social activities

    • Club House

    Builder details

    Meritage Homes

    Meritage Homes Logo

    Open the door to Life. Built. Better.® with an experienced homebuilder known for quality construction, designer-curated interiors, award-winning energy efficiency and a simplified buying process. Since 1985, Meritage Homes® has delivered more than 180,000 homes across Arizona, California, Colorado, Utah, Texas, Florida, Georgia, North Carolina, South Carolina and Tennessee. Take the next step toward your dream home and discover the Meritage difference.



    This listing's information was verified with the builder for accuracy 12 hours ago