Pamlico Plan
Ready to build
130 Midtown Rows Way GPS 313 Railroad Street, Fuquay Varina NC 27526
Home by Caruso Homes
at Midtown Rows

Last updated 1 day ago
The Price Range displayed reflects the base price of the homes built in this community.
You get to select from the many different types of homes built by this Builder and personalize your New Home with options and upgrades.
3 BR
2.5 BA
2 GR
1,982 SQ FT

Exterior 1/36
Overview
1 Half Bathroom
3 Stories
Fireplaces
Play Room
Primary Bed Upstairs
Townhome
Vaulted Ceiling
Walk-In Closets
Pamlico Plan Info
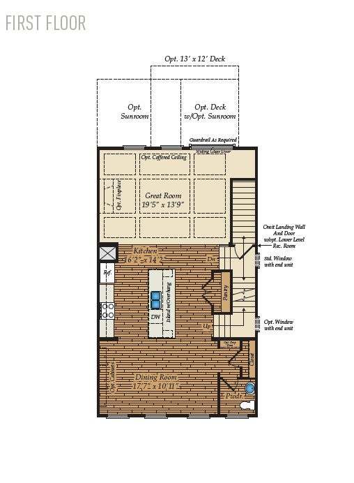
Pamlico is our two-garage townhome, available at Midtown Rows! This plan contains 3 stories and up to 2,791 square feet of living space. The lower level contains the garage and unfinished storage area with which can be changed to an alternative room. Choose from a recreation room including a powder room, or an additional finished bedroom with a full bath. On the first level, our open, flowing floor plan connects the great room, the kitchen, and the dining room. In the kitchen, you can expect to find stainless steel Whirlpool appliances, a large center island, and optional kitchen backsplash. The great room, which can be upgraded with a fireplace or coffered ceiling, gives way to the large outdoor deck. Upgrade your space even further with the addition of a sunroom. Upstairs, the Owner’s Suite comes equipped with a spacious walk-in closet and owner’s bath, which include a shower, a double sink, and a linen closet. Looking for more room? Opt in to extend the suite, increasing the room of the walk-in-closet, or replace the traditional bath with a luxurious spa bath. The spa bath includes a walk-in shower, a double sink, free standing tub, or two separate vanities- plenty of room for personalization! Upstairs also includes two additional bedrooms, a full bathroom, and a laundry room. Choose from a variety of options to make this home your own! For a first person look into the Pamlico model, click here to watch our video tour.
Floor plan center
View floor plan details for this property.
- Floor Plans
- Exterior Images
- Interior Images
- Other Media
Explore custom options for this floor plan.
- Choose Option
- Include Features
Neighborhood
Community location & sales center
130 Midtown Rows Way GPS 313 Railroad Street
Fuquay Varina, NC 27526
130 Midtown Rows Way GPS 313 Railroad Street
Fuquay Varina, NC 27526
888-860-2973
Nearby schools
Wake County Schools
Fuquay-varina Elementary School
Elementary school. Grades KG to 5.
Public school
Teacher - student ratio: 1:14
Students enrolled: 631
919-557-2566
6600 Johnson Pond Rd, Fuquay Varina, NC, 27526
Fuquay-varina Middle School
Middle school. Grades 6 to 8.
Public school
Teacher - student ratio: 1:17
Students enrolled: 1164
919-557-2727
109 N Ennis St, Fuquay Varina, NC, 27526
Fuquay-varina High School
High school. Grades 9 to 12.
Public school
Teacher - student ratio: 1:18
Students enrolled: 1940
919-557-2511
201 Bengal Dr, Fuquay Varina, NC, 27526
GreatSchools ratings are provided by GreatSchools.org and are for reference only. Ratings may not be available for all schools. Please verify school assignments and details with the local school district.
Amenities
Home details
Ready to build
Build the home of your dreams with the Pamlico plan by selecting your favorite options. For the best selection, pick your lot in Midtown Rows today!
Community & neighborhood
At the heart of every Caruso Home is our "We Care" attitude - a commitment to uncompromising quality and exceptional customer service. We believe that every homebuyer is different and, as such, deserves a home built to suit their needs.
We began modestly enough in 1986, building custom homes for people unwilling to settle for standard. Since then, discerning homebuyers throughout Maryland, Delaware, Pennsylvania and North Carolina have counted on us to provide them with superior quality of craftsmanship in new home construction and design.
As we plan for future growth, we will continue our commitment to excellence by staying on top of industry trends and technology, building homes that exceed industry standards for construction and energy efficiency.
Take the next steps toward your new home
Pamlico Plan by Caruso Homes
saved to favorites!
To see all the homes you’ve saved, visit the My Favorites section of your account.
Discover More Great Communities
Select additional listings for more information
We're preparing your brochure
You're now connected with Caruso Homes. We'll send you more info soon.
The brochure will download automatically when ready.
Brochure downloaded successfully
Your brochure has been saved. You're now connected with Caruso Homes, and we've emailed you a copy for your convenience.
The brochure will download automatically when ready.
Way to Go!
You’re connected with Caruso Homes.
The best way to find out more is to visit the community yourself!