Pamlico Plan
Ready to build
8439 Bramble Berry Lane, Ooltewah TN 37363
Home by D.R. Horton
at Sweet Briar
Last updated 2 days ago
The Price Range displayed reflects the base price of the homes built in this community.
You get to select from the many different types of homes built by this Builder and personalize your New Home with options and upgrades.
5 BR
3.5 BA
3 GR
4,109 SQ FT
Claim this listing to update information, get access to exclusive tools and more!

Floorplan 0 1/1
Overview
1 Half Bathroom
2 Stories
3 Bathrooms
3 Car Garage
4109 Sq Ft
5 Bedrooms
Single Family
Pamlico Plan Info
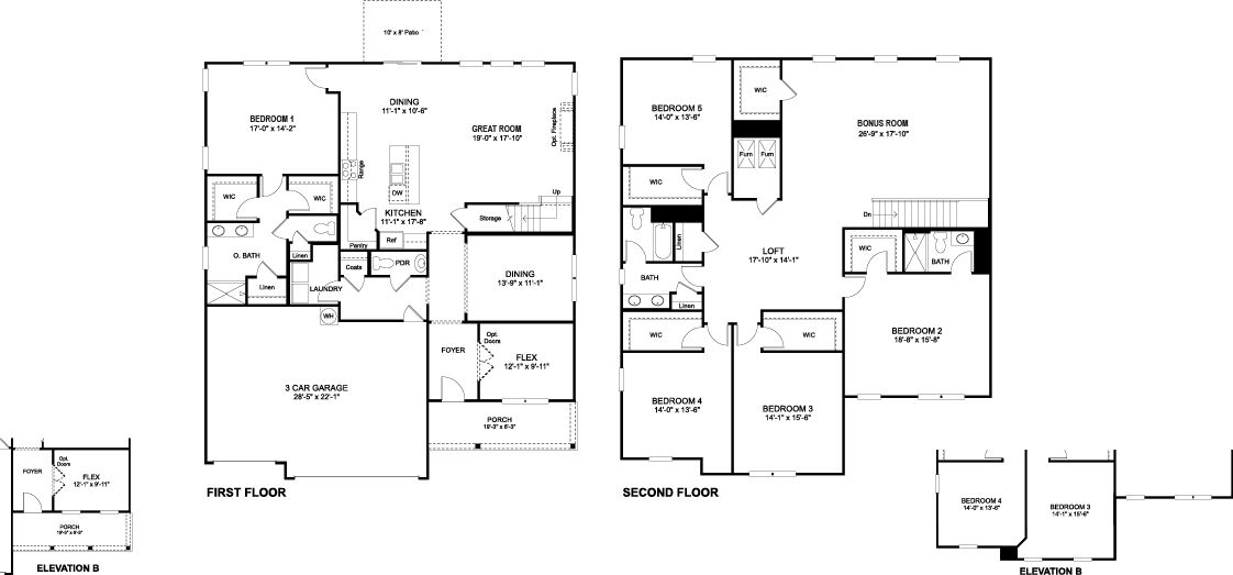
Welcome to the Pamlico, a spacious floor plan by D.R. Horton. This gorgeous home boasts a flex room and designated dining space as you enter through the foyer. On the main level, you'll also find a powder room and laundry area, as well as a large primary suite with two private walk-in closets and a luxurious bathroom. The open concept kitchen and living area provide ample space for everyone, with an island and countertop seating, a breakfast nook, and a spacious pantry. Upstairs, you'll find another primary suite, a bonus area, three additional bedrooms, and another full bathroom. This expansive home is perfect for living, working, and entertaining. D.R. Horton is an Equal Housing Opportunity Builder. Home and community information, including pricing, included features, terms, availability and amenities, are subject to change and prior sale at any time without notice or obligation. Pictures, photographs, colors, features, and sizes are for illustration purposes only and will vary from the homes as built. Images may contain virtual staging.
Floor plan center
View floor plan details for this property.
- Floor Plans
- Exterior Images
- Interior Images
- Other Media
Neighborhood
Community location & sales center
8439 Bramble Berry Lane
Ooltewah, TN 37363
8439 Bramble Berry Lane
Ooltewah, TN 37363
888-790-3488
Schools near Sweet Briar
- Hamilton County Schools
- Ooltewah Elementary School
- Snow Hill Elementary School
- Hunter Middle School
- Ooltewah High School
Actual schools may vary. Contact the builder for more information.
Amenities
Home details
Ready to build
Build the home of your dreams with the Pamlico plan by selecting your favorite options. For the best selection, pick your lot in Sweet Briar today!
Nearby schools
Hamilton County Schools
Elementary school. Grades PK to 5.
- Public school
- Teacher - student ratio: 1:16
- Students enrolled: 874
8890 Snowy Owl Rd, Ooltewah, TN, 37363
423-498-6900
Elementary school. Grades PK to 5.
- Public school
- Teacher - student ratio: 1:16
- Students enrolled: 657
9042 Career Ln, Ooltewah, TN, 37363
423-344-1456
Middle school. Grades 6 to 8.
- Public school
- Teacher - student ratio: 1:16
- Students enrolled: 738
6810 Teal Ln, Ooltewah, TN, 37363
423-344-1474
High school. Grades 9 to 12.
- Public school
- Teacher - student ratio: 1:16
- Students enrolled: 1266
6123 Mountain View Rd, Ooltewah, TN, 37363
423-498-6920
Actual schools may vary. We recommend verifying with the local school district, the school assignment and enrollment process.
Neighborhood amenities
Publix
1.05 miles away
5958 Snow Hill Rd
Food City
1.34 miles away
6043 Relocation Way
ALDI
1.64 miles away
5974 Elementary Way
Walmart Supercenter
1.72 miles away
5588 Little Debbie Pkwy
Publix
1.95 miles away
1688 Ooltewah Ringgold Rd
Heritage Health Food
1.40 miles away
6384 Artesian Cir
GNC
1.62 miles away
5910 Reagan Ln
Walmart Bakery
1.72 miles away
5588 Little Debbie Pkwy
Bake Crafters
3.04 miles away
10673 Lee Hwy
Beef'O'Brady's
1.05 miles away
5958 Snow Hill Rd
Marco's Pizza
1.05 miles away
5958 Snow Hill Rd
Local Goat
1.33 miles away
6108 Artesian Cir
Dunkin'
1.34 miles away
5024 Hunter Rd
Waffle House
1.35 miles away
8912 Lee Hwy
Dunkin'
1.34 miles away
5024 Hunter Rd
Starbucks
1.38 miles away
6053 Artesian Cir
Tasty Donuts
1.68 miles away
9448 Bradmore Ln
Scooter's Coffeehouse
1.95 miles away
9395 Apison Pike
Wired Coffee Bar
2.12 miles away
5707 Main St
Owl Cove
0.70 mile away
6857 Mountain View Rd
Cato Fashions
1.62 miles away
5910 Reagan Ln
Walmart Supercenter
1.72 miles away
5588 Little Debbie Pkwy
Prior Attire
1.80 miles away
5906 Main St
Family Dollar
5.25 miles away
8929 Highway 58
Beef'O'Brady's
1.05 miles away
5958 Snow Hill Rd
Wine Down Bistro
1.63 miles away
9447 Bradmore Ln
Hoptown Beer Bar
1.63 miles away
9431 Bradmore Ln
Sweeney's BBQ Inc
3.71 miles away
5928 Highway 58
Dream Center
5.72 miles away
7500 Standifer Gap Rd
Please note this information may vary. If you come across anything inaccurate, please contact us.
Builder details
D.R. Horton
In 1978, D.R. Horton broke ground on our first home in Fort Worth, Texas. Since that day, the company has defined its success not by bricks and mortar, but by the satisfaction of the families that make our houses their homes. Our foundation is a single, guiding principle: a value-first dedication to the individual needs of each and every one of our nation’s homebuyers.
From first-time homebuyers to empty nesters, our family of brands provides a home for every stage in life. Our highly-trained, market experts are where you want to live, from New Jersey to Hawaii, providing unique, personalized services tailored to your individual needs. But the real value comes from the quality construction we put into every home, and the peace of mind that comes with a premium-backed warranty from America’s Number One Homebuilder.
We’ve come a long way, and while more people choose our family of brands over any other builder in the country, we never forget the most important thing of all – the families that choose us for their place to call home.
So continue to live out those dreams, America, and know we’ll be here for you every step of the way.
More new homes in Ooltewah, Tennessee
Pamlico Plan by D.R. Horton
saved to favorites!
To see all the homes you’ve saved, visit the My Favorites section of your account.
Discover More Great Communities
Select additional listings for more information
Way to Go!
An agent will be in contact soon!
