Parc Plan
Ready to build
13390 Tula Loop, Astatula FL 34705
Home by LGI Homes
at Tula Parc
The Price Range displayed reflects the base price of the homes built in this community.
You get to select from the many different types of homes built by this Builder and personalize your New Home with options and upgrades.
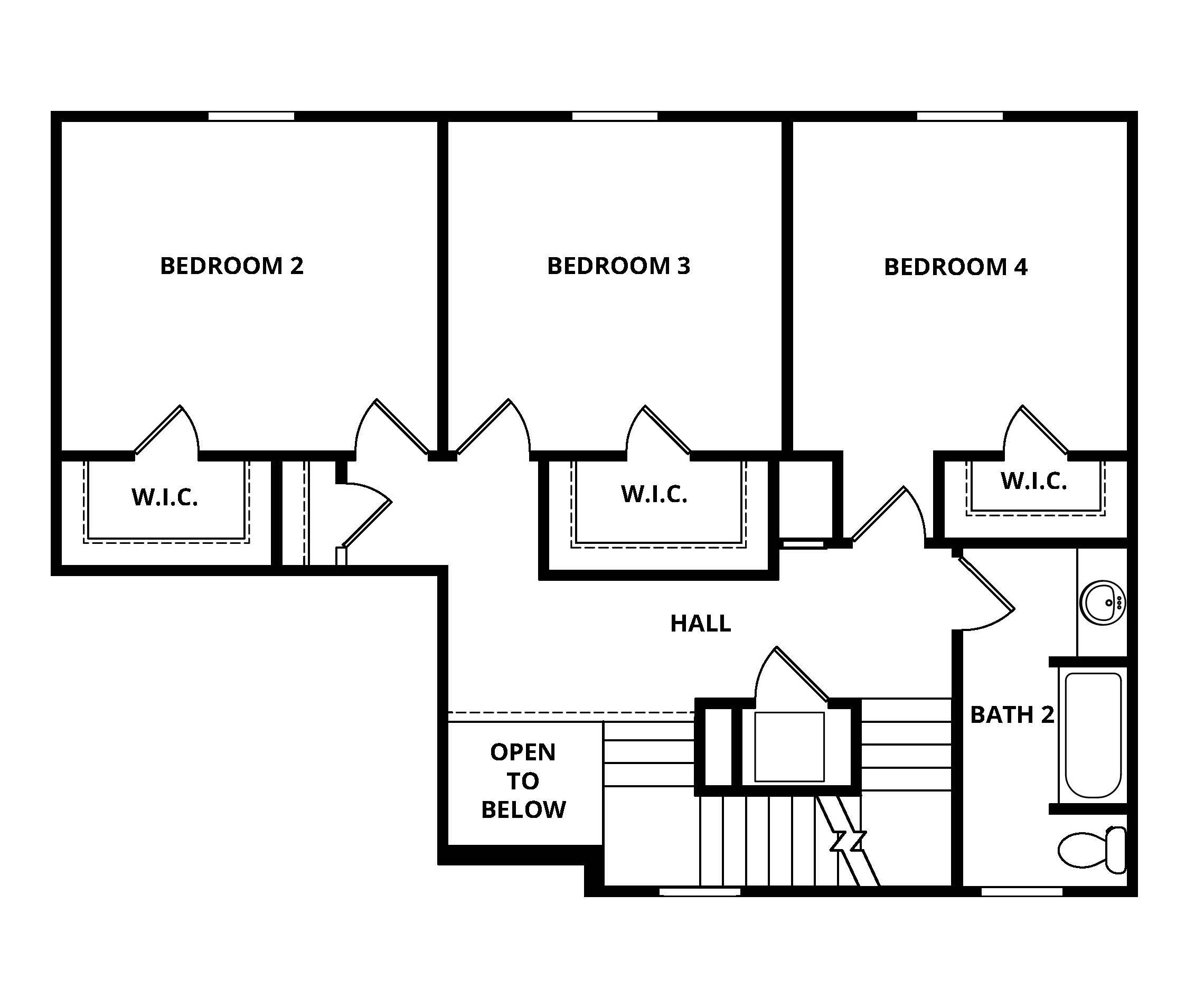
4 BR
2.5 BA
2 GR
2,059 SQ FT

The Parc plan by LGI Homes 1/13
Special offers
Explore the latest promotions at Tula Parc. Contact LGI Homes to learn more!
Save Up to $50,000 on Select Homes Now!
Overview
1 Half Bathroom
2 Bathrooms
2 Car Garage
2 Stories
2059 Sq Ft
4 Bedrooms
Covered Patio
Dining Room
Family Room
Living Room
Patio
Porch
Single Family
Parc Plan Info
This two-story retreat is located in the serene community of Tula Parc in Astatula. Thoughtfully designed, this home includes four sizable bedrooms, each with their own walk-in closets. The kitchen overlooks the living and dining area, allowing an incredible space to entertain friends and family. With a spacious open-concept floor plan, brand-new Whirlpool® appliances, granite countertops, a secluded master retreat, and a two-car garage, you will love coming home to this new-construction home each and every day.
Floor plan center
View floor plan details for this property.
- Floor Plans
- Exterior Images
- Interior Images
- Other Media
Explore custom options for this floor plan.
- Choose Option
- Include Features
Neighborhood
Community location & sales center
13390 Tula Loop
Astatula, FL 34705
13390 Tula Loop
Astatula, FL 34705
888-641-0938
Nearby schools
Lake County School District
Middle school. Grades 6 to 8.
- Public school
- Teacher - student ratio: 1:19
- Students enrolled: 1070
1335 Lane Park Cutoff, Tavares, FL, 32778
352-343-4545
High school. Grades 9 to 12.
- Public school
- Teacher - student ratio: 1:22
- Students enrolled: 1507
603 N New Hampshire Ave, Tavares, FL, 32778
352-343-3007
Actual schools may vary. We recommend verifying with the local school district, the school assignment and enrollment process.
Amenities
Home details
Ready to build
Build the home of your dreams with the Parc plan by selecting your favorite options. For the best selection, pick your lot in Tula Parc today!
Community & neighborhood
Local points of interest
- Lake
Community services & perks
- HOA fees: Unknown, please contact the builder
- Playground
- Park
Neighborhood amenities
Howey Market
2.15 miles away
101 S Palm Ave
Publix
4.35 miles away
2042 State Road 19
Winn-Dixie
6.61 miles away
450 E Burleigh Blvd
Publix
7.38 miles away
2840 David Walker Dr
Publix
7.44 miles away
10601 US Highway 441
Glyco Health Partners Inc
2.68 miles away
3377 Baltic Sea Blvd
Charissa's Homemade Bakeshop
2.84 miles away
4109 County Road 561
Yalaha Bakery
4.94 miles away
8210 County Road 48
Yalaha Contry Bakery
4.94 miles away
8210 County Road 48
GNC
7.38 miles away
2866 David Walker Dr
Race Car Diner
0.37 mile away
25641 Monroe St
Bo-Mar
1.86 miles away
27616 County Road 561
Tea Craze
1.98 miles away
1015 S Dillard St Studio 2
JB Boondocks Bar N' Grill
2.01 miles away
704 S Lakeshore Blvd
Hunt Brothers Pizza
2.11 miles away
102 N Palm Ave
Tea Craze
1.98 miles away
1015 S Dillard St Studio 2
Dunkin'
5.31 miles away
451 S Duncan Dr
Mugsy Beans Coffee House
5.57 miles away
322 W Main St
Rejoice All Natural
5.71 miles away
314 E Alfred St
Dunkin'
7.18 miles away
2390 E Burleigh Blvd
Dehiness Fashion
2.80 miles away
3529 Oak Cliff Blvd
Flint Creek Outfitters
3.09 miles away
3950 N Eichelberger Rd
Molly Mouse Children Boutique
5.39 miles away
2240 Martins Run
La' Kieran Couture Studio
5.69 miles away
122 E Alfred St
JB Boondocks Bar N' Grill
2.01 miles away
704 S Lakeshore Blvd
La Margarita
3.00 miles away
10400 County Road 48
Kalua Hale Beach Bar
5.44 miles away
181 S Joanna Ave
Hemingways Wine & Cigar Bar
5.50 miles away
126 W Ruby St
O'Keefe's Irish Pub & Restaurant
5.54 miles away
115 S Rockingham Ave
Please note this information may vary. If you come across anything inaccurate, please contact us.
Here at LGI Homes, we know that we're a new home builder that is different. Building homes with great value and great prices in excellent locations, such as Dallas-Fort Worth, Houston, San Antonio, Austin, Phoenix, Tucson, Albuquerque, Tampa, Orlando, Charlotte, Denver and Atlanta. In every one of our new home communities, we have assembled a team of dedicated home buying professionals who are ready and able to walk you through the home buying process, and help you find the perfect new home. Contact us now, and let us start you on your journey toward homeownership. You’ll be glad you did!
TrustBuilder reviews
Take the next steps toward your new home
Parc Plan by LGI Homes
saved to favorites!
To see all the homes you’ve saved, visit the My Favorites section of your account.
Discover More Great Communities
Select additional listings for more information
We're preparing your brochure
You're now connected with LGI Homes. We'll send you more info soon.
The brochure will download automatically when ready.
Brochure downloaded successfully
Your brochure has been saved. You're now connected with LGI Homes, and we've emailed you a copy for your convenience.
The brochure will download automatically when ready.
Way to Go!
You’re connected with LGI Homes.
The best way to find out more is to visit the community yourself!