Primrose Park at Summerlin
Chesapeake
60 Vernalis Avenue, Las Vegas, NV, 89138
by Richmond American Homes 179 TrustBuilder reviews
From $1,139,950 This is the starting price for this plan and is subject to change.
- 4 Beds
- 3.5 Baths
- 3 Car garage
- 3,523 Sq Ft
Overview
Floor plan features
- 1 Half Bathroom
- 2 Stories
- Primary Bed Upstairs
- Single Family
Floor plan description
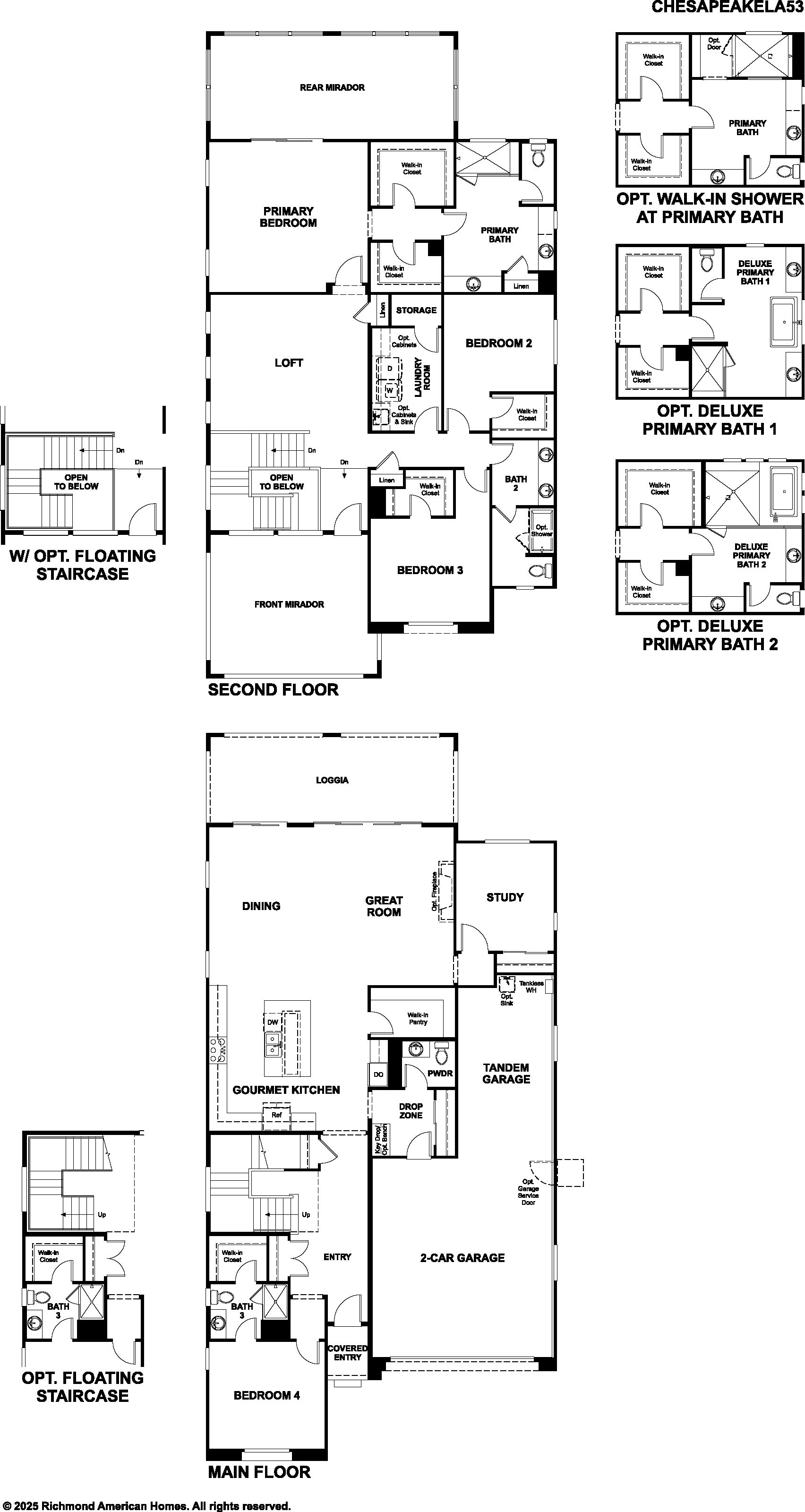
The main floor of the charming Chesapeake plan boasts an inviting great room, an open dining room, a quiet study, and a gourmet kitchen with a large island and walk-in pantry. You'll also appreciate a bedroom and full bath off the entry, as well as a convenient powder room. Upstairs, discover a versatile loft, two secondary bedrooms, and a luxurious primary suite showcasing two walk-in closets, a private mirador, and an attached bath with dual vanities. Additional highlights include airy 10' ceilings on both levels, a second mirador, a shared upstairs bath, a central laundry, and an attractive loggia.
Explore this home
Explore custom options for this floor plan.
Special offers
Explore the latest promotions at Primrose Park at Summerlin. to learn more!
Get today's best offers...
special financing on select homes!
Las Vegas Homes of the Week
See this week's hot homes!
8 Credit Score Management Tips
Download our FREE guide & stay on the path to healthy credit.
Community highlights
Community amenities
Golf Course
Playground
Trails
About Primrose Park at Summerlin
An exciting addition to the popular Summerlin masterplan, Primrose Park has a lot to offer prospective residents. Boasting an impressive array of luxurious homes with open layouts and designer details, this notable neighborhood is a must-see for Las Vegas house hunters. You'll appreciate the community's biking and walking trails as well as close proximity to notable schools, hospitals, shopping, dining, and golf courses Lake Mead Boulevard can be found nearby, as can the 215 Beltway. You'll love the exciting personalization options available in our to-be-built homes! More info about Primrose Park at Summerlin
Neighborhood
Community location & sales center
60 Vernalis Avenue Las Vegas, NV 89138
60 Vernalis Avenue Las Vegas, NV 89138
888-989-6790
From the 215 Beltway, exit Far Hills Ave. West on Far Hills approx. 1.5 miles. Left (south) on Grand Park Boulevard. Right (north) on SPring Run Drive. First left on Polyantha Ave. Left on Everdeen St. Left on Vernalis Ave. Sales Center on right.
Nearby schools
Clark County School District
Sig Rogich Middle School
Middle school. Grades 6 to 8.
Public school
Teacher - student ratio: 1:28
Students enrolled: 1587
702-799-6040
235 N Pavilion Center Dr, Las Vegas, NV, 89144
Palo Verde High School
High school. Grades 9 to 12.
Public school
Teacher - student ratio: 1:26
Students enrolled: 3186
702-799-1450
333 S Pavilion Center Dr, Las Vegas, NV, 89144
GreatSchools ratings are provided by GreatSchools.org and are for reference only. Ratings may not be available for all schools. Please verify school assignments and details with the local school district.
Amenities
Community & neighborhood
Utilities
- Electric NV Energy
- Gas Southwest Gas
Social activities
- Albertsons
- Canyon Pointe Shopping Center
- Downtown Summerlin Shopping Mall
- Red Rock Canyon NCA Scenic Drive - Bureau of Land Management
- Red Rock Casino, Resort and Spa
- Costco
- JW Marriott Las Vegas Resort and Spa
Health and fitness
- Summerlin Hospital Medical Center
- Golf Course
- Trails
Community services & perks
- Las Vegas Metro Police Department Spring Valley Command Substation
- Fire Station 9 - Las Vegas Fire and Rescue
- Playground
Builder details
Richmond American Homes
4 out of 5 stars
179 Reviews in the Las Vegas Area
VIEW RATINGS & REVIEWSWhat sets Richmond American Homes companies apart from other leading homebuilders? Many will say it's the inspired floor plans, incredible included features, quality construction and unwavering commitment to customer satisfaction. Although these all play a role, personalization is what truly makes the difference. The company may have built more than 210,000 homes over the last 40+ years, but each one turns out anything but cookie cutter!
How do we make each Richmond American home unique? By offering homebuyers who build a new home from the ground up the opportunity to choose from hundreds of fixture and finish options at our innovative Home Gallery™ design centers across the country. From the kitchen cabinets and countertops to the surround sound, there are countless opportunities to tailor the floor plans, along with seasoned advice to assist customers every step of the way.
The Richmond American Homes companies have homebuilding operations in several states, including Arizona, California, Colorado, Florida, Idaho, Maryland, Nevada, Oregon, Pennsylvania, Utah, Virginia and Washington. With an impressive lineup of ranch, two-story and three-story floor plans, and several sought-after home collections available, there are options that appeal to a wide range of homebuyers at a variety of price points. Customers can also take advantage of the one-stop shopping convenience offered by Richmond American’s affiliates, HomeAmerican Mortgage Corporation, American Home Insurance Agency, Inc. and American Home Title and Escrow Company. Together, these companies offer a streamlined homebuying experience from start to finish. Discover your dream home—and make it your own—today!
TrustBuilder reviews
Take the next steps toward your new home
This listing's information was verified with the builder for accuracy 2 days ago
Chesapeake Plan by Richmond American Homes
saved to favorites!
To see all the homes you’ve saved, visit the My Favorites section of your account.
Discover More Great Communities
Select additional listings for more information
We're preparing your brochure
You're now connected with Richmond American Homes. We'll send you more info soon.
The brochure will download automatically when ready.
Brochure downloaded successfully
Your brochure has been saved. You're now connected with Richmond American Homes, and we've emailed you a copy for your convenience.
The brochure will download automatically when ready.
Way to Go!
You’re connected with Richmond American Homes.
The best way to find out more is to visit the community yourself!