Pearson Plan
Ready to build
13004 Justify Drive, Union KY 41091
Home by Fischer Homes

Last updated 2 days ago
The Price Range displayed reflects the base price of the homes built in this community.
You get to select from the many different types of homes built by this Builder and personalize your New Home with options and upgrades.
4 BR
2.5 BA
3,605 SQ FT

Exterior 1/41
Special offers
Explore the latest promotions at Justify at Triple Crown. Contact Fischer Homes to learn more!
New Beginnings Start at Home -
Overview
1 Half Bathroom
2 Bathrooms
2 Stories
3605 Sq Ft
4 Bedrooms
Primary Bed Downstairs
Single Family
Pearson Plan Info
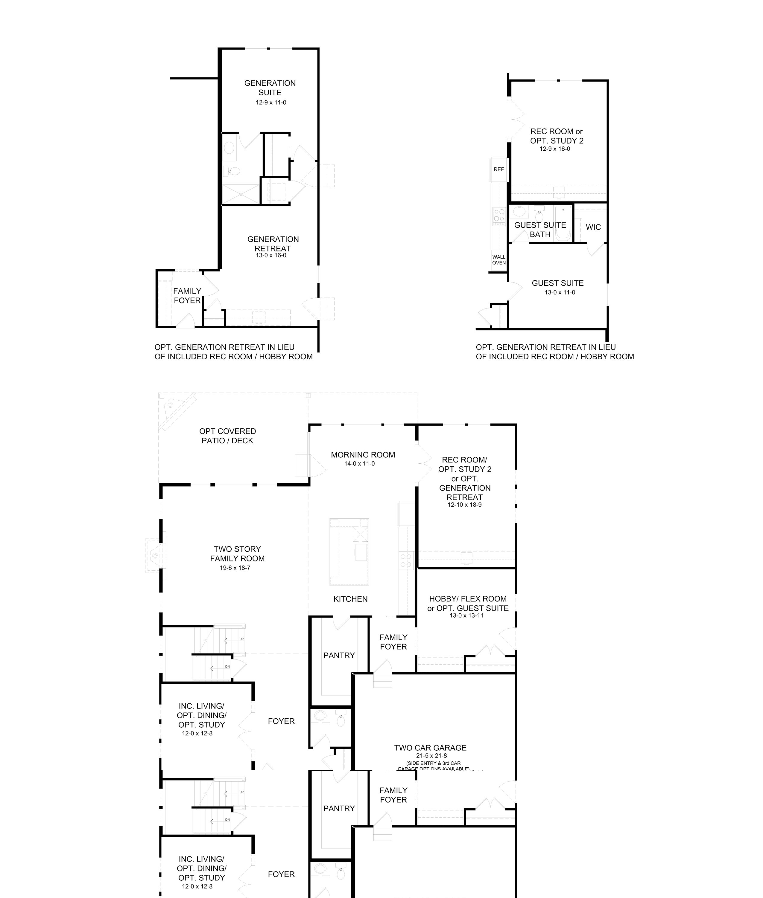
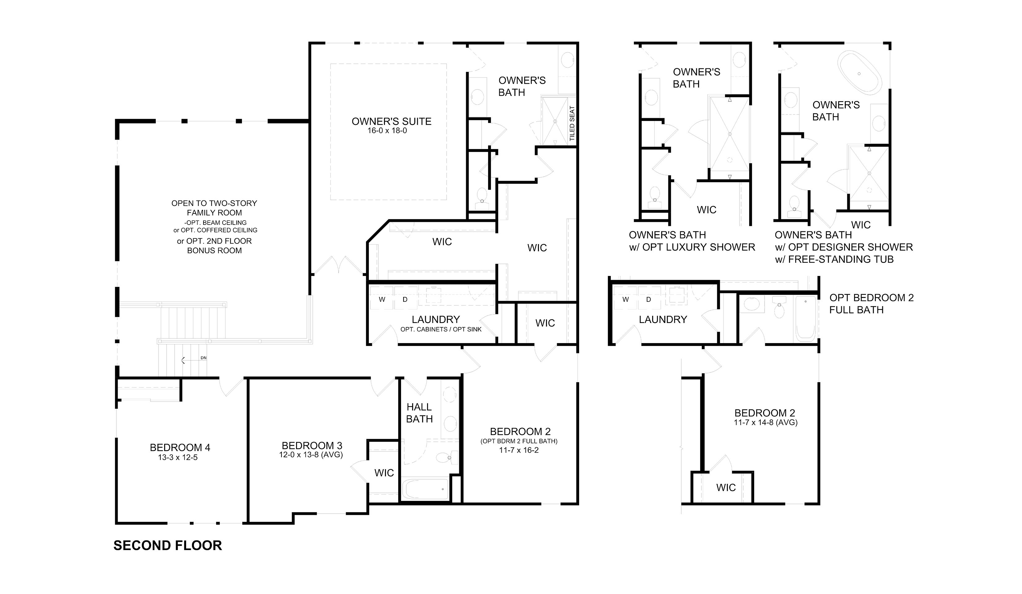
The Pearson by Fischer Homes offers unparalleled versatility with a design that adapts to your lifestyle. The home features 9-foot ceilings on the first floor and an inviting, open foyer that leads to a two-story family room. The centralized kitchen boasts a large island and pantry, with options for a prep space to enhance functionality. A secondary flex space and a spacious rec room provide additional living areas, with options to include a first-floor wet bar or transform the space into a generation retreat with a private entry or a guest suite. The primary suite offers a luxurious escape with one of the largest walk-in closets. Optional shared bath configurations further enhance the Pearsons adaptability, making it the perfect choice for modern living.
Floor plan center
View floor plan details for this property.
- Floor Plans
- Exterior Images
- Interior Images
- Other Media
Neighborhood
Community location & sales center
13004 Justify Drive
Union, KY 41091
13004 Justify Drive
Union, KY 41091
888-929-9525
Take 1-75 S/I-71 S to KY-338/Richwood Rd Exit 175. Turn right onto Richwood Rd/KY-338. Turn right onto Triple Crown Blvd. Turn left onto Count Fleet Dr.
Schools near Justify at Triple Crown
- Boone County Schools
Actual schools may vary. Contact the builder for more information.
Amenities
Home details
Green program
Energywise
Ready to build
Build the home of your dreams with the Pearson plan by selecting your favorite options. For the best selection, pick your lot in Justify at Triple Crown today!
Community & neighborhood
Social activities
- Club House
Health and fitness
- Golf Course
- Tennis
- Pool
Community services & perks
- HOA fees: Unknown, please contact the builder
- Playground
Neighborhood amenities
Kroger
3.05 miles away
8775 US Highway 42
Kroger
3.34 miles away
9950 Berberich Dr
Kroger Marketplace
3.76 miles away
9001 US Highway 42
Kroger
3.95 miles away
8825 US Highway 42
Kroger Marketplace
4.23 miles away
635 Chestnut Dr
Messier-Bugatti USA, LLC
2.16 miles away
1 Carbon Way
Kroger Bakery
3.34 miles away
9950 Berberich Dr
Bailey Jayne's Bakery
3.82 miles away
5 N Main St
Kelly's Cakery
4.26 miles away
8605 Haines Dr
Raymond's Hong Kong Cafe
0.70 mile away
11051 Clay Dr
Marckesano's Pizza
0.73 mile away
11065 Clay Dr
Dunkin'
0.73 mile away
320 Richwood Rd
McDonald's
0.76 mile away
306 Richwood Rd
Snappy Tomato Pizza
0.80 mile away
311 Richwood Rd
Dunkin'
0.73 mile away
320 Richwood Rd
Pink in A Blanket Doughnuts Mt
3.31 miles away
202 Mount Zion Rd
Starbucks
3.76 miles away
9001 US Highway 42
Starbucks
3.91 miles away
208 Mary Grubbs Hwy
Starbucks
3.97 miles away
8755 US Highway 42
Family Dollar
2.85 miles away
10255 Dixie Hwy
Hot-Tees Spirit Wear & Apparel
2.97 miles away
115 Bessmer Rd
Spirit Boutique LLC
3.43 miles away
10515 Norbotten Dr
Clothes 2 Home Consignment Shop
3.65 miles away
53 N Main St
Kohl's
4.35 miles away
12300 Towne Center Dr
Longnecks Sports Grill
1.02 miles away
12919 Frogtown Connector Rd
First & Ten Sports Bar
2.65 miles away
10358 Dixie Hwy
Wings and Rings
3.05 miles away
8987 US 42
Boonedocks Pub & Grub
3.61 miles away
11984 US Highway 42
Please note this information may vary. If you come across anything inaccurate, please contact us.
Recognized by Builder Magazine as the 31st largest home builder in the U.S., Fischer Homes is one of the most reputable new home builders in the Midwestern and Southeastern states. The company was founded in 1980 in Northern Kentucky by Henry and Elaine Fischer with the philosophy of "Promise only what you can deliver and deliver what you promise," and have been building quality homes ever since. Over the past 40 years, privately-owned Fischer Homes has proudly built over 40,000 homes and has maintained a 98% customer satisfaction rating, one of the highest in the industry. They have partnered with nationally known architects to bring fresh and innovative styles to their extensive portfolio of new home designs. Headquartered in Erlanger, Kentucky, Fischer Homes builds new homes in communities throughout Atlanta, Cincinnati, Columbus, Dayton, Indianapolis, Louisville, Northern Kentucky, North Carolina, Northwest Florida, and St. Louis. Their collections of single-family, condominiums, and patio homes offer choices for people in all stages of life and range in price from the $130s to $1 million+. They are also an ENERGYSTAR certified partner and a proud builder of three St. Jude Dream Homes every year. To find a community or a new home near you, visit fischerhomes.com or follow on social media.
Take the next steps toward your new home
Pearson Plan by Fischer Homes
saved to favorites!
To see all the homes you’ve saved, visit the My Favorites section of your account.
Discover More Great Communities
Select additional listings for more information
We're preparing your brochure
You're now connected with Fischer Homes. We'll send you more info soon.
The brochure will download automatically when ready.
Brochure downloaded successfully
Your brochure has been saved. You're now connected with Fischer Homes, and we've emailed you a copy for your convenience.
The brochure will download automatically when ready.
Way to Go!
You’re connected with Fischer Homes.
The best way to find out more is to visit the community yourself!