Perkins Plan
Ready to build
703 Aspen Lane, Montrose MN 55363
Home by LGI Homes
at Northridge
The Price Range displayed reflects the base price of the homes built in this community.
You get to select from the many different types of homes built by this Builder and personalize your New Home with options and upgrades.
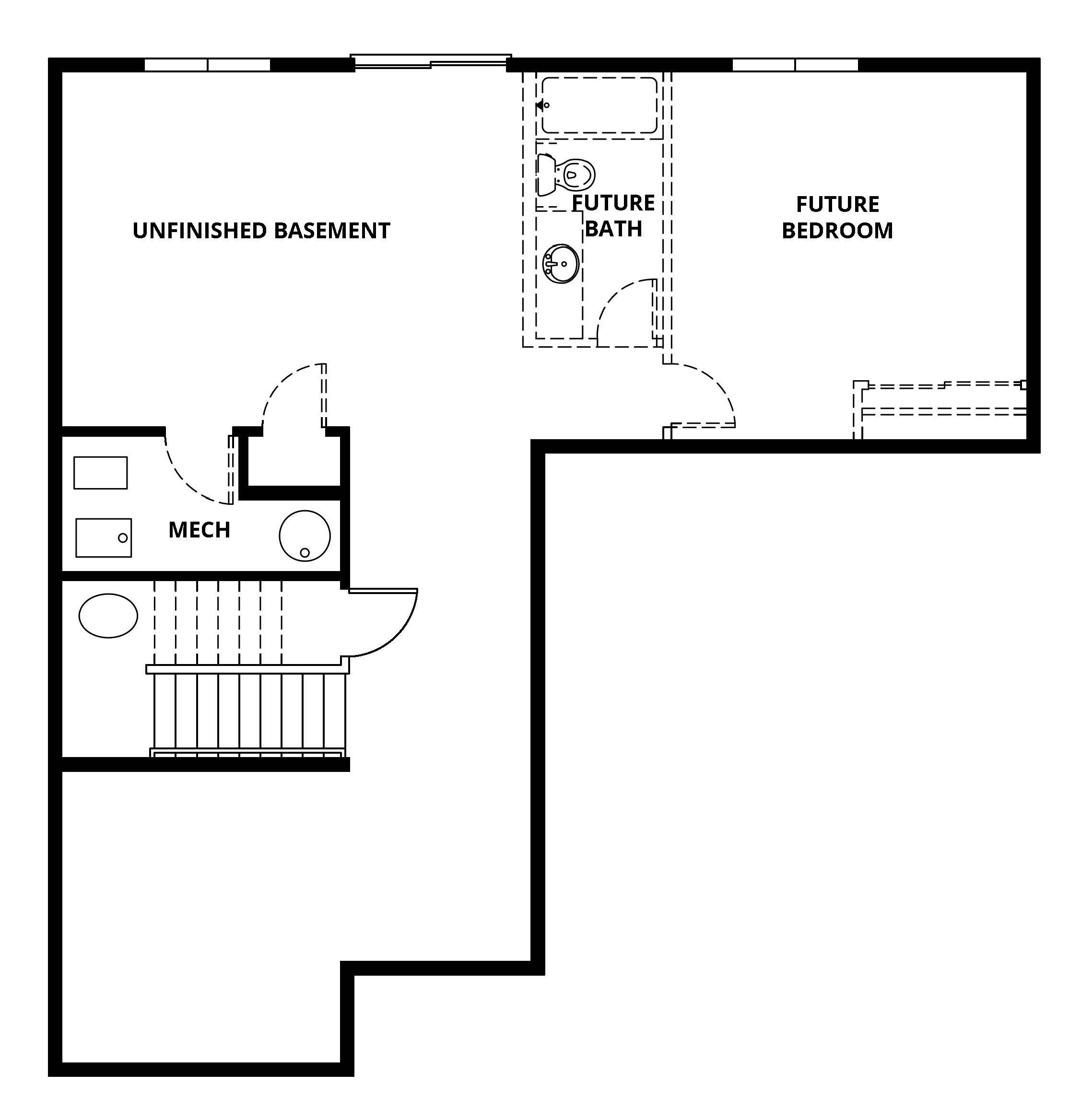
4 BR
2.5 BA
2 GR
2,317 SQ FT

The Perkins by LGI Homes 1/13
Special offers
Explore the latest promotions at Northridge. Contact LGI Homes to learn more!
Builder Paid Closing Costs!
Save Up to $50,000 on Select Homes Now!
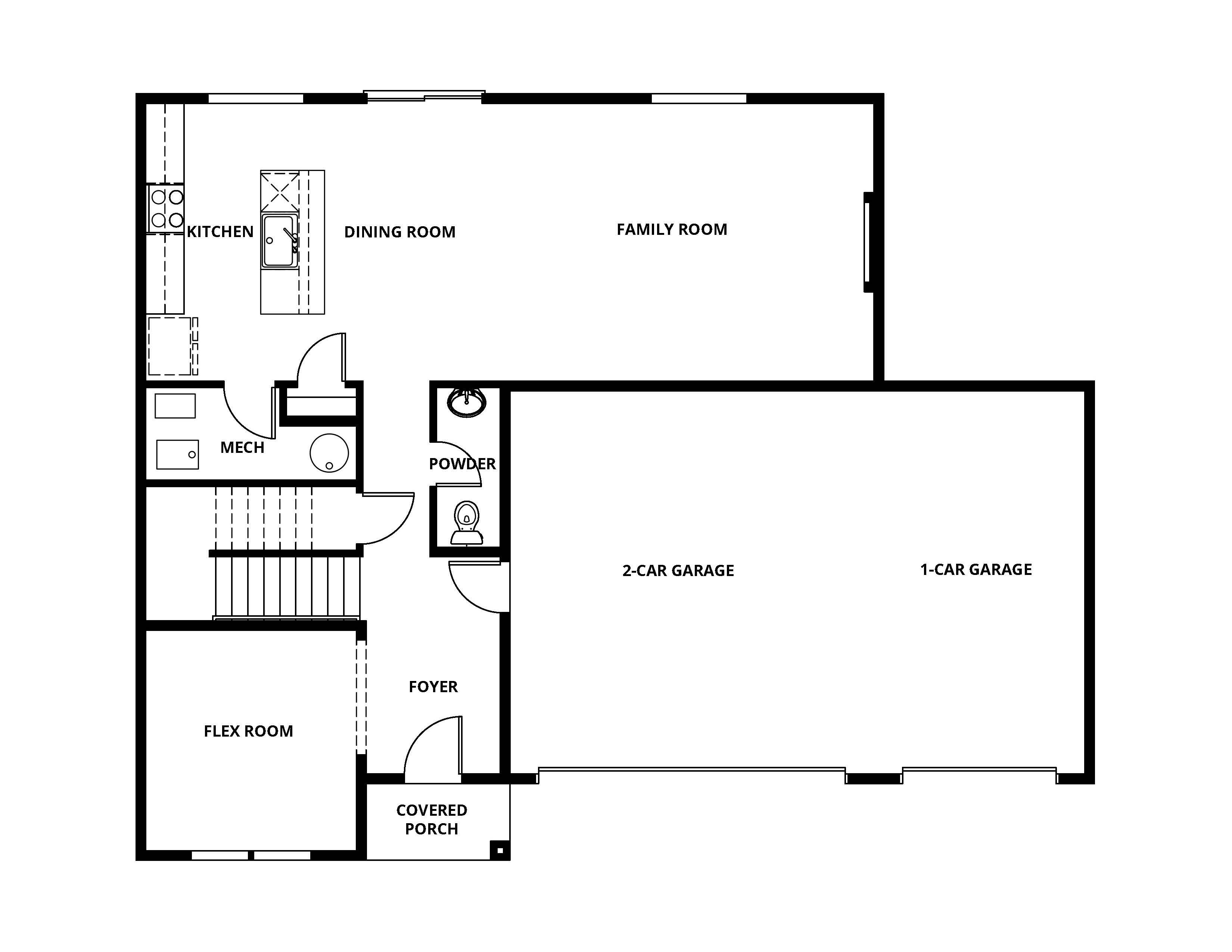
Overview
1 Half Bathroom
2 Bathrooms
2 Car Garage
2 Stories
2317 Sq Ft
4 Bedrooms
Breakfast Area
Dining Room
Family Room
Green Construction
Primary Bed Upstairs
Single Family
Walk-In Closets
Perkins Plan Info
With four bedrooms and two bathrooms, this beautifully designed two-story home is a must-see. The chef-ready kitchen is equipped with stainless steel appliances, polished granite countertops, oversized wood cabinetry, and a spacious pantry. The bright, open family room provides a welcoming atmosphere, while the master suite offers a peaceful retreat with ample space. A private flex room and generous storage options add to the home’s appeal. All of the bedrooms, the laundry room and a large game room are also upstairs. Plus, this home includes premium designer-selected upgrades at no additional cost, such as luxury vinyl-plank flooring, a Wi-Fi-enabled garage door opener, a programmable thermostat, solar panels, and more.
Floor plan center
View floor plan details for this property.
- Floor Plans
- Exterior Images
- Interior Images
- Other Media
Neighborhood
Community location & sales center
703 Aspen Lane
Montrose, MN 55363
703 Aspen Lane
Montrose, MN 55363
888-709-1649
Schools near Northridge
- Buffalo-hanover-montrose Public School
Actual schools may vary. Contact the builder for more information.
Amenities
Home details
Ready to build
Build the home of your dreams with the Perkins plan by selecting your favorite options. For the best selection, pick your lot in Northridge today!
Community & neighborhood
Local points of interest
- Northridge Park
- Waverly Waterfront Legion Park
- Montrose Disc Golf Course
- Fountain Hill Winery & Vineyard
- Sturges Park
- Emagine Delano: Movie Theaters
- Huikko's Bowling Center
- Bentfield Mills Park
Health and fitness
- Wild Marsh Golf Club
- Buffalo Heights Golf Course
- Trails
- DiscGolf
Community services & perks
- HOA fees: Unknown, please contact the builder
- Montrose Community Center
- Buffalo Community Center
- Playground
- Park
Here at LGI Homes, we know that we're a new home builder that is different. Building homes with great value and great prices in excellent locations, such as Dallas-Fort Worth, Houston, San Antonio, Austin, Phoenix, Tucson, Albuquerque, Tampa, Orlando, Charlotte, Denver and Atlanta. In every one of our new home communities, we have assembled a team of dedicated home buying professionals who are ready and able to walk you through the home buying process, and help you find the perfect new home. Contact us now, and let us start you on your journey toward homeownership. You’ll be glad you did!
TrustBuilder reviews
Take the next steps toward your new home
Perkins Plan by LGI Homes
saved to favorites!
To see all the homes you’ve saved, visit the My Favorites section of your account.
Discover More Great Communities
Select additional listings for more information
We're preparing your brochure
You're now connected with LGI Homes. We'll send you more info soon.
The brochure will download automatically when ready.
Brochure downloaded successfully
Your brochure has been saved. You're now connected with LGI Homes, and we've emailed you a copy for your convenience.
The brochure will download automatically when ready.
Way to Go!
You’re connected with LGI Homes.
The best way to find out more is to visit the community yourself!