Plan 1147 Plan
Ready to build
910 Shooting Star Drive, Prosper TX 75078
Home by American Legend Homes

Last updated 1 day ago
The Price Range displayed reflects the base price of the homes built in this community.
You get to select from the many different types of homes built by this Builder and personalize your New Home with options and upgrades.
3 BR
2.5 BA
2 GR
2,322 SQ FT

Exterior 1/9
Overview
1 Half Bathroom
1 Story
Primary Bed Downstairs
Single Family
Plan 1147 Plan Info
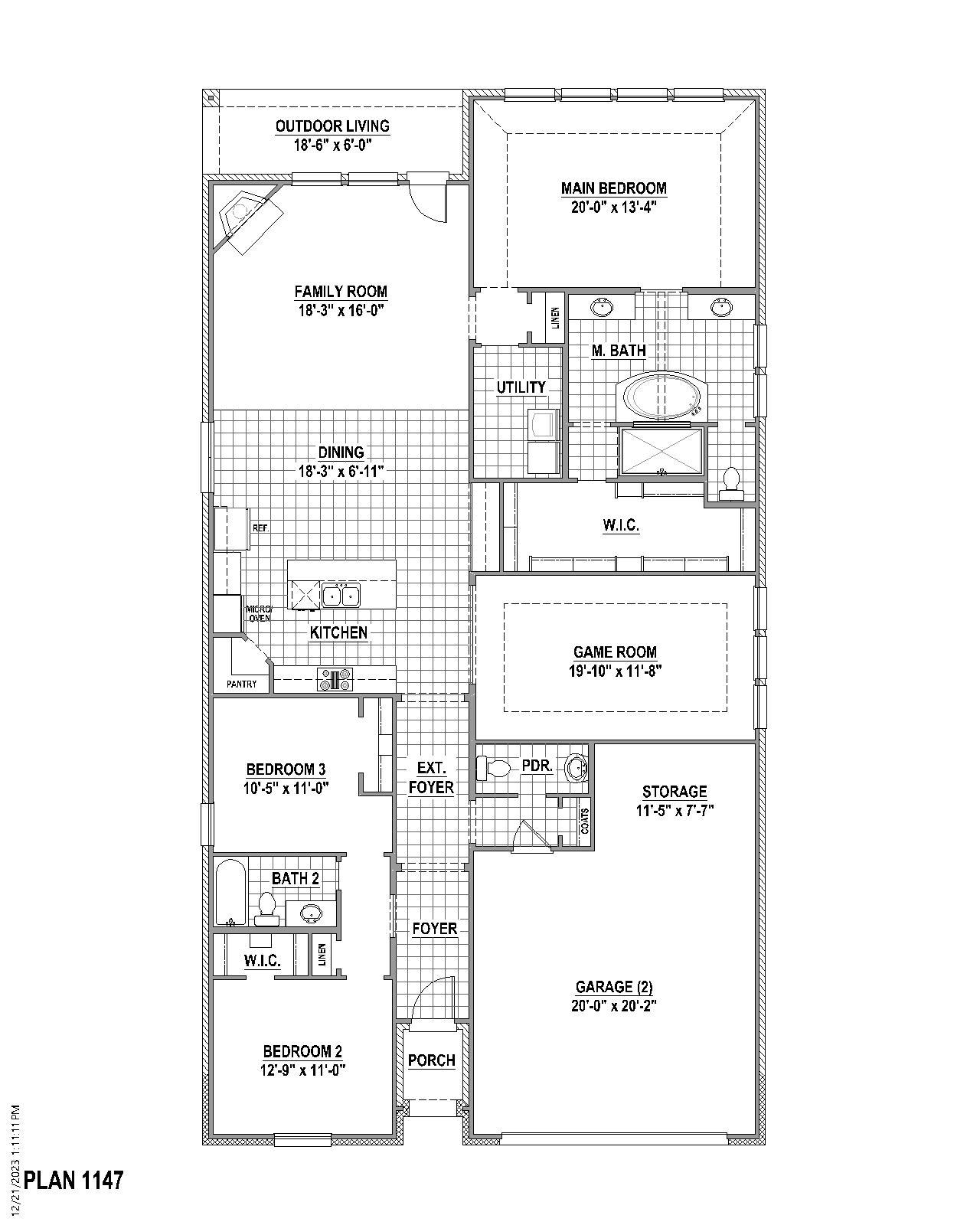
1 story home with 3 bedrooms, 2 full baths, 1 half bath, dining area, game room, outdoor living area and 2-car garage with storage! This spacious, one-story plan design offers buyers the perfect place for entertaining! Upon entering the home, you'll immediately notice the extended foyer that offers sightlines directly through the back of the home. Two secondary bedrooms share a full-size bathroom. Adjacent to the kitchen, you will see an incredibly spacious game room with endless possibilities. The open kitchen leads into the huge dining area and features a corner walk-in pantry, ample counter space and large center island. In the family room sits a corner fireplace and large windows with a view of the generous outdoor living space. The main bedroom suite is ideally situated at the back of the home for maximum privacy and boasts dual vanities, a garden tub, a spacious shower and a huge walk-in closet. This home also boasts an oversized garage perfect for all of your storage needs. Contact your American Legend Homes' Sales Associate today to make this your dream home yours!
Floor plan center
View floor plan details for this property.
- Floor Plans
- Exterior Images
- Interior Images
- Other Media
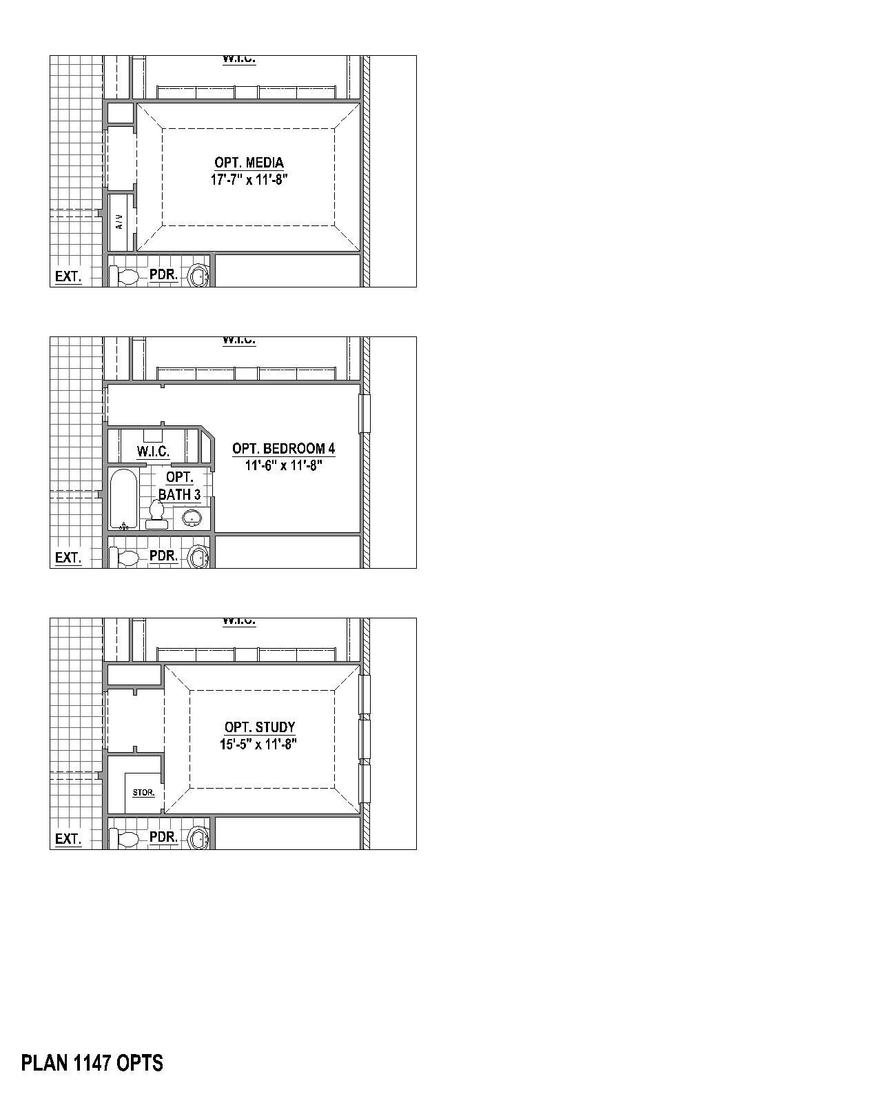
Explore custom options for this floor plan.
- Choose Option
- Include Features
Neighborhood
Community location & sales center
910 Shooting Star Drive
Prosper, TX 75078
910 Shooting Star Drive
Prosper, TX 75078
From Dallas North Tollway: Head north to Prosper Trail. Go west on Prosper Trail. Left on Star Gazer Way. Left on Left on Star Trail Parkway. Left on Shooting Star Drive. Our models are on the right hand side.
Nearby schools
Prosper Independent School District
Prosper High School
High school. Grades 9 to 12.
Public school
Teacher - student ratio: 1:17
Students enrolled: 3769
469-219-2180
301 Eagle Dr, Prosper, TX, 75078
GreatSchools ratings are provided by GreatSchools.org and are for reference only. Ratings may not be available for all schools. Please verify school assignments and details with the local school district.
Amenities
Home details
Ready to build
Build the home of your dreams with the Plan 1147 plan by selecting your favorite options. For the best selection, pick your lot in Star Trail - 55s today!
Community & neighborhood
Utilities
- Electric COServ (940) 321-7800
- Gas Atmos Energy (888) 286-6700
- Telephone Gage Hubbard (972) 375-1776
- Water/wastewater Town of Prosper - Utility Billing (972) 569-1180
Social activities
- Club House
Health and fitness
- Tennis
- Pool
- Trails
- Basketball
- Soccer
- Baseball
Community services & perks
- Playground
- Park
- Community Center
Neighborhood amenities
Eagles Nest Texaco
2.39 miles away
640 N Preston Rd
Walmart Supercenter
2.51 miles away
500 Richland Blvd
Kroger Marketplace
2.58 miles away
1250 N Preston Rd
Kroger
3.40 miles away
4650 W University Dr
Wild Fork
3.92 miles away
2351 E University Dr
Celebrate With My Cake LLC
1.31 miles away
16504 Spence Park Ln
Cupcakes & Cheer
2.36 miles away
3507 Fieldview Ct
Serendipity Treats LLC
2.37 miles away
1101 S Preston Rd
Domino's
1.40 miles away
1061 N Coleman St
Donut Man
1.42 miles away
861 N Coleman St
Blendz Cafe
1.43 miles away
821 N Coleman St
Cotton Gin Cafe
1.55 miles away
204 W Broadway St
Daylight Donuts
1.55 miles away
1640 W Frontier Pkwy
Coffee Over Cardio Co
1.17 miles away
550 Industry Way
Daylight Donuts
1.55 miles away
1640 W Frontier Pkwy
Dutch Bros Coffee
1.72 miles away
11950 US Highway 380
Morning Donuts
1.72 miles away
26735 US Highway 380
Sugarboy Donuts
2.17 miles away
17569 Fishtrap Rd
Sparrow Lane Boutique
1.07 miles away
780 Ridgecross Rd
380 Outfitters
1.42 miles away
861 N Coleman St
Meenu Fashions Inc
1.57 miles away
1909 Artesia Blvd
Claire's
1.61 miles away
113 W Broadway St
Maggie's
1.63 miles away
102 W Broadway St
The Kitchen at Cut-Frisco
2.06 miles away
6969 US Highway 380
Chili's
2.34 miles away
1081 S Preston Rd
Trick Rider
2.52 miles away
4341 Pga Pkwy
Mi Chante Mexican Cuisine
3.51 miles away
1090 N Coit Rd
Tailgaters Sports Bar & Grill
3.65 miles away
16710 FM 423
Please note this information may vary. If you come across anything inaccurate, please contact us.
American Legend Homes is a family and employee-owned, award-winning organization focused on thoughtful designs, quality craftsmanship and superior customer service. Since 2003 we’ve built thousands of homes in North Texas and are proud to have expanded into Northern Colorado in 2018.
Drawing upon a combined 75 years of homebuilding experience, our leadership team ensures that every member of the American Legend family understands the critical role they play in building trust and developing long term relationships with each homeowner.
“Built for the way you live” isn’t just a tagline; it’s an operating mantra that defines who we are and our commitment to provide the absolute best customer experience throughout the homebuilding process.
We take an immense amount of pride in making dream homes a reality, and would be honored to partner with you on that journey.
Take the next steps toward your new home
Plan 1147 Plan by American Legend Homes
saved to favorites!
To see all the homes you’ve saved, visit the My Favorites section of your account.
Discover More Great Communities
Select additional listings for more information
We're preparing your brochure
You're now connected with American Legend Homes. We'll send you more info soon.
The brochure will download automatically when ready.
Brochure downloaded successfully
Your brochure has been saved. You're now connected with American Legend Homes, and we've emailed you a copy for your convenience.
The brochure will download automatically when ready.
Way to Go!
You’re connected with American Legend Homes.
The best way to find out more is to visit the community yourself!