Plan 1560 Plan
Ready to build
11705 Canopy Trail, Justin TX 76247
Home by American Legend Homes
at Treeline

Last updated 23 hours ago
The Price Range displayed reflects the base price of the homes built in this community.
You get to select from the many different types of homes built by this Builder and personalize your New Home with options and upgrades.
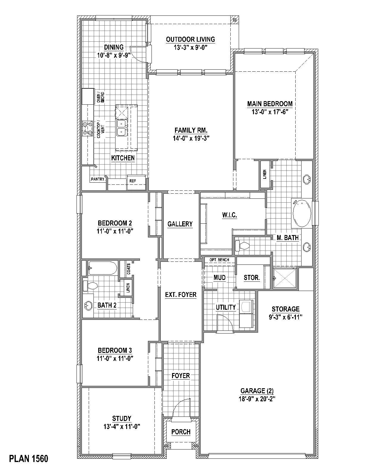
3 BR
2 BA
2.5 GR
2,209 SQ FT

Exterior 1/33
Overview
1 Story
2 Bathrooms
2.5 Car Garage
2209 Sq Ft
3 Bedrooms
Primary Bed Downstairs
Single Family
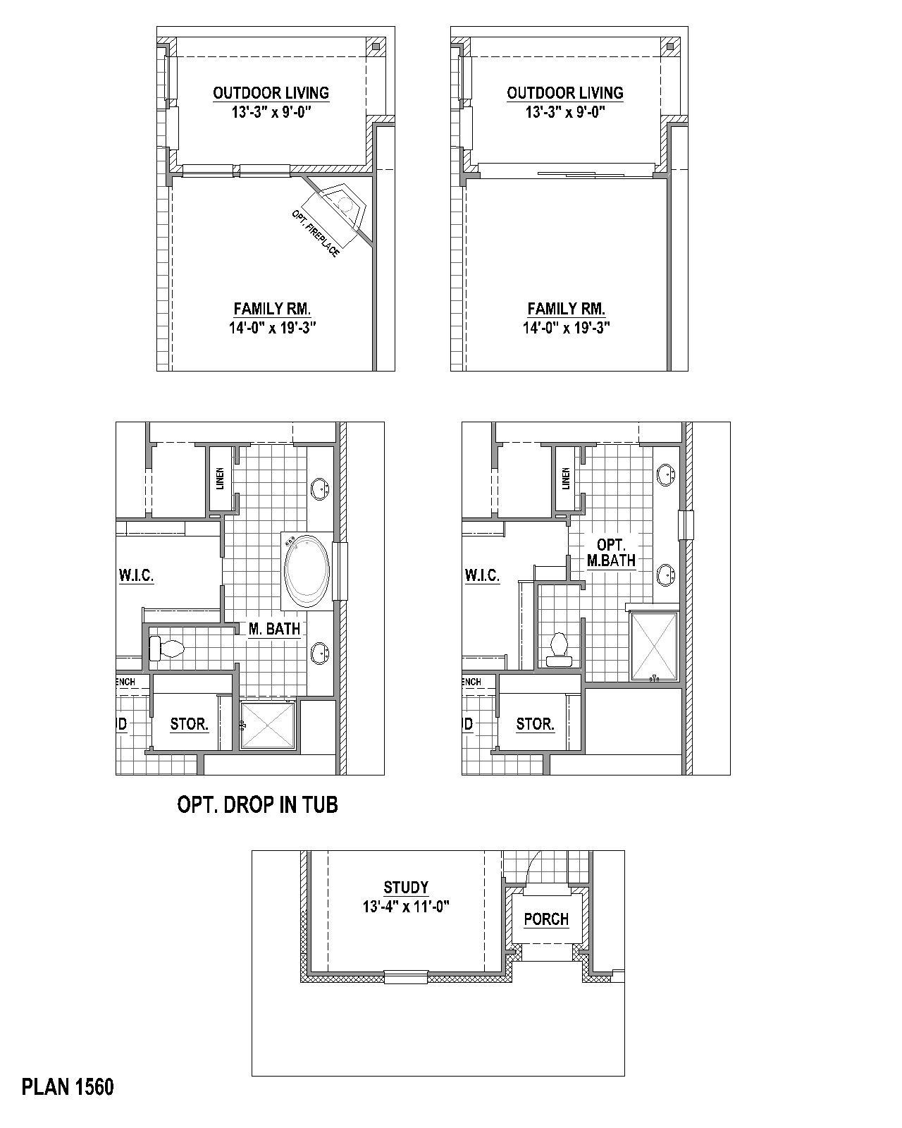
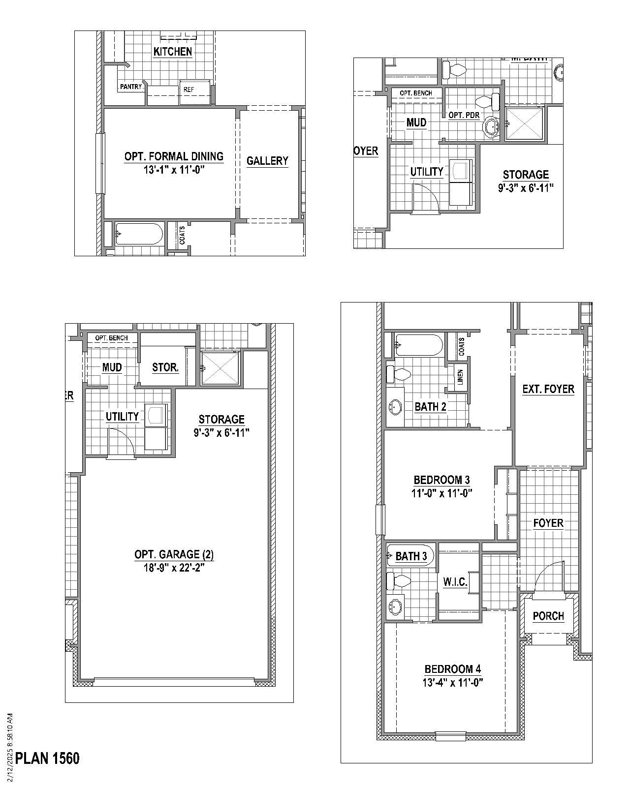
Plan 1560 Plan Info
This one-story home combines elegance and functionality. Boasting our striking elevations, the home makes a memorable first impression. Step inside to find a thoughtfully designed layout featuring 3 spacious bedrooms, 2 full baths, and a convenient optional powder bath. A dedicated study provides the perfect space for remote work or quiet reading. You can also choose to alter the study to an additional bedroom suite with full bath should you find this a better option. The open-concept family room is a warm and welcoming space, highlighted by a stunning view of the backyard that invites relaxation. The family room seamlessly flows into the gourmet kitchen, complete with built-in appliances, ample counter space, and a stylish backsplash, ideal for culinary enthusiasts and entertaining guests. The private main suite offers a tranquil retreat, featuring a spa-like bath with a soaking tub, separate walk-in shower with wow like features, and dual vanities. This home is the perfect blend of style, comfort, and modern convenience, ideal for your next chapter.
Floor plan center
View floor plan details for this property.
- Floor Plans
- Exterior Images
- Interior Images
- Other Media
Explore custom options for this floor plan.
- Choose Option
- Include Features
Neighborhood
Community location & sales center
11705 Canopy Trail
Justin, TX 76247
11705 Canopy Trail
Justin, TX 76247
From 121: Take TX114W. Exit Blue Mound Road. Turn right on Blue Mound Road. Turn left onto FM 407W. Go south on Treeline Drive. Turn right on Canopy Trail. The model will be on your left. From FM 407 go south on Treeline Drive. Turn right on Canopy Trial. The model will be on your left.
Schools near Treeline
- Northwest Independent School District
Actual schools may vary. Contact the builder for more information.
Amenities
Home details
Ready to build
Build the home of your dreams with the Plan 1560 plan by selecting your favorite options. For the best selection, pick your lot in Treeline today!
Community & neighborhood
Local points of interest
- Greenbelt
Utilities
- Electric CoServ
- Gas Centric
- Telephone Centric
- Water/wastewater City of Justin (940) 648-2541
Health and fitness
- Pool
- Trails
Community services & perks
- HOA Fees: $1,975/year
- Playground
- Park
- Community Center
Neighborhood amenities
Homeland
1.61 miles away
904 W 1st St
Essex Community MGT
2.03 miles away
Highway 407
Williams Drive-in
2.03 miles away
303 N FM 156
ALDI
7.98 miles away
1315 N Highway 377
Walmart Supercenter
8.20 miles away
1228 N Highway 377
Vanellie's Bake Shop
2.03 miles away
1242 FM 407
Sweet Cheeks Cake Parlor
4.76 miles away
8436 Brahma Dr
Jenny Layne Bakery
8.13 miles away
815 Stonecrest Rd
Abundant Life Health Foods
8.18 miles away
500 N Highway 377
Abundant Life Health Store
8.18 miles away
500 N Highway 377
Papa Johns
1.14 miles away
1236 FM 407
El Rincon Del Taco
2.03 miles away
2 Gaffield Rd
Honest John's Caddy Corner
2.03 miles away
12603 FM 407
Outlaw Burger & BBQ
2.03 miles away
111 W 4th St
Taco Bell
2.03 miles away
780 S FM 156
Escape Donut
2.03 miles away
501 N FM 156
Speedway Donuts
2.27 miles away
950 S FM 156
Champ Donut
4.90 miles away
3556 Highway 114
Starbucks
4.93 miles away
3572 Highway 114
Kimzey's Coffee
6.06 miles away
429 Highway 377 N
Blumar Boutique LLC
1.98 miles away
9240 Tay Ln
J J's Designs & Boutique
2.03 miles away
107 W 4th St
Aerie Outlet
5.10 miles away
15837 North Fwy
American Eagle & Aerie Outlet
5.10 miles away
15837 North Fwy
Mule Barn Sports Bar & Grill
2.13 miles away
218 S FM 156
J Bar Corral Club
2.39 miles away
9686 Industrial Rd
Buffalo Wild Wings
4.79 miles away
3488 Highway 114
Twin Peaks
5.29 miles away
13740 Raceway Dr
Bella Italian B
5.95 miles away
101 Plaza Pl
Please note this information may vary. If you come across anything inaccurate, please contact us.
American Legend Homes is a family and employee-owned, award-winning organization focused on thoughtful designs, quality craftsmanship and superior customer service. Since 2003 we’ve built thousands of homes in North Texas and are proud to have expanded into Northern Colorado in 2018.
Drawing upon a combined 75 years of homebuilding experience, our leadership team ensures that every member of the American Legend family understands the critical role they play in building trust and developing long term relationships with each homeowner.
“Built for the way you live” isn’t just a tagline; it’s an operating mantra that defines who we are and our commitment to provide the absolute best customer experience throughout the homebuilding process.
We take an immense amount of pride in making dream homes a reality, and would be honored to partner with you on that journey.
Take the next steps toward your new home
Plan 1560 Plan by American Legend Homes
saved to favorites!
To see all the homes you’ve saved, visit the My Favorites section of your account.
Discover More Great Communities
Select additional listings for more information
We're preparing your brochure
You're now connected with American Legend Homes. We'll send you more info soon.
The brochure will download automatically when ready.
Brochure downloaded successfully
Your brochure has been saved. You're now connected with American Legend Homes, and we've emailed you a copy for your convenience.
The brochure will download automatically when ready.
Way to Go!
You’re connected with American Legend Homes.
The best way to find out more is to visit the community yourself!