Plan 1575 Plan
Ready to build
Coming Soon, Lakewood Village TX 75068
Home by American Legend Homes

Last updated 1 day ago
The Price Range displayed reflects the base price of the homes built in this community.
You get to select from the many different types of homes built by this Builder and personalize your New Home with options and upgrades.
3 BR
2 BA
2.5 GR
1,800 SQ FT

Exterior 1/9
Overview
1 Story
1800 Sq Ft
2 Bathrooms
2.5 Car Garage
3 Bedrooms
Primary Bed Downstairs
Single Family
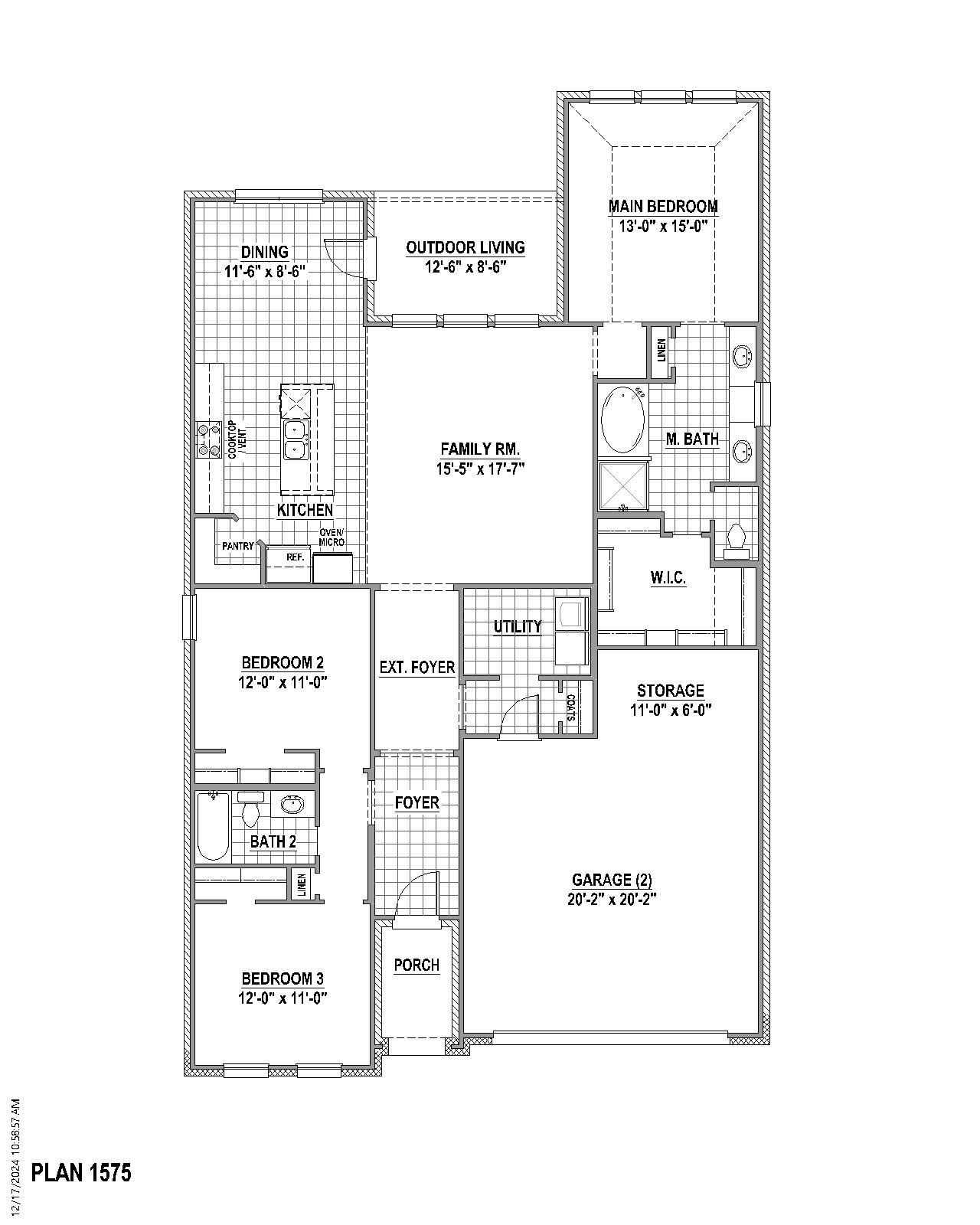
Plan 1575 Plan Info
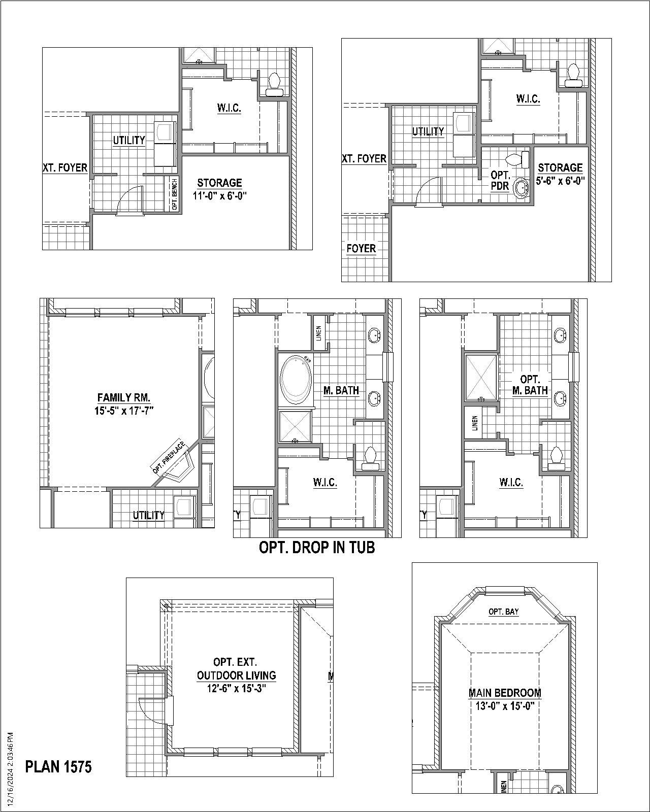
You will fall in love with this adorable 1-story home with 3 Bedrooms and 2 Full Baths. Located on either side of the extended foyer are two secondary bedrooms with a full bath and the garage with additional storage space that can be used for storage or workout area. Floor-to-ceiling windows across the back of the home provide plenty of natural light and provide a view of the covered outdoor living space. The open concept plan flows directly into the kitchen, which features a walk-in pantry and a large center island, perfect for entertaining. Also situated at the back of the home for added privacy, the main bedroom retreat boasts vaulted ceilings, an ensuite bathroom with soaking tub and walk-in shower, as well as a large walk-in closet. This home was designed to customize many options to fit your needs, which can include an additional bathroom, extended outdoor living space, main bedroom bay windows and much more. Please reach out to your Sale Associate for more information.
Floor plan center
View floor plan details for this property.
- Floor Plans
- Exterior Images
- Interior Images
- Other Media
Explore custom options for this floor plan.
- Choose Option
- Include Features
Neighborhood
Community location & sales center
Coming Soon
Lakewood Village, TX 75068
Coming Soon
Lakewood Village, TX 75068
From I35 Exit Swisher Rd and go East. Go across Lewisville Lake Toll Bridge. Right on Lakewood Village Drive Right on Enclave Drive. Model: 121 Enclave Drive From DNT Exit Eldorado Pkwy and go West. Left on Lakewood Village Drive. Right on Enclave Drive. Model: 121 Enclave Drive From 121 Exit Main and go North. Left on Eldorado Pkwy. Left on Lakewood Village Drive. Right on Enclave Drive. Model: 121 Enclave Drive From 380 Exit 720 and go South. Right on Eldorado Pkwy. Left on Lakewood Village Drive. Right on Enclave Drive. Model: 121 Enclave Drive NOTE: Model is under construction. Please call for an appointment.
Nearby schools
Little Elm Independent School District
High school. Grades 9 to 12.
- Public school
- Teacher - student ratio: 1:18
- Students enrolled: 2514
1900 Walker Ln, Little Elm, TX, 75068
972-947-9443
Actual schools may vary. We recommend verifying with the local school district, the school assignment and enrollment process.
Amenities
Home details
Ready to build
Build the home of your dreams with the Plan 1575 plan by selecting your favorite options. For the best selection, pick your lot in Lakewood Village 50s today!
Community & neighborhood
Utilities
- Gas Atmos (888) 286-6700
- Telephone AT&T (833) 815-1260
- Water/wastewater Town of Lakewood Village (972) 294-5555
Health and fitness
- Trails
Community services & perks
- HOA fees: Unknown, please contact the builder
- Playground
American Legend Homes is a family and employee-owned, award-winning organization focused on thoughtful designs, quality craftsmanship and superior customer service. Since 2003 we’ve built thousands of homes in North Texas and are proud to have expanded into Northern Colorado in 2018.
Drawing upon a combined 75 years of homebuilding experience, our leadership team ensures that every member of the American Legend family understands the critical role they play in building trust and developing long term relationships with each homeowner.
“Built for the way you live” isn’t just a tagline; it’s an operating mantra that defines who we are and our commitment to provide the absolute best customer experience throughout the homebuilding process.
We take an immense amount of pride in making dream homes a reality, and would be honored to partner with you on that journey.
Plan 1575 Plan by American Legend Homes
saved to favorites!
To see all the homes you’ve saved, visit the My Favorites section of your account.
Discover More Great Communities
Select additional listings for more information
We're preparing your brochure
You're now connected with American Legend Homes. We'll send you more info soon.
The brochure will download automatically when ready.
Brochure downloaded successfully
Your brochure has been saved. You're now connected with American Legend Homes, and we've emailed you a copy for your convenience.
The brochure will download automatically when ready.
Way to Go!
You’re connected with American Legend Homes.
The best way to find out more is to visit the community yourself!