Plan Foxleigh Plan
Ready to build
1018 Monterra Way, Fate TX 75087
Home by Highland Homes

Last updated 2 days ago
The Price Range displayed reflects the base price of the homes built in this community.
You get to select from the many different types of homes built by this Builder and personalize your New Home with options and upgrades.
4 BR
3.5 BA
3 GR
3,497 SQ FT

Elevation CB 1/68
Special offers
Explore the latest promotions at Monterra: 70ft. lots. Contact Highland Homes to learn more!
$20K + Kitchen Upgrade Event Limited Time Savings!
Overview
1 Half Bathroom
2 Stories
Dining Room
Living Room
Primary Bed Downstairs
Single Family
Plan Foxleigh Plan Info
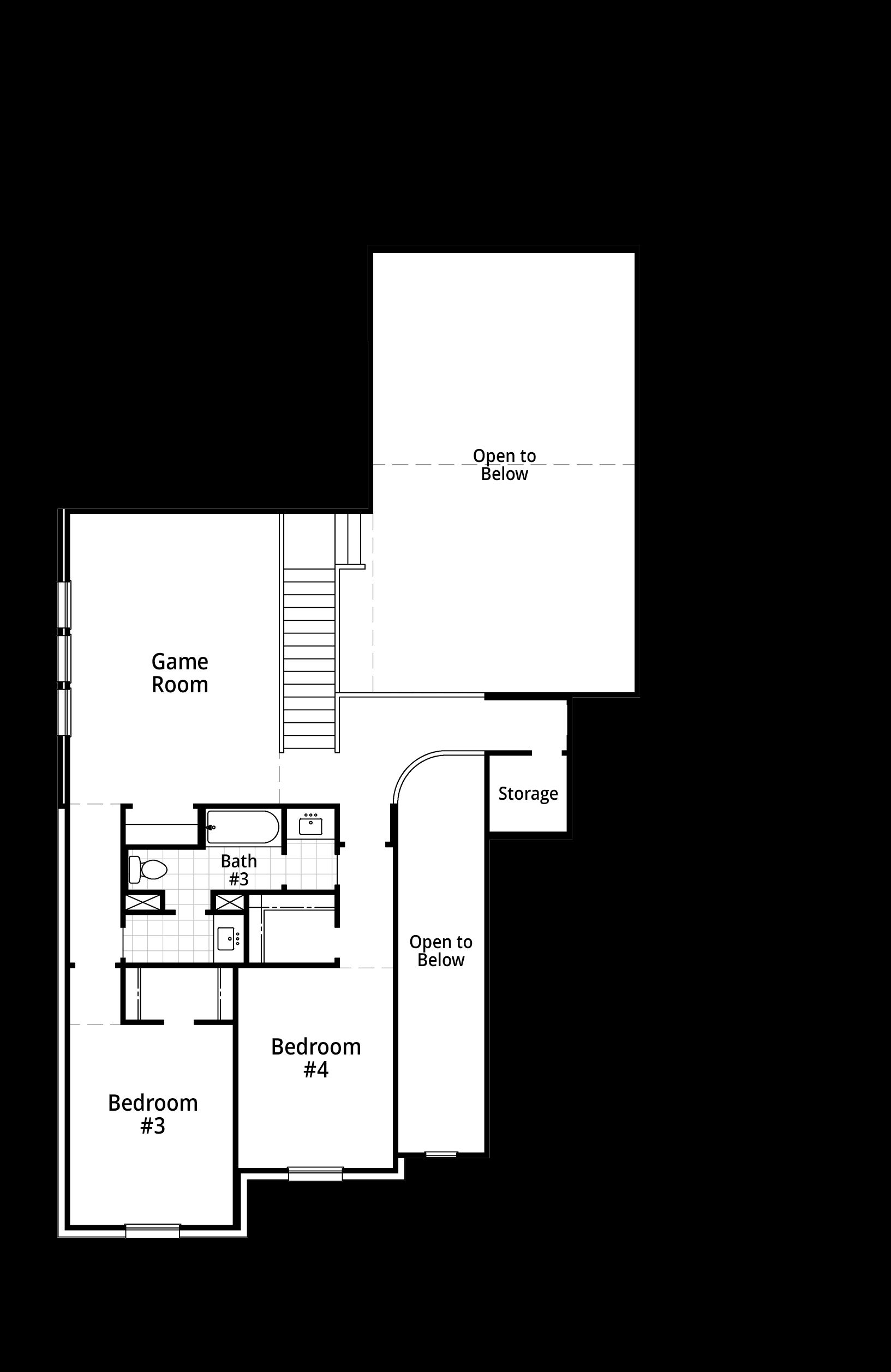
The Foxleigh is an impressive two-story home that offers 3,492 square feet of beautifully designed living space. Entering through the foyer, you'll find a study and secondary bedroom with a private bath. The open-concept kitchen, complete with a central island, flows into the dining and family rooms, providing seamless access to a spacious patio for outdoor enjoyment. The main floor also features a luxurious primary suite with an expansive bath and an entertainment room for relaxation or gatherings. The three-car tandem garage offers ample storage and convenient home access. A stylish staircase leads to the upper level, where a game room and additional storage space are complemented by Bedrooms Three and Four, sharing a well-appointed bath. This home is perfect for family living and entertaining.
Floor plan center
View floor plan details for this property.
- Floor Plans
- Exterior Images
- Interior Images
- Other Media
Neighborhood
Community location & sales center
1018 Monterra Way
Fate, TX 75087
1018 Monterra Way
Fate, TX 75087
From Dallas Eastbound on I-30. Exit 70 – FM 3549. Turn Left (North) on FM 3549 / N. Stodghill Rd . Continue for 1.2 miles . Turn Right (East) on TX Hwy 66. Continue for 1 mile. Turn Left on Ben Payne Rd. Continue for .8 miles. Turn Left on Monterra Way.
Nearby schools
Rockwall Independent School District
Celia Hays Elementary School
Elementary-Middle school. Grades PK to 6.
Public school
Teacher - student ratio: 1:15
Students enrolled: 517
469-698-2800
1880 Tannerson Dr, Rockwall, TX, 75087
J. W. Williams Middle School
Middle school. Grades 7 to 8.
Public school
Teacher - student ratio: 1:19
Students enrolled: 828
972-771-8313
625 E Fm 552, Rockwall, TX, 75087
Rockwall High School
High school. Grades 10 to 12.
Public school
Teacher - student ratio: 1:17
Students enrolled: 2867
972-771-7339
901 W Yellowjacket Ln, Rockwall, TX, 75087
GreatSchools ratings are provided by GreatSchools.org and are for reference only. Ratings may not be available for all schools. Please verify school assignments and details with the local school district.
Amenities
Home details
Ready to build
Build the home of your dreams with the Plan Foxleigh plan by selecting your favorite options. For the best selection, pick your lot in Monterra: 70ft. lots today!
Community & neighborhood
Health and fitness
- Trails
Community services & perks
- Playground
Highland Homes was founded in 1985 by brother and sister team Rod Sanders and Jean Ann Brock. With Rod’s keen business knowledge and Jean Ann’s innovative approach to sales, marketing and architecture, 13 homes were sold in the first month of operation during one of the toughest real estate markets the nation has seen to date. Highland quickly grew to become one of the leading single-family homebuilders in the United States. Today, we build over 3,500 homes a year in Austin, Dallas-Fort Worth, Houston and San Antonio, Texas. Rod and Jean Ann’s commitment to quality and customer satisfaction has earned Highland many industry awards, including consistent high rankings by J.D. Power and Associates, winning the People’s Choice Builder of the Year award ten times and winning several architectural design awards. Though these accolades are wonderful, our top honor comes through repeat customers and referrals from homeowners and real estate professionals across Texas. At Highland, we consider our talented team of associates an extension of our family, and were ranked #6 by Texas Monthly’s 50 Best Companies to Work for in Texas, as well as a certified Best Place to Work. Today, Highland Homes is 100% employee-owned and still dedicated to providing the best possible homebuilding and home-buying experience. You can be certain that Highland Homes remains committed to our mission statement of “delivering homes we are proud of” and ensuring each Highland homeowner realizes their American Dream.
TrustBuilder reviews
Take the next steps toward your new home
Plan Foxleigh Plan by Highland Homes
saved to favorites!
To see all the homes you’ve saved, visit the My Favorites section of your account.
Discover More Great Communities
Select additional listings for more information
We're preparing your brochure
You're now connected with Highland Homes. We'll send you more info soon.
The brochure will download automatically when ready.
Brochure downloaded successfully
Your brochure has been saved. You're now connected with Highland Homes, and we've emailed you a copy for your convenience.
The brochure will download automatically when ready.
Way to Go!
You’re connected with Highland Homes.
The best way to find out more is to visit the community yourself!