Preston Plan
Ready to build
Chesterfield VA 23838
Home by Richmond American Homes
Last updated 20 hours ago
The Price Range displayed reflects the base price of the homes built in this community.
You get to select from the many different types of homes built by this Builder and personalize your New Home with options and upgrades.
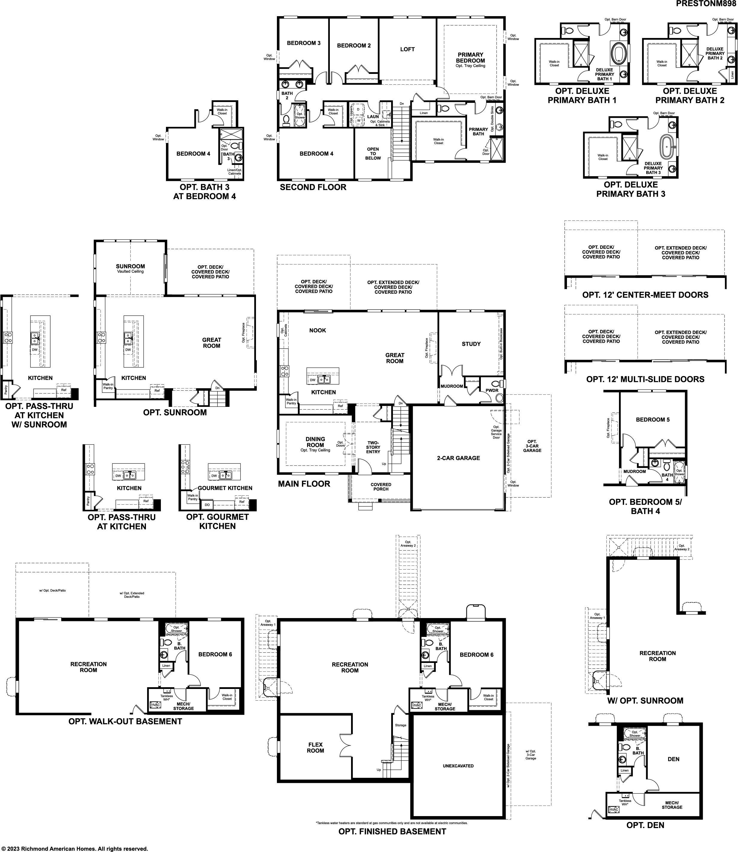
5 BR
3.5 BA
2 GR
3,240 SQ FT

Preston-M898-MidAtlantic Masterplan Elevation D 1/10
Special offers
Explore the latest promotions at Reserve at Summerford. Contact Richmond American Homes to learn more!
Richmond-area Homes of the Week
Get today's best offer...
Overview
1 Half Bathroom
2 Stories
Primary Bed Upstairs
Single Family
Preston Plan Info
The Preston plan greets guests with an inviting covered porch, and continues to impress with a formal dining room, spacious great room and well-appointed kitchen featuring a center island, walk-in pantry and nook. A mudroom, powder room and private study round out the main floor. Upstairs, discover a central laundry, a large loft, three secondary bedrooms with a shared bath and an elegant owner's suite boasting an attached bath and expansive walk-in closet. Additional features may include a gourmet kitchen, sunroom, extra bedroom or a covered patio!
Floor plan center
View floor plan details for this property.
- Floor Plans
- Exterior Images
- Interior Images
- Other Media
Explore custom options for this floor plan.
- Choose Option
- Include Features
Neighborhood
Community location
9618 Summercreek Trail
Chesterfield, VA 23832
13207 Killbarney Drive
Chesterfield, VA 23838
888-886-2128
From VA-288, take exit onto US-360W/Hull Street Road toward Amelia. Continue on Hull Street Road for about five miles then turn left onto Otterdale Road. At the traffic circle, continue straight to stay on Otterdale Road. At the second traffic circle, continue straight to stay on Otterdale Road. Turn left onto Verneham Drive. Turn right onto Millwright Road. Community is ahead.
Nearby schools
Chesterfield County Public Schools
Winterpock Elementary School
Elementary school. Grades KG to 5.
Public school
Teacher - student ratio: 1:16
Students enrolled: 760
804-763-5051
9000 Elementary Way Loop, Chesterfield, VA, 23832
GreatSchools ratings are provided by GreatSchools.org and are for reference only. Ratings may not be available for all schools. Please verify school assignments and details with the local school district.
Amenities
Home details
Ready to build
Build the home of your dreams with the Preston plan by selecting your favorite options. For the best selection, pick your lot in Reserve at Summerford today!
Community & neighborhood
Social activities
- Kings Dominion
Health and fitness
- Golf Course
- Trails
Community services & perks
- Playground
What sets Richmond American Homes companies apart from other leading homebuilders? Many will say it's the inspired floor plans, incredible included features, quality construction and unwavering commitment to customer satisfaction. Although these all play a role, personalization is what truly makes the difference. The company may have built more than 210,000 homes over the last 40+ years, but each one turns out anything but cookie cutter!
How do we make each Richmond American home unique? By offering homebuyers who build a new home from the ground up the opportunity to choose from hundreds of fixture and finish options at our innovative Home Gallery™ design centers across the country. From the kitchen cabinets and countertops to the surround sound, there are countless opportunities to tailor the floor plans, along with seasoned advice to assist customers every step of the way.
The Richmond American Homes companies have homebuilding operations in several states, including Arizona, California, Colorado, Florida, Idaho, Maryland, Nevada, Oregon, Pennsylvania, Utah, Virginia and Washington. With an impressive lineup of ranch, two-story and three-story floor plans, and several sought-after home collections available, there are options that appeal to a wide range of homebuyers at a variety of price points. Customers can also take advantage of the one-stop shopping convenience offered by Richmond American’s affiliates, HomeAmerican Mortgage Corporation, American Home Insurance Agency, Inc. and American Home Title and Escrow Company. Together, these companies offer a streamlined homebuying experience from start to finish. Discover your dream home—and make it your own—today!
TrustBuilder reviews
Take the next steps toward your new home
Preston Plan by Richmond American Homes
saved to favorites!
To see all the homes you’ve saved, visit the My Favorites section of your account.
Discover More Great Communities
Select additional listings for more information
We're preparing your brochure
You're now connected with Richmond American Homes. We'll send you more info soon.
The brochure will download automatically when ready.
Brochure downloaded successfully
Your brochure has been saved. You're now connected with Richmond American Homes, and we've emailed you a copy for your convenience.
The brochure will download automatically when ready.
Way to Go!
You’re connected with Richmond American Homes.
The best way to find out more is to visit the community yourself!