Primrose Plan
Ready to build
5805 Chestnut Lane, Haines City FL 33844
Home by Meritage Homes
Last updated 2 days ago
The Price Range displayed reflects the base price of the homes built in this community.
You get to select from the many different types of homes built by this Builder and personalize your New Home with options and upgrades.
4 BR
3 BA
2 GR
2,631 SQ FT

Office modeled at The Meadow at Crossprairie 1/21
Overview
2 Stories
Green Construction
Single Family
Primrose Plan Info
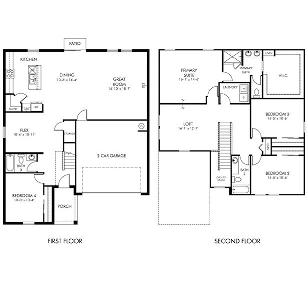
Entertain guests with ease with an open kitchen which overlooks the dining and great room. First floor flex space can be best used to fit your family's needs. Upstairs primary suite features an oversized walk-in closet.
Floor plan center
View floor plan details for this property.
- Floor Plans
- Exterior Images
- Interior Images
- Other Media
Neighborhood
Community location & sales center
5805 Chestnut Lane
Haines City, FL 33844
5805 Chestnut Lane
Haines City, FL 33844
888-237-2081
From Downtown Orlando, take I-4 West towards Tampa. Take Exit 58 towards Poinciana/Kissimmee. Turn left onto Champions Gate Blvd./Osceola Polk Line Road. Turn right onto Heritage Pass, turn left onto Polk 54/Ronald Reagan Pkwy, then turn right at the first cross street onto Pine Tree Trail. Turn left onto Earnie Caldwell Blvd, then right onto County Rd 547/Lee Jackson Hwy, then turn left onto W Bay Street/Davenport Blvd. Turn right onto US-17/92, turn left onto South Blvd W, then take a slight left toward Power Line Road. Turn left onto Carl Boozer Rd, right at the first cross street onto Crosswinds E Blvd, then turn right onto Katrina Drive and arrive at the community.
Schools near Crosswinds - Signature Series
- Polk County Public Schools
Actual schools may vary. Contact the builder for more information.
Amenities
Home details
Green program
Setting the standard for Energy Efficiency
Ready to build
Build the home of your dreams with the Primrose plan by selecting your favorite options. For the best selection, pick your lot in Crosswinds - Signature Series today!
Community & neighborhood
Local points of interest
- True Blue Winery
- Legoland Florida
Community services & perks
- HOA fees: Unknown, please contact the builder
Open the door to Life. Built. Better.® with an experienced homebuilder known for quality construction, designer-curated interiors, award-winning energy efficiency and a simplified buying process. Since 1985, Meritage Homes® has delivered more than 180,000 homes across Arizona, California, Colorado, Utah, Texas, Florida, Georgia, North Carolina, South Carolina and Tennessee. Take the next step toward your dream home and discover the Meritage difference.
Take the next steps toward your new home
Primrose Plan by Meritage Homes
saved to favorites!
To see all the homes you’ve saved, visit the My Favorites section of your account.
Discover More Great Communities
Select additional listings for more information
We're preparing your brochure
You're now connected with Meritage Homes. We'll send you more info soon.
The brochure will download automatically when ready.
Brochure downloaded successfully
Your brochure has been saved. You're now connected with Meritage Homes, and we've emailed you a copy for your convenience.
The brochure will download automatically when ready.
Way to Go!
You’re connected with Meritage Homes.
The best way to find out more is to visit the community yourself!