Primrose Plan
Ready to build
707 Sunshower Drive, Lady Lake FL 32159
Home by Meritage Homes
Last updated 03/02/2026
The Price Range displayed reflects the base price of the homes built in this community.
You get to select from the many different types of homes built by this Builder and personalize your New Home with options and upgrades.
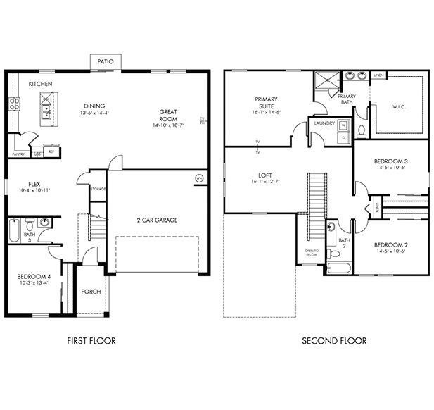
4 BR
3 BA
2 GR
2,631 SQ FT

Office modeled at The Meadow at Crossprairie 1/21
Overview
2 Stories
Green Construction
Single Family
Primrose Plan Info
Entertain guests with ease with an open kitchen which overlooks the dining and great room. First floor flex space can be best used to fit your family's needs. Upstairs primary suite features an oversized walk-in closet.
Floor plan center
View floor plan details for this property.
- Floor Plans
- Exterior Images
- Interior Images
- Other Media
Neighborhood
Community location & sales center
707 Sunshower Drive
Lady Lake, FL 32159
707 Sunshower Drive
Lady Lake, FL 32159
888-897-5565
Take Florida's Turnpike North towards Ocala. Take the exit to US-27 and continue straight. Turn left onto US-441 and continue straight until you get to Lady Lake Bld., then turn left. Turn left onto Arlington Ave. then right onto Sunshower Lane. Turn left onto Rolling Acres Road and the community with be on your right.
Schools near The Reserve at Hammock Oaks - Signature Series
- Lake County School District
Actual schools may vary. Contact the builder for more information.
Amenities
Home details
Green program
Setting the standard for Energy Efficiency
Ready to build
Build the home of your dreams with the Primrose plan by selecting your favorite options. For the best selection, pick your lot in The Reserve at Hammock Oaks - Signature Series today!
Community & neighborhood
Local points of interest
- Chula Vista Recreation
- Lake Griffin State Park
- Lake Square Mall
- Spanish Springs Town Square
Open the door to Life. Built. Better.® with an experienced homebuilder known for quality construction, designer-curated interiors, award-winning energy efficiency and a simplified buying process. Since 1985, Meritage Homes® has delivered more than 180,000 homes across Arizona, California, Colorado, Utah, Texas, Florida, Georgia, North Carolina, South Carolina and Tennessee. Take the next step toward your dream home and discover the Meritage difference.
Take the next steps toward your new home
Primrose Plan by Meritage Homes
saved to favorites!
To see all the homes you’ve saved, visit the My Favorites section of your account.
Discover More Great Communities
Select additional listings for more information
We're preparing your brochure
You're now connected with Meritage Homes. We'll send you more info soon.
The brochure will download automatically when ready.
Brochure downloaded successfully
Your brochure has been saved. You're now connected with Meritage Homes, and we've emailed you a copy for your convenience.
The brochure will download automatically when ready.
Way to Go!
You’re connected with Meritage Homes.
The best way to find out more is to visit the community yourself!