Redwood w/Loft Plan
Ready to build
20045 S 229th Way, Queen Creek AZ 85142
Home by Fulton Homes
Last updated 3 days ago
The Price Range displayed reflects the base price of the homes built in this community.
You get to select from the many different types of homes built by this Builder and personalize your New Home with options and upgrades.
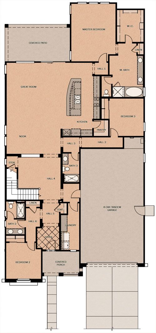
5 BR
4 BA
4 GR
3,595 SQ FT

Elevation C 1/5
Special offers
Explore the latest promotions at Groves at Barney Farms. Contact Fulton Homes to learn more!
Special Offers on Select Inventory Homes
Overview
2 Stories
3595 Sq Ft
4 Bathrooms
4 Car Garage
5 Bedrooms
Breakfast Area
Covered Patio
Dining Room
Family Room
Green Construction
Guest Room
Loft
Office
Primary Bed Downstairs
Single Family
Study
Walk-In Closets
Redwood w/Loft Plan Info
The Redwood with loft at 3595 sqaure feet has three bedrooms and three baths on the first level, a four car garagel and 2 additional bedrooms and a bathroom in the loft. It can also add a dual master, retreat, or additional bedroom on the first level.
Floor plan center
View floor plan details for this property.
- Floor Plans
- Exterior Images
- Interior Images
- Other Media
Explore custom options for this floor plan.
- Choose Option
- Include Features
Neighborhood
Community location & sales center
20045 S 229th Way
Queen Creek, AZ 85142
20045 S 229th Way
Queen Creek, AZ 85142
888-336-2843
Queen Creek & Signal Butte Rd.
Nearby schools
Queen Creek Unified District
Elementary-Middle school. Grades PK to 6.
- Public school
- Teacher - student ratio: 1:22
- Students enrolled: 703
19684 S. 225th Pl, Queen Creek, AZ, 85142
480-987-7490
Middle school. Grades 7 to 8.
- Public school
- Teacher - student ratio: 1:17
- Students enrolled: 554
20435 S Old Ellsworth Rd, Queen Creek, AZ, 85142
480-987-5940
High school. Grades 9 to 12.
- Public school
- Teacher - student ratio: 1:22
- Students enrolled: 2233
22149 E Ocotillo Rd, Queen Creek, AZ, 85142
480-987-5973
Actual schools may vary. We recommend verifying with the local school district, the school assignment and enrollment process.
Amenities
Home details
Green program
Energy Star
Ready to build
Build the home of your dreams with the Redwood W/Loft plan by selecting your favorite options. For the best selection, pick your lot in Groves at Barney Farms today!
Community & neighborhood
Local points of interest
- Greenbelt
- Views
- Lake
- WaterFront Lots
- Marina
- Fishing
- MountainViews
- WaterfrontViews
Social activities
- Club House
- AmenityCenter
- BBQAreas
- BocceBallCourt
- ConferenceRoom/Hall
- Cornhole
- EventCenter
- EventLawn
- OutdoorFireplace
- Pavillion/Ramada
- PicnicArea
Health and fitness
- Pool
- Trails
- Volleyball
- Basketball
- LapPool
- OutdoorPool
- Pickleball
- SportsCourts
Community services & perks
- HOA fees: Yes, please contact the builder
- Playground
- Park
- Community Center
- PlayLawn
- TotLot
- Waterpark
Neighborhood amenities
Safeway
1.95 miles away
40950 N Ironwood Dr
ALDI
2.61 miles away
20229 S Ellsworth Rd
Walmart Supercenter
2.64 miles away
21055 E Rittenhouse Rd
Costco Wholesale
2.66 miles away
20260 S Ellsworth Rd
Sprouts Farmers Market
2.97 miles away
21181 S Ellsworth Loop Rd
Walmart Bakery
2.64 miles away
21055 E Rittenhouse Rd
Einstein Bros Bagels
3.02 miles away
21202 S Ellsworth Loop Rd
Homer's Smokehouse
1.45 miles away
1532 W Ocotillo Rd
Maritza's Pupusas
1.45 miles away
1532 W Ocotillo Rd
Americano Ammunition Coffee
1.45 miles away
1522 W Ocotillo Rd
Freddy's Frozen Custard & Steakburgers
1.90 miles away
41020 N Ironwood Dr
Culver's
1.92 miles away
140 W Ocotillo Rd
Americano Ammunition Coffee
1.45 miles away
1522 W Ocotillo Rd
Starbucks
1.95 miles away
40950 N Ironwood Dr
Starbucks
2.00 miles away
40889 N Ironwood Dr
Dunkin'
2.11 miles away
40615 N Gantzel Rd
Dunkin'
2.49 miles away
21148 E Rittenhouse Rd
Walmart Supercenter
2.64 miles away
21055 E Rittenhouse Rd
Famous Footwear
2.85 miles away
21128 S Ellsworth Rd
Torrid
3.06 miles away
21576 S Ellsworth Loop Rd
T.J. Maxx
3.12 miles away
21566 S Ellsworth Loop Rd
Ross Dress For Less
3.15 miles away
21556 S Ellsworth Loop Rd
Over Easy
2.51 miles away
21152 E Rittenhouse Rd
Uncle Bear's Grill & Tap
2.60 miles away
21151 E Rittenhouse Rd
H+L Lounge
2.87 miles away
21455 S Ellsworth Rd
Dave & Buster's
2.96 miles away
21000 S Ellsworth Loop Rd
Old Ellsworth Brewing Company
2.96 miles away
22005 S Ellsworth Rd
Please note this information may vary. If you come across anything inaccurate, please contact us.
At Fulton Homes, we don't just build homes; we build neighborhoods and communities that stand the test of time.We proudly invite you to not only visit our active communities, but those sold out years ago.You will immediately see the difference found in a Fulton Homes neighborhood. How many builders would invite you to visit their old neighborhoods?Because of our singular focus on Arizona, we understand the best locations in the Valley to live. This is why you'll find Fulton Homes communities near freeways, shopping, employment and other amenities.We believe the quality of lifestyle is an important factor, which is why you'll find more parks and green spaces in a Fulton community. It is also why you'll find unique amenities like aquatic centers, parks, and tot-lots.
TrustBuilder reviews
Take the next steps toward your new home
Redwood w/Loft Plan by Fulton Homes
saved to favorites!
To see all the homes you’ve saved, visit the My Favorites section of your account.
Discover More Great Communities
Select additional listings for more information
We're preparing your brochure
You're now connected with Fulton Homes. We'll send you more info soon.
The brochure will download automatically when ready.
Brochure downloaded successfully
Your brochure has been saved. You're now connected with Fulton Homes, and we've emailed you a copy for your convenience.
The brochure will download automatically when ready.
Way to Go!
You’re connected with Fulton Homes.
The best way to find out more is to visit the community yourself!