Residence 2 Plan
Ready to build
2450 Meganos Road, Brentwood CA 94513
Home by Meritage Homes
at Casacala
Last updated 03/02/2026
The Price Range displayed reflects the base price of the homes built in this community.
You get to select from the many different types of homes built by this Builder and personalize your New Home with options and upgrades.
4 BR
3 BA
2 GR
2,310 SQ FT

Living Room 1/6
Overview
2 Stories
Green Construction
Single Family
Residence 2 Plan Info
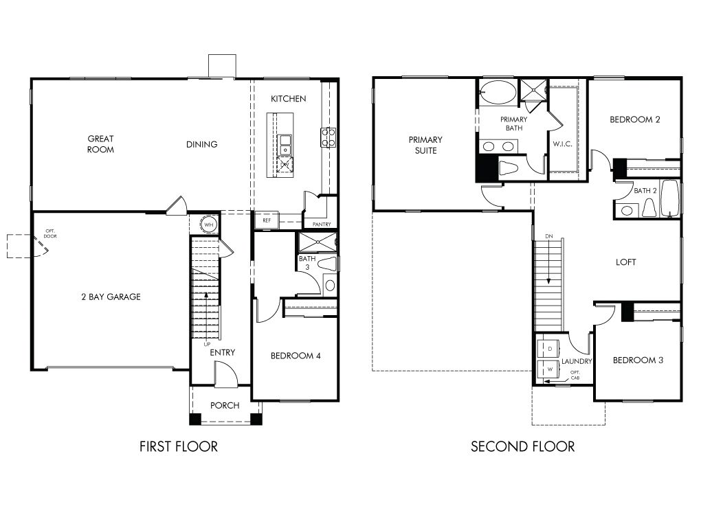
The open-concept great room seamlessly flows into the dining space and kitchen, bringing everyone together, while the upstairs layout provides privacy for everyone with a spacious loft separating the two secondary bedrooms.
Floor plan center
View floor plan details for this property.
- Floor Plans
- Exterior Images
- Interior Images
- Other Media
Neighborhood
Community location & sales center
2450 Meganos Road
Brentwood, CA 94513
2450 Meganos Road
Brentwood, CA 94513
888-995-8283
Schools near Casacala
- Brentwood Union Elementary School District
- Knightsen Elementary School District
- Liberty Union High School District
Actual schools may vary. Contact the builder for more information.
Amenities
Home details
Green program
Setting the standard for Energy Efficiency
Ready to build
Build the home of your dreams with the Residence 2 plan by selecting your favorite options. For the best selection, pick your lot in Casacala today!
Community & neighborhood
Local points of interest
- Sunset Park Athletic Complex
- Brentwood Golf Club
Open the door to Life. Built. Better.® with an experienced homebuilder known for quality construction, designer-curated interiors, award-winning energy efficiency and a simplified buying process. Since 1985, Meritage Homes® has delivered more than 180,000 homes across Arizona, California, Colorado, Utah, Texas, Florida, Georgia, North Carolina, South Carolina and Tennessee. Take the next step toward your dream home and discover the Meritage difference.
Take the next steps toward your new home
Residence 2 Plan by Meritage Homes
saved to favorites!
To see all the homes you’ve saved, visit the My Favorites section of your account.
Discover More Great Communities
Select additional listings for more information
We're preparing your brochure
You're now connected with Meritage Homes. We'll send you more info soon.
The brochure will download automatically when ready.
Brochure downloaded successfully
Your brochure has been saved. You're now connected with Meritage Homes, and we've emailed you a copy for your convenience.
The brochure will download automatically when ready.
Way to Go!
You’re connected with Meritage Homes.
The best way to find out more is to visit the community yourself!