Residence 2 Plan
Ready to build
9268 Chiffonade Way, Sacramento CA 95829
Home by Meritage Homes
at Vinterra
Last updated 17 hours ago
The Price Range displayed reflects the base price of the homes built in this community.
You get to select from the many different types of homes built by this Builder and personalize your New Home with options and upgrades.
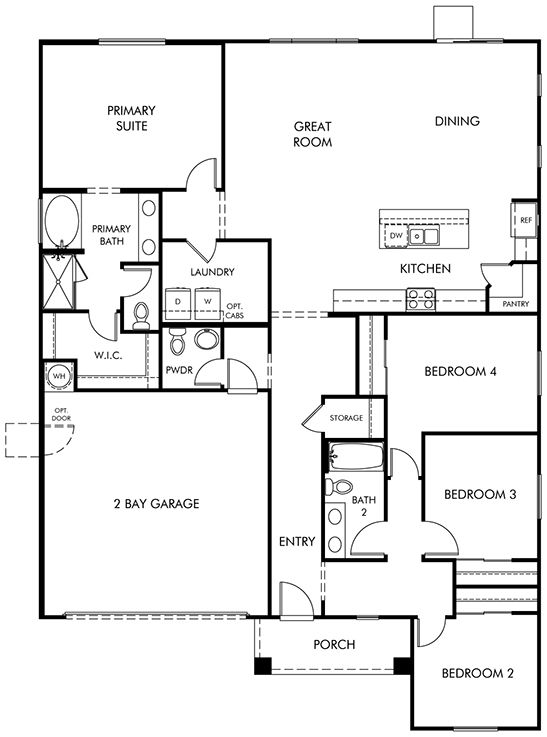
4 BR
2.5 BA
2 GR
2,030 SQ FT

Plan Diagram 1/1
Overview
1 Half Bathroom
1 Story
Green Construction
Primary Bed Downstairs
Single Family
Residence 2 Plan Info
The primary suite is nestled in the rear of this single-story home, opposite the three secondary bedrooms, creating a serene retreat. The primary bath features both a shower and soaking tub, plus a dual sink vanity and a large walk-in closet.
Floor plan center
View floor plan details for this property.
- Floor Plans
- Exterior Images
- Interior Images
- Other Media
Neighborhood
Community location & sales center
9268 Chiffonade Way
Sacramento, CA 95829
9268 Chiffonade Way
Sacramento, CA 95829
Nearby schools
Elk Grove Unified School District
Sierra-enterprise Elementary School
Elementary-Middle school. Grades KG to 6.
Public school
Teacher - student ratio: 1:20
Students enrolled: 521
916-381-2767
9115 Fruitridge Rd, Sacramento, CA, 95826
Katherine L. Albiani Middle School
Middle school. Grades 7 to 8.
Public school
Teacher - student ratio: 1:21
Students enrolled: 1307
916-686-5210
9140 Bradshaw Rd, Elk Grove, CA, 95624
Pleasant Grove High School
High school. Grades 9 to 12.
Public school
Teacher - student ratio: 1:22
Students enrolled: 2520
916-686-0230
9531 Bond Rd, Elk Grove, CA, 95624
GreatSchools ratings are provided by GreatSchools.org and are for reference only. Ratings may not be available for all schools. Please verify school assignments and details with the local school district.
Amenities
Home details
Green program
Setting the standard for Energy Efficiency
Ready to build
Build the home of your dreams with the Residence 2 plan by selecting your favorite options. For the best selection, pick your lot in Vinterra today!
Community & neighborhood
Local points of interest
- WildHawk Golf Club
Open the door to Life. Built. Better.® with an experienced homebuilder known for quality construction, designer-curated interiors, award-winning energy efficiency and a simplified buying process. Since 1985, Meritage Homes® has delivered more than 180,000 homes across Arizona, California, Colorado, Utah, Texas, Florida, Georgia, North Carolina, South Carolina and Tennessee. Take the next step toward your dream home and discover the Meritage difference.
Take the next steps toward your new home
Residence 2 Plan by Meritage Homes
saved to favorites!
To see all the homes you’ve saved, visit the My Favorites section of your account.
Discover More Great Communities
Select additional listings for more information
We're preparing your brochure
You're now connected with Meritage Homes. We'll send you more info soon.
The brochure will download automatically when ready.
Brochure downloaded successfully
Your brochure has been saved. You're now connected with Meritage Homes, and we've emailed you a copy for your convenience.
The brochure will download automatically when ready.
Way to Go!
You’re connected with Meritage Homes.
The best way to find out more is to visit the community yourself!