Villas at Walters Place
Residence 5
1220 Walters Court, Concord, CA, 94520
by Discovery Homes
From $799,000 This is the starting price for this plan and is subject to change.
- 3 Beds
- 3 Baths
- 2 Car garage
- 1,838 Sq Ft
Overview
Floor plan features
- 3 Stories
- Multi Family
- Primary Bed Downstairs
Floor plan description
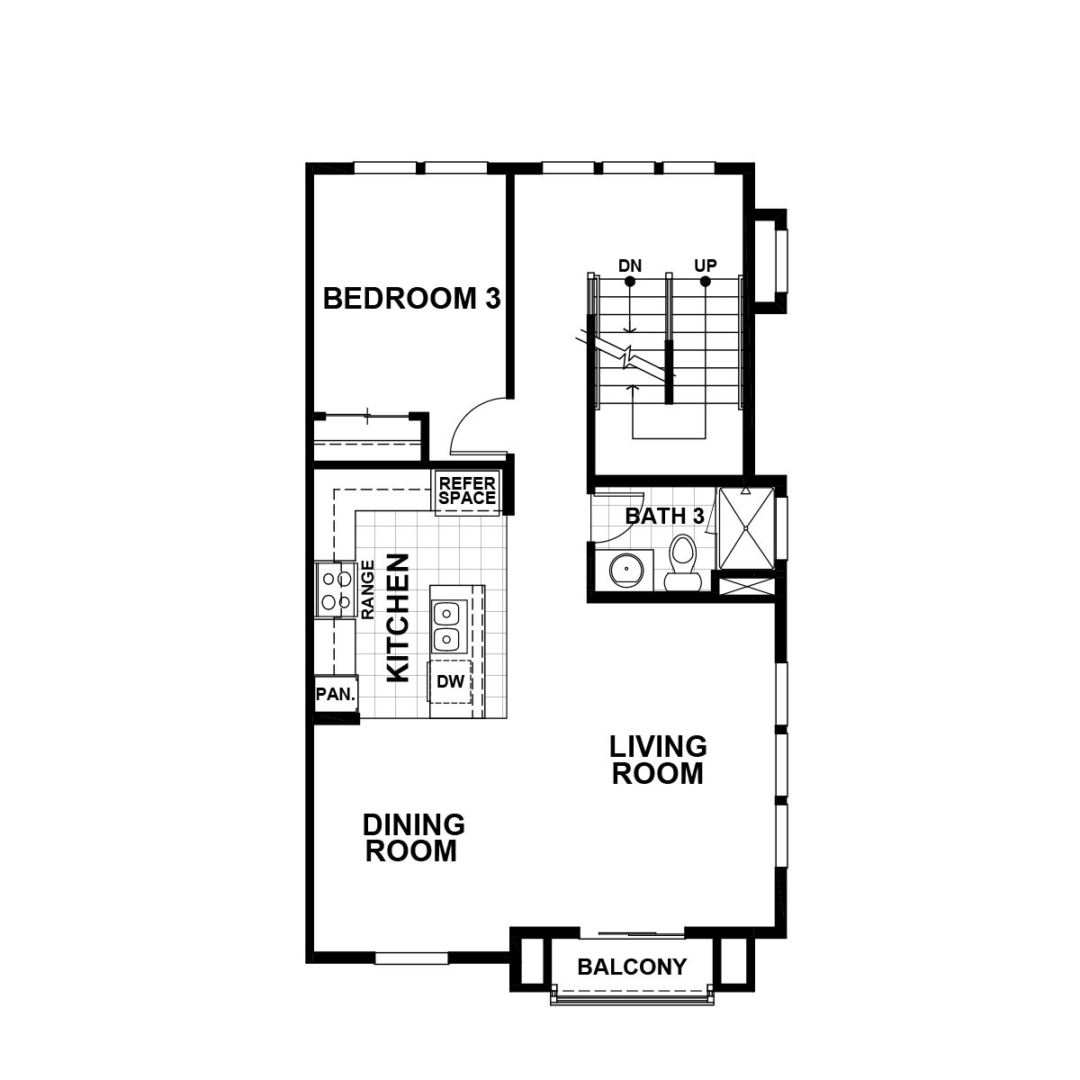
Step into modern East Bay living with Residence 5, a spacious 1,838 sq. ft. tri-level townhome offering a flexible layout, and multiple outdoor spaces. Located in the heart of Concord, this home provides an ideal blend of comfort, privacy, and convenience just moments from BART, shopping, parks, and major commuter routes.The entry level opens to a welcoming foyer with a coat closet and direct access to the attached two-car garage with added storage nook. Toward the back of the home, a full den expands your living possibilities and opens to a private porch, creating the perfect space for a home gym, media room, creative studio, or quiet hangout tucked away from the main floors.Upstairs, the second level serves as the central living hub. The kitchen, dining room, and living room connect effo...
Explore this home
Explore custom options for this floor plan.
Community highlights
About Villas at Walters Place
Welcome to a thoughtfully designed community of brand-new townhomes located in Concord’s vibrant Four Corners neighborhood. This well-connected area offers a blend of suburban comfort and everyday convenience, with easy access to major freeways like Highway 4 and I-680. Just minutes from Sunvalley Shopping Center, residents enjoy easy access to retail, dining, and entertainment, along with proximity to major stores like Costco and Safeway. The nearby Concord BART station and local bus lines make regional commuting and weekend outings simple and efficient.A short drive brings you to the heart of Downtown Concord, centered around Todos Santos Plaza- a lively community hub known for its weekly farmers markets, summer concerts, outdoor dining, and boutique shops. Whether you're grabbing coffee...
Neighborhood
Community location & sales center
1220 Walters Court Concord, CA 94520
1220 Walters Court Concord, CA 94520
Amenities
Community & neighborhood
Builder details
Discovery Homes

Discovery Homes is honored to be one of the top home builders in Northern California year after year. We have been building quality homes since 1997 when Discovery Homes was established by third generation Albert D. Seeno III with the dream to carry forward a tradition of quality and excellence to be handed down from generation to generation. Founded with strong, family roots and we continue to bring the same dedication, commitment, and quality workmanship to each new home that is built. The continued dream and vision of the owners is to provide the best hand crafted homes, period. With over 50,000 homes built, they continue to strive to build the perfect home that meets the needs of all types of families. Our sensitive approach to design results in homes that are practical yet possess a timeless elegance. Countless room and design options in each home allow homebuyers to customize their home so it is tailored to fit their family’s particular needs. Through the years, homebuyers have maintained a pride of ownership in each Discovery neighborhood that is unparalleled in the industry. We are dedicated to embodying the idea of the Discovery Difference, a mission to enhance your buying experience and offer new homes that exemplify the highest standards of craftsmanship. We work with a select group of cooperating lenders that are available onsite at our communities. Additionally, you have the luxury of visiting our Discovery Design Center where you can customize the details of your dream home. With these partnerships Discovery Homes is proud to make “one stop” home shopping a reality. As for customer service, they strive to make your home-buying experience simple, efficient and enjoyable.
This listing's information was verified with the builder for accuracy 4 days ago
Residence 5 Plan by Discovery Homes
saved to favorites!
To see all the homes you’ve saved, visit the My Favorites section of your account.
Discover More Great Communities
Select additional listings for more information
We're preparing your brochure
You're now connected with Discovery Homes. We'll send you more info soon.
The brochure will download automatically when ready.
Brochure downloaded successfully
Your brochure has been saved. You're now connected with Discovery Homes, and we've emailed you a copy for your convenience.
The brochure will download automatically when ready.
Way to Go!
You’re connected with Discovery Homes.
The best way to find out more is to visit the community yourself!