Elmwood Farm
Pearl
9863 Ripple Drive, Williamsport, MD, 21795
by Richmond American Homes 1958 TrustBuilder reviews
From $510,999 This is the starting price for this plan and is subject to change.
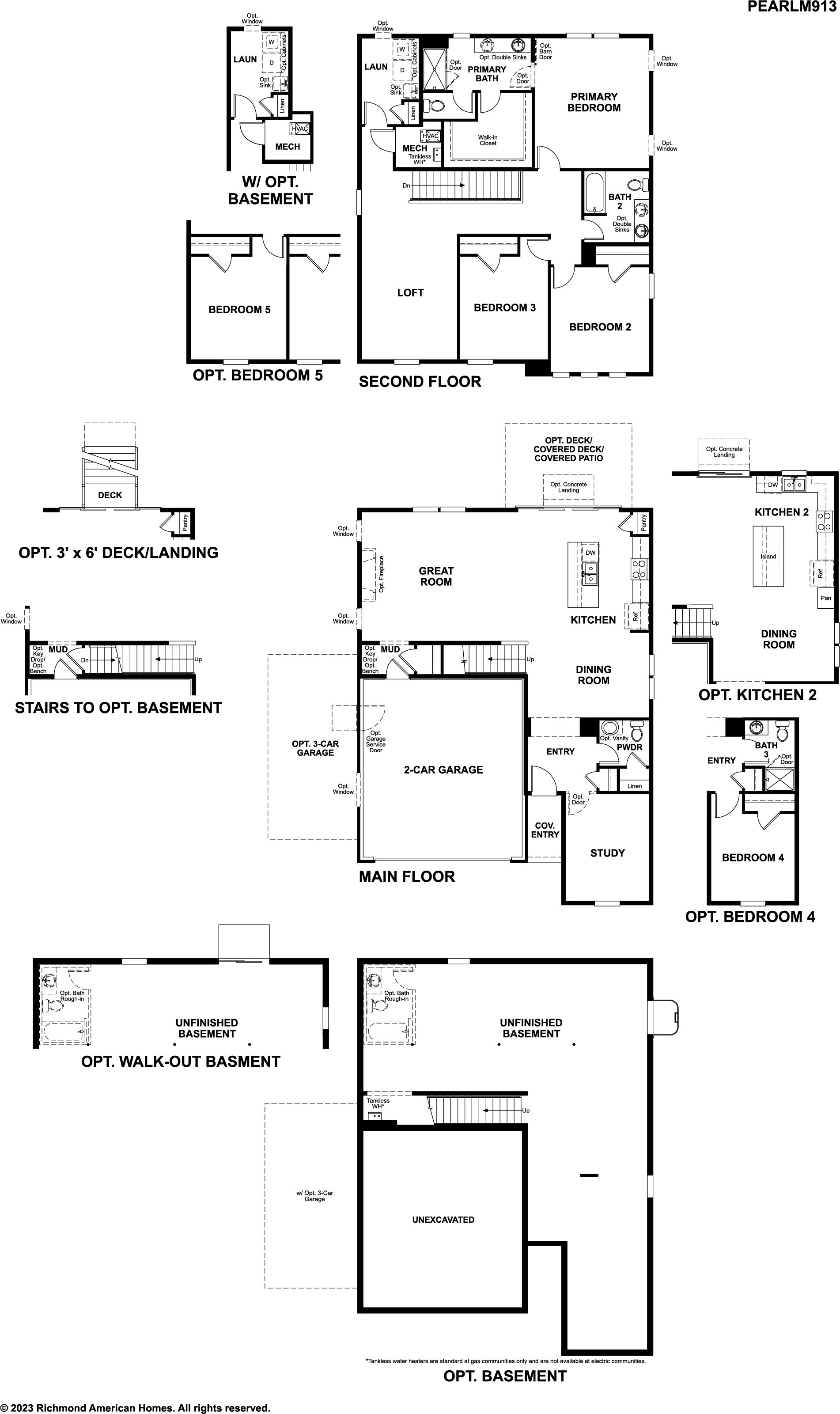
- 4 Beds
- 3 Baths
- 2 Car garage
- 2,390 Sq Ft
Overview
Floor plan features
- 2 Stories
- Primary Bed Upstairs
- Single Family
Floor plan description
The Pearl plan offers two stories of thoughtful living space. A spacious kitchen provides a panoramic view of the main floor-overlooking an elegant dining room and a large great room. This home will be built with either a study or an extra bedroom. Upstairs, a primary suite offers a roomy walk-in closet and attached bath. The second floor will be built with either a loft or an extra bedroom. A covered patio will be included on select homesites. You'll love the professionally curated finishes!
Explore this home
Explore custom options for this floor plan.
Special offers
Explore the latest promotions at Elmwood Farm. to learn more!
Get today's best offers...
special financing on select homes!
Western Maryland Homes of the Week
See this week's hot homes!
8 Credit Score Management Tips
Download our FREE guide & stay on the path to healthy credit.
Community highlights
About Elmwood Farm
Situated near the picturesque Potomac River near several major highways and employment hubs, Elmwood Farm offers an appealing blend of rustic charm and modern convenience. Residents will appreciate easy access to shopping and dining in nearby Hagerstown, as well as close proximity to various parks, notable attractions and resorts. This exceptional new community boasts an inspired array of ranch and two-story floor plans on generous 1/3-acre homesites. Discover your dream home today! More info about Elmwood Farm
Neighborhood
Community location & sales center
9863 Ripple Drive Williamsport, MD 21795
9863 Ripple Drive Williamsport, MD 21795
888-236-2404
From I-81, take Exit 1 for MD-63/MD-68 toward Williamsport/Boonsboro. Keep right at the fork and merge onto MD-63 South/ MD-68 East. Continue on MD-68 East/ Lappans Road. Turn right on Kendle Road. Left on Ripple Drive. Community is ahead.
Amenities
Community & neighborhood
Neighborhood amenities
Darrell Enterprises
3.24 miles away
17609 Virginia Ave
Grocery Outlet
3.51 miles away
1713 Massey Blvd
Walmart Supercenter
3.62 miles away
10420 Walmart Dr
Sam's Club
3.65 miles away
1700 Wesel Blvd
MARTIN'S Food Market
3.72 miles away
1650C Wesel Blvd
Shaklee Distributor
1.85 miles away
16550 Tammany Ln
Martin's Famous Pastry Shoppe
2.16 miles away
10711 Timothy Dr
Michele's Bakery and Sweet Shoppe
2.48 miles away
11000 Bower Ave
The Vitamin Shoppe
3.37 miles away
1730 Massey Blvd
Patty Cakes
3.54 miles away
17738 Virginia Ave
Waffle House
1.39 miles away
306 E Potomac St
McDonald's
1.42 miles away
313 E Potomac St
China 88
1.52 miles away
16 Milestone Ter
Marco NY Pizza & Restaurant
1.52 miles away
20 Milestone Ter
Desert Rose Cafe
1.63 miles away
2 E Potomac St
Green Coffee
2.26 miles away
17641 College Rd
Starbucks
2.73 miles away
17213 Cole Rd
Starbucks
2.87 miles away
17326 Valley Mall Rd
Orange Julius
3.09 miles away
17301 Valley Mall Rd
Target
2.73 miles away
17213 Cole Rd
DSW Designer Shoe Warehouse
2.74 miles away
17159 Cole Rd
Old Navy
2.74 miles away
17163 Cole Rd
Ross Dress For Less
2.74 miles away
17155 Cole Rd
David's Bridal
2.75 miles away
17231 Cole Rd
Third Base
1.62 miles away
35 N Conococheague St
Black Rock Bar & Grill
3.09 miles away
17301 Valley Mall Rd
Primanti Bros
3.09 miles away
17301 Valley Mall Rd
Fireside Restaurant & Lounge
3.38 miles away
1716 Underpass Way
Chili's
3.42 miles away
245 Railway Ln
Please note this information may vary. If you come across anything inaccurate, please contact us.
Builder details
Richmond American Homes
3.9 out of 5 stars
1958 Reviews in All Areas
VIEW RATINGS & REVIEWSWhat sets Richmond American Homes companies apart from other leading homebuilders? Many will say it's the inspired floor plans, incredible included features, quality construction and unwavering commitment to customer satisfaction. Although these all play a role, personalization is what truly makes the difference. The company may have built more than 210,000 homes over the last 40+ years, but each one turns out anything but cookie cutter!
How do we make each Richmond American home unique? By offering homebuyers who build a new home from the ground up the opportunity to choose from hundreds of fixture and finish options at our innovative Home Gallery™ design centers across the country. From the kitchen cabinets and countertops to the surround sound, there are countless opportunities to tailor the floor plans, along with seasoned advice to assist customers every step of the way.
The Richmond American Homes companies have homebuilding operations in several states, including Arizona, California, Colorado, Florida, Idaho, Maryland, Nevada, Oregon, Pennsylvania, Utah, Virginia and Washington. With an impressive lineup of ranch, two-story and three-story floor plans, and several sought-after home collections available, there are options that appeal to a wide range of homebuyers at a variety of price points. Customers can also take advantage of the one-stop shopping convenience offered by Richmond American’s affiliates, HomeAmerican Mortgage Corporation, American Home Insurance Agency, Inc. and American Home Title and Escrow Company. Together, these companies offer a streamlined homebuying experience from start to finish. Discover your dream home—and make it your own—today!
TrustBuilder reviews
Take the next steps toward your new home
This listing's information was verified with the builder for accuracy 2 days ago
Pearl Plan by Richmond American Homes
saved to favorites!
To see all the homes you’ve saved, visit the My Favorites section of your account.
Discover More Great Communities
Select additional listings for more information
We're preparing your brochure
You're now connected with Richmond American Homes. We'll send you more info soon.
The brochure will download automatically when ready.
Brochure downloaded successfully
Your brochure has been saved. You're now connected with Richmond American Homes, and we've emailed you a copy for your convenience.
The brochure will download automatically when ready.
Way to Go!
You’re connected with Richmond American Homes.
The best way to find out more is to visit the community yourself!